Proměna barcelonského brownfieldu na univerzitní kampus
Nový kampus univerzity Pompeu Fabra (UPF) byl vybudován na místě bývalého industriálního komplexu. Součástí projektu z rukou španělských architektů Gina Barcelona se stalo také veřejně přístupné náměstí, pod kterým se důmyslně ukryly další učebny i školní prostory.
Gina Barcelona Architects , 21. 8. 2017
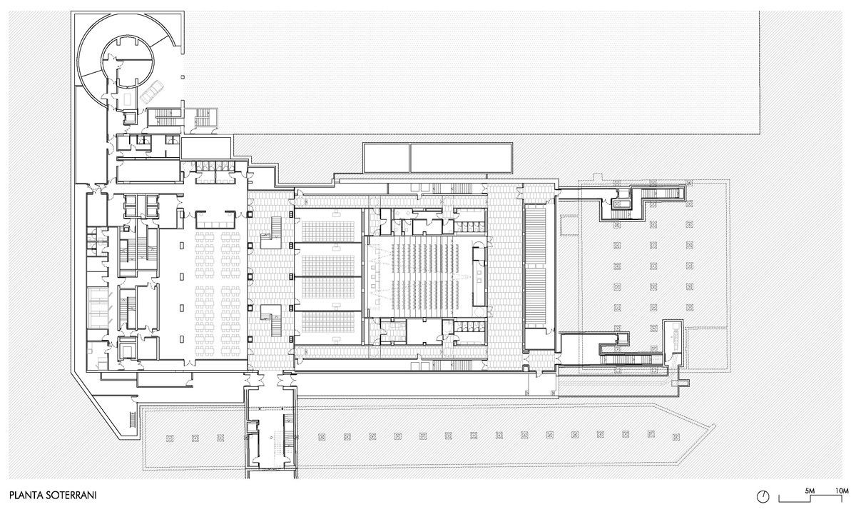
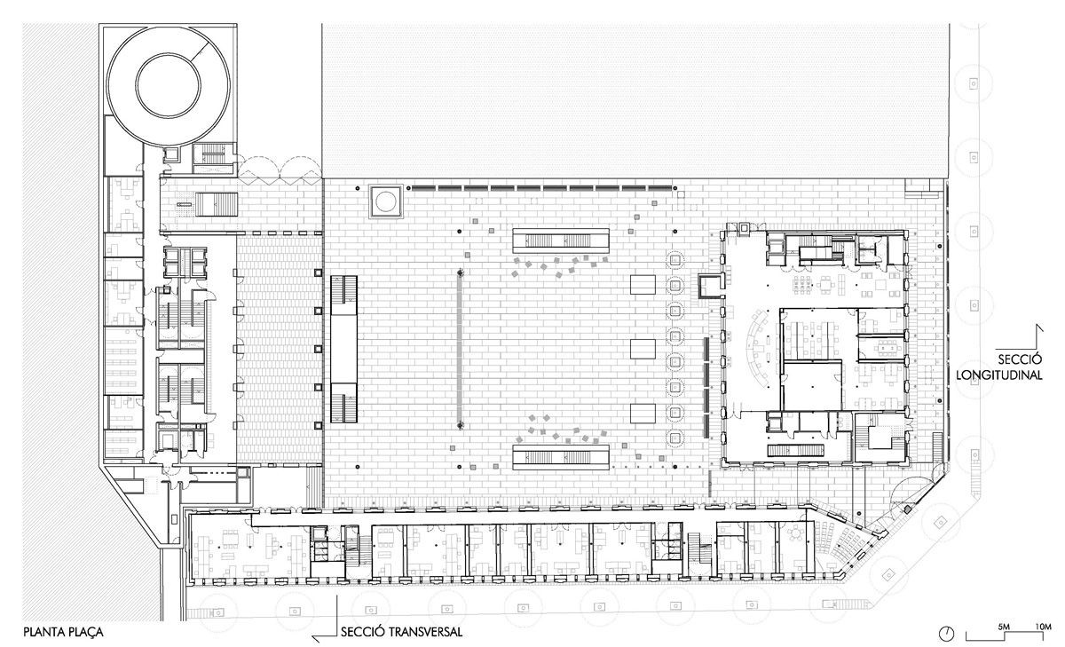
Projekt na vybudování univerzitního kampusu zahrnoval kromě návrhu několika nových staveb i oživení dvou původních industriálních budov, neboť celý areál se nachází na místě bývalého brownfieldu. Lineární hmota nové budovy je rozvržena takovým způsobem, aby poskytovala výhled na celý kampus. Fasáda obsahuje potištěné skleněné lamely, které jsou pohyblivé anebo naopak uchycené napevno. Nové veřejné náměstí je propojeno s ulicemi. Pod jeho celým povrchem se nachází pozdemní prostory auditoria, archivů a knihovny.
- Autoři: Josep Benedito, Ramon Valls
- Ateliér: Gina Barcelona Architects
- Země: Španělsko
- Město: Barcelona