
Proměna márnice v moderní smuteční síň
Moravské Spytihněvi dlouho chyběl prostor pro důstojný smuteční obřad. Citlivou rekonstrukcí místní márnice vznikla nová smuteční síň, která tento účel splňuje po všech stránkách.
Karolína Řeháčková , 24. 11. 2017
Dům v domě
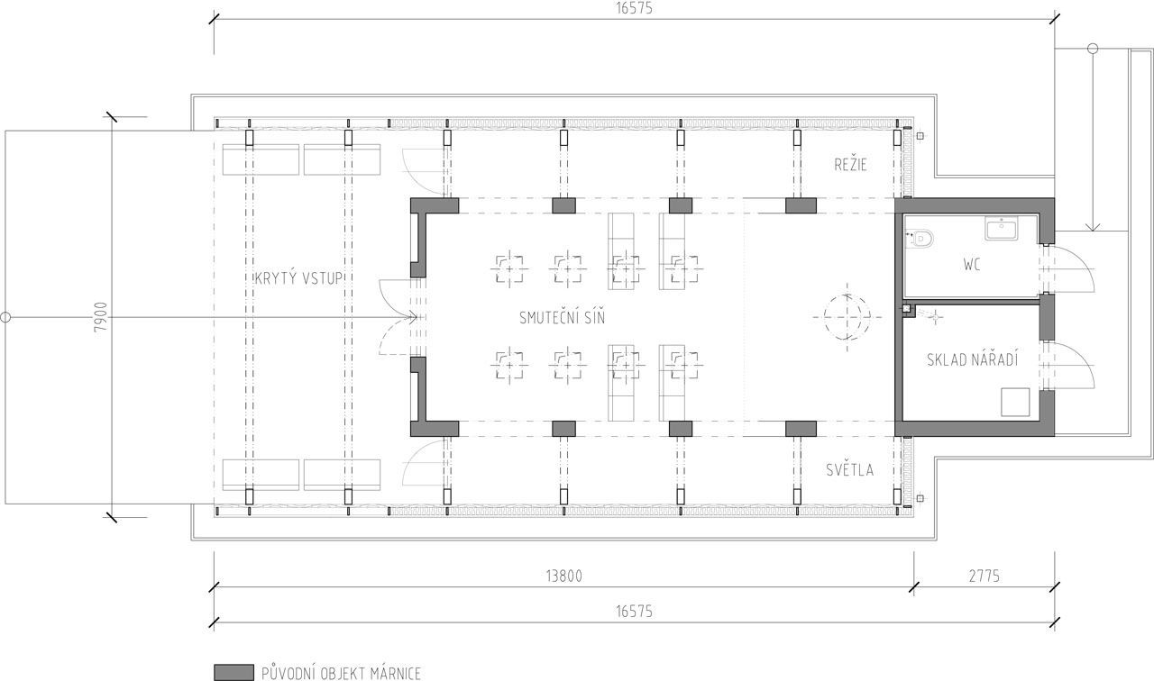
Obřadní síň na spytihněvském hřbitově vznikla na místě stávající márnice. S novou funkční náplní bylo zapotřebí objekt zvětšit. Autoři se rozhodli stávající budovu márnice zachovat a zahrnout do nového řešení na principu „dům v domě“. Přístavba tak vyrostla rozšířením stávající půdorysné stopy, kdy původní budova byla obestavěna novou.
Citlivý kontrast starého a nového
Nové architektonické řešení vychází z jednoduchého kubického tvaru - hranolu, který v sobě ukrývá stavebně upravený původní objekt márnice. Původní konstrukce jsou maximálně perforovány (a to jak stěny, tak i strop), čímž je dosaženo neobvyklého interiérového řešení. Na východní, méně exponované straně, zůstává část márnice čitelná i z exteriéru, se samostatnými vstupy na invalidní wc a do skladu nářadí údržby.
Původní márnice byla konstrukčně řešena z bílých vápenopískových, spárovaných cihel s železobetonovou stropní deskou. Přístavbu a nástavbu navrhli autoři ve formě lehké konstrukce, jejíž základ tvoří dřevěné lepené rámy. Ty tvoří nosnou konstrukci pro stěny z pohledově upravených dřevěných fošen, jež jsou ve své přirozené podobě přiznané v interiéru. V exteriéru tvoří finální vrstvu fasádní desky Cembrit v černé barvě, které jsou osazeny na nosný rošt s tepelnou izolací.
Vnitřní vybavení v souladu s čistotou a jednoduchostí interiéru
Při stavebních úpravách byly zachované konstrukce márnice bíle omítnuty a svou čistou hladkou strukturou tak kontrastují s dřevěnými konstrukcemi přístavby ve své přirozené barevnosti. Podlahu navrhli autoři jako jednolitou světle šedou polyuretanovou stěrku, která dává vyniknout jednoduchému mobiliáři v černé barvě. Vnitřní vybavení tvoří jednoduché kubické lavice a katafalk se zabudovaným vozíkem. Ve stropní desce je umístěn zakrytovaný diaprojektor, který lze podle potřeby využít při smutečním obřadu.
Původním portálem do nové síně
Zachován byl rovněž zajímavě řešený portál, který byl citlivě zakomponován do vstupní části obřadní síně v návaznosti na novou prosklenou stěnu. Hlavní vstup do obřadní síně je zvýrazněn dominantním závětřím. Zděnému portálu navíc dominují dřevěné hlavní vstupní dveře, obložené černým ocelovým plechem kotveným mosaznými nýty. Matná černá barva vstupních dveří koresponduje s černým odstínem fasádních obkladových desek, které při příchodu do smuteční síně rámují závětří a pokračují na dalších plochách fasád.
Základní přirozené denní světlo a větrání v obřadní síni zajišťují dvě horizontální pásová okna na delších stranách formou bazilikálního osvětlení. Takřka symbolické světlo pak přímo nad katafalkem proniká do prostoru síně střešním světlovodem.
Hlavní vstupní závětří je širokou nástupní plochou spojeno s centrálním hřbitovním prostorem.
- Autoři: Ivan Bergmann
- Země: Česká republika
- Zodpovědný projektant: Pavel Srba
- Město: Spytihněv
- Datum projektu: 2014
- Realizace: 2016
- Zastavěná plocha: 122.00m2
- Materiál: Fasádní desky - CEMBRIT
- Poznámka: Foto © Dušan Tománek