
Architektura
/
rodinné domy
Prosklené stěny propojují rodinný dům od studia MOLO architekti se zahradou
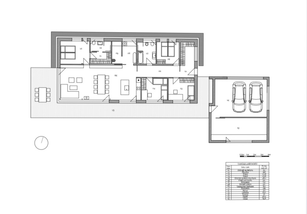
Výrazná plochá střecha s přesahem a celoprosklené stěny představují hlavní charakteristiky rodinného domu, který architektonické studio MOLO architekti navrhlo v blízkosti řeky Tichá Orlice. Střecha slouží jako prvek propojující dům s garáží, její přesah pak chrání přilehlou dřevěnou terasu před deštěm a zároveň stíní prosklené stěny.
MOLO ARCHITEKTI , 6. 3. 2020
- Autoři: Mária Horecká Nalevanková, Patrik Zamazal
- Ateliér: MOLO ARCHITEKTI
- Země: Česká republika
- Realizace: 2019
- Užitná plocha: 134.00m2
- Zastavěná plocha: 165.00m2