Architektura / industriální a technické stavby

Radikální konverze masivního obilného sila na galerii současného afrického umění

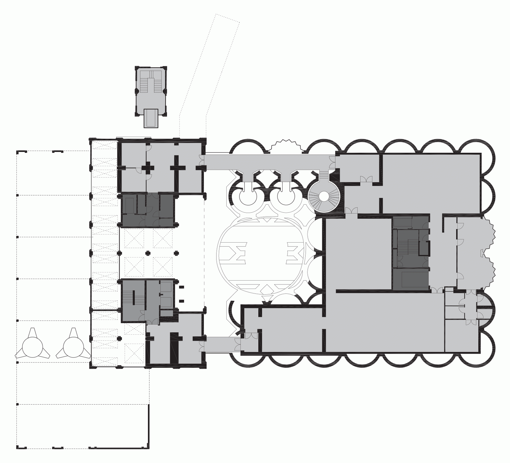
Na začátku procesu byl obrovský objekt vysloužilého kukuřičného sila na přístavišti Kapského Města. Svého času vůbec nejvyšší stavba postavená ve dvacátých letech minulého století přestala svému účelu sloužit kvůli přesedlání transportu obilovin ze železniční na lodní dopravu. Nový život majestátnímu industriálnímu objektu vdechlo studio slavného londýnského umělce Thomase Heatherwicka, který silo přeměnil v muzeum současného afrického umění Zeitz MOCAA. Sám Heatherwick transformaci popisuje jako "archeologický proces", při kterém se snažil spíše o destrukci původní hmoty než o vytváření nového.

Thomas Heatherwick , 2. 10. 2017

  • Autoři: Thomas Heatherwick
  • Země: Jihoafrická republika
  • Realizace: 2017
  • Město: Kapské město
  • Datum projektu: 2011
  • Realizace: 2017
  • Plocha pozemku: 9 500.00m2

Klíčová slova:

konverze Afrika

Mohlo by vás zajímat

Generální partner
Hlavní partneři