Rekonstrukce bytu v centru Bratislavy od Grau architects umožnila osový průhled celou dispozicí
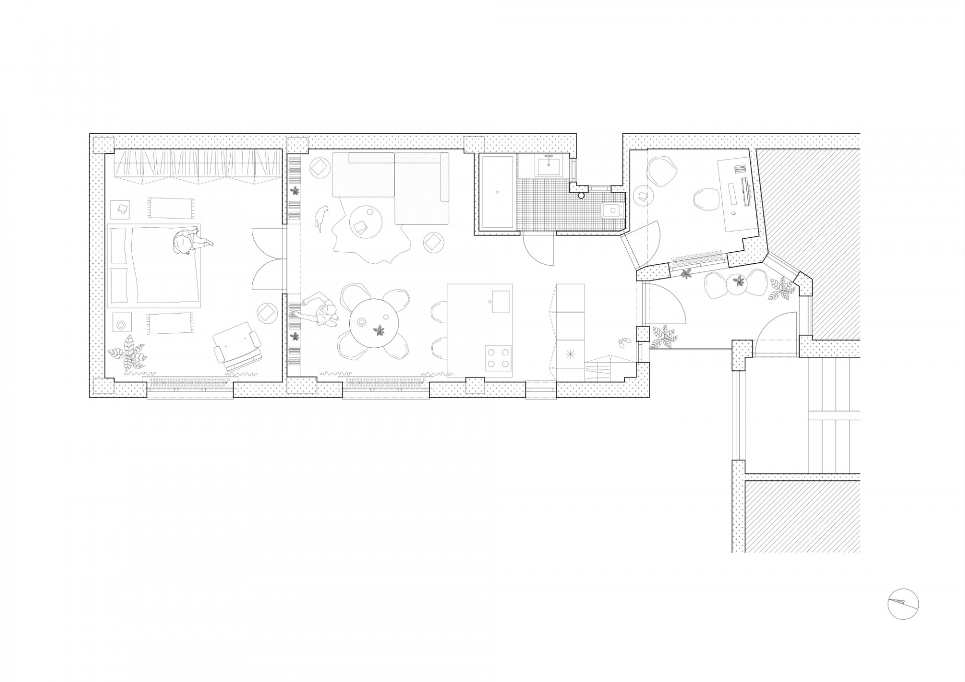
Architektonické studio Grau Architects ze Slovenska navrhlo komplexní rekonstrukci bytu v bytovém domě ze 40. let, který se nachází v bezprostředním kontaktu s historickým jádrem Bratislavy. Byt sice nenabízí tak velkorysé prostory jako okolní stavby, přesto se ale architekti rozhodli ve svém návrhu zdůraznit centrální chodbu, která osově prochází bytem od vchodu až do ložnice - jde tak o interpretaci emfilády. Architekti navrhli také změny dispozice, tak aby se mohl zvětšit prostor obývacího pokoje i kuchyně. Bílé stěny bytu s parketovou podlahou doplňuje vestavěný nábytek a barevné akcenty.
Grau Architects , 26. 8. 2020
- Autoři: Andrej Olah, Filip Marčák, Matej Kurajda, Jana Filípková
- Ateliér: Grau Architects
- Země: Slovensko
- Město: Bratislava