
Rekonstrukce interiéru staré kamenné chalupy podtrhla její původní řešení
Kamenná chalupa „na samotě u lesa“ prošla citlivou rekonstrukcí, díky které získala také nový interiér. Architekti ze studia 3K Architects navrhli nový obytný prostor a další místnosti chalupy, které na vás dýchnou duchem doby.
EARCH.CZ , 25. 9. 2022
Architekti ze studia 3K Architects zrekonstruovali starou kamennou chalupu stojící zcela mimo civilizaci. Stavba je sice součástí souboru několika podobných stavení, v krajině mezi rybníky, lukami a lesy jde ale o zcela osamocený ostrov.
Chalupu na dlouhém obdélníkovém půdoryse s tlustými kamennými stěnami kryje jednoduchá sedlová střecha z pálených tašek. Tradiční charakter stavby se rozhodli respektovat i architekti, kteří provedli její částečnou rekonstrukci a navrhli kompletní interiér. „Klientka měla jediný požadavek. Zachovat tradiční ráz kamenné chalupy a přidat do interiéru decentní, moderní prvky,“ vysvětlují architekti svou výchozí pozici.
Více k tématu
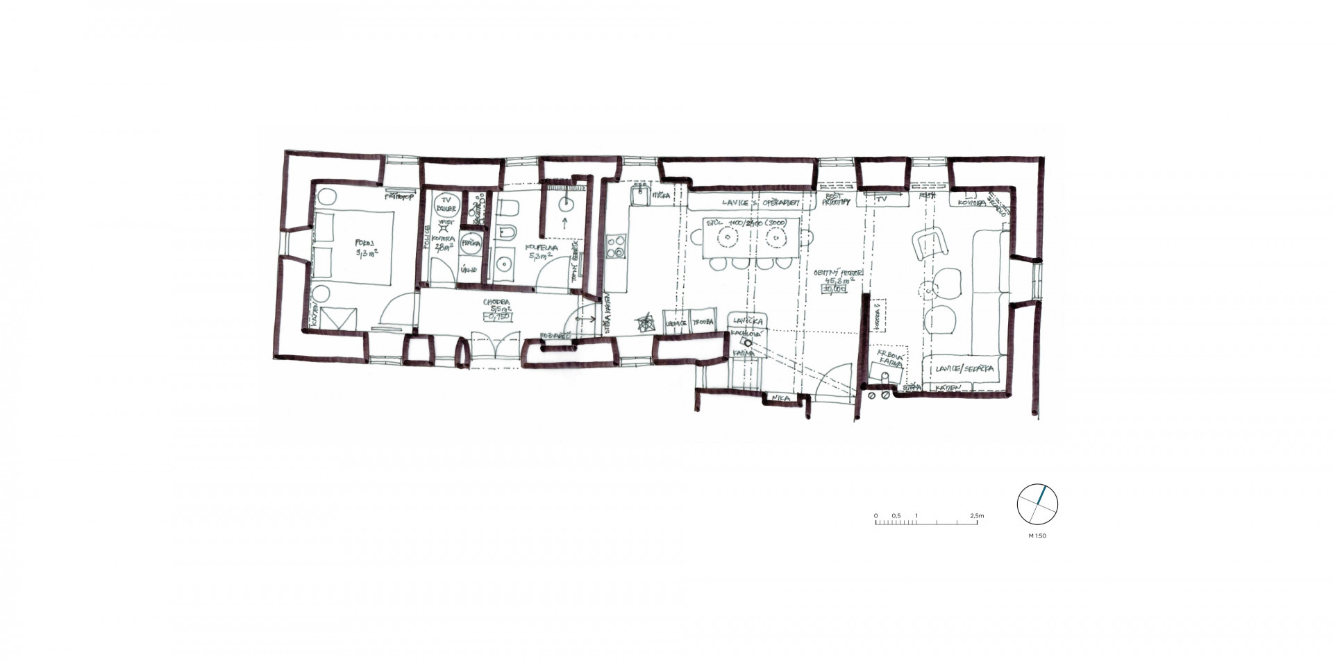
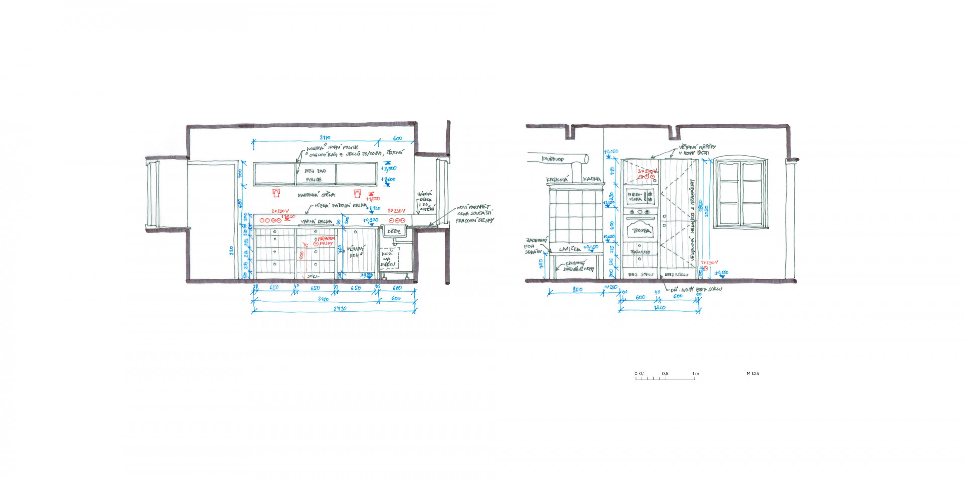
Generální rekonstrukcí prošel především obývací pokoj s kuchyní a jídelnou. Prostory na sebe bezprostředně navazují, pouze obývací pokoj částečně odděluje příčka. Architekti nechali v „obytném srdci“ stavby odkrýt hrubé kamenné stěny a zrekonstruovali původní trámové stropy. Přírodní materiály, které jsou základem konstrukce celé chalupy, doplnili kontextuálním nábytkem. Vedle světle šedé kuchyně je to především masivní stůl, ke kterému se vejde až 10 lidí a nová kachlová kamna stojící na místě těch původních.
Radikálnější úpravy potkaly zadní část chalupy. Původní dispozice byla vybourána a nahrazena novou koupelnou, ložnicí a spíží. Při vybavování nových místností autoři zůstali u přístupu osvědčeného z obývacího prostoru, a tak celek působí provázaně a jednotně.

„Interiér jsme navrhovali úplně kompletně, takže jsme vybrali stylová světla a vypínače a zároveň i solitérní nábytek. Ať už se jednalo o židle, pohovku, konferenční stolky i nábytek do ložnice,“ dodávají architekti.

Architektům se díky promyšlené rekonstrukci podařilo proměnit starou chalupu v rekreační objekt s moderním vybavením, které navazuje na původní charakter stavby.
- Autoři: Roman Kučírek, Jan Komárek
- Ateliér: 3K Architects
- Realizace: 2021
- Datum projektu: 2020