Rekonstrukce za 600 tisíc? Jde to, když máte chytrý návrh a v ruce pilku
70 tisíc kuchyně včetně spotřebičů, 70 tisíc celá podlaha a 130 tisíc za všechny skříně na míru. Takhle to vymyslela studentka architektury Tereza Machačová a z bytu v paneláku udělala stylové bydlení: „Je to pěkné, je to levné a lidi si to můžou udělat sami,“ vzkazuje.
Karolína Vránková , 16. 12. 2025
Byt 1+1 na sídlišti v Roudnici nad Labem zdědila rodina po pratetě a za posledních padesát let se tam nic nezměnilo - zastaralé byly instalace i interiér. Byla potřeba důkladná rekonstrukce, kterou svěřili další člence rodiny, Tereze Machačové, která studuje na Fakultě architektury ČVUT. Investorkami byla její maminka s babičkou. Na projekt měly 600 tisíc korun, takže bylo třeba pracovat levně: „Finanční fintou bylo použití modulových korpusů z IKEA, s prvky na míru z borové překližky,“ říká studentka. Díky tomu vznikl jednotný, stylový interiér, který se dal zaplatit.

Vlastní hlavou a rukama
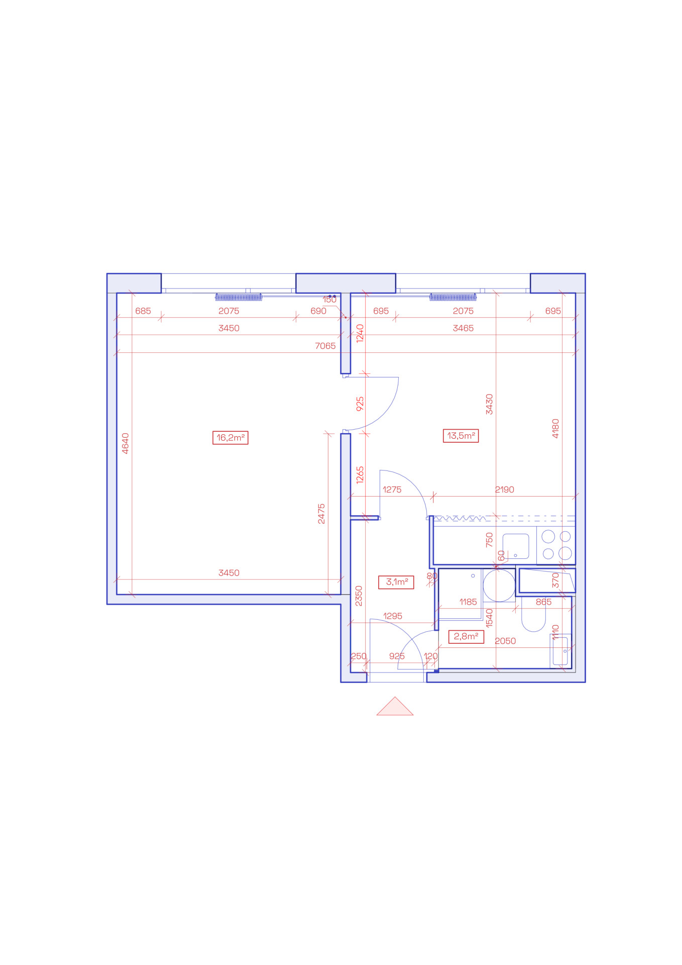
Dispozici se Tereza Machačová rozhodla zachovat téměř beze změn. Jenom se zvětšil prostup mezi chodbou a kuchyní, aby se byt stal vzdušnějším. Protože se nezasahovalo do nosných konstrukcí, nemusela žádat o stavební povolení, což byla první úspora peněz i času.
Poté Tereza Machačová vytvořila projekt a začalo se stavět. Celý byt se vyklidil, stavební firma udělala nové instalace a rozvody elektřiny, vyzdila jádro, dříve umakartové, položilo se marmoleum. Poté se navezly skříňky z IKEA a zhruba tuna překližkových desek: „Nechala jsem si je nařezat a nalakovat v truhlárně, zbytek jsme dělali s kamarádem na místě,“ vypráví studentka. Zkušeností prý moc neměli a v půjčovně nářadí se jí obsluhující ptali, kolik toho už vyfrézovala. „Řekla jsem jim, že málo a nechala si to celé vysvětlit,“ směje se Tereza Machačová.
Vlastní práce byla náročná, ale rozhodně se vyplatila - výsledkem byly značné úspory. Studentka odhaduje, že skříňové díly od truhláře by stály přes 350 tisíc korun, nařezaná překližka spolu s IKEA korpusy byla za polovinu (110 tisíc překližkové dveře, kolem 12 tisíc samotné skříně). Levně postupovali i při řešení dalších částí bytu. Do koupelny dali bílé tuzemské obklady Rako ve velikosti 10x10 cm. Oživila je barevná spárovací hmota. Na podlahu přišlo marmoleum. Kuchyně je rovněž z IKEA, opět doplněná překližkou na míru a částečně také natřená na červeno. Nešlo by to ovšem bez kreativních nápadů: lampička se přestříkala sprejem na kov, skříňka - původně na kořenky - se použila v koupelně na kosmetiku a tak dále.

Návrh rekonstrukce vznikl jako semestrální práce v ateliéru pedagogů Vojtěcha Sosny a Karla Filsaka. Každý student musí během studia vytvořit takzvaný „realizační projekt.“ Je to projekt, kdy si studenti zkoušejí vytvořit nejen studii, ale i prováděcí dokumentaci. Tereza Machačová šla se svou školní prací ještě dál a rovnou přikročila ke stavbě.
Více k tématu
Vyřešila tak problém své rodiny, ale ukázala cestu i dalším lidem. Panelových bytů, kterým je kolem padesátky a pomalu dožívají, je totiž v Česku mnoho. A jak je vidět, lze jim dát druhý život. „Je to pěkný, je to levný, lidi si to můžou udělat sami, to je gro,“ vzkazuje Tereza Machačová.
- Autoři: Tereza Machačová
- Země: Česká republika
- Město: Roudnice nad Labem
- Užitná plocha: 38 m2
- Fotograf: Simona Horáková
- Projekt: 2024
- Náklady: 600 000 Kč