Pryč s umakartem. Rekonstrukce bydlení v paneláku pro mladý pár
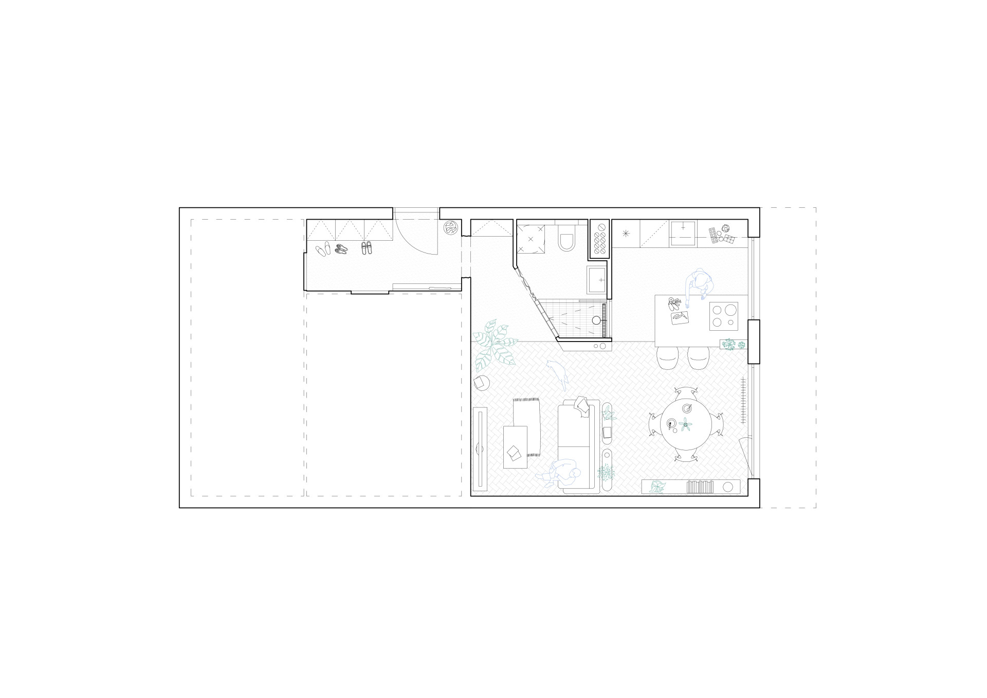
Panelákový byt na pražské Gutovce měl před rekonstrukcí ještě původní umakartové jádro. Teď jsou na jeho místě luxfery, které do koupelny propouštějí světlo. Světlost a otevřenost se staly novými atributy interiéru.
Adéla Vaculíková , 17. 3. 2026
Rekonstrukce bytu v panelovém domě je prvotinou mladých architektů Patrika Platila a Marka Petříka z ateliéru P2P. Oba jsou čerstvě po škole a zažívají typickou situaci začínajících architektů. Cesta k realizacím bývá dlouhá a první postavené projekty často nejsou velké domy, ale menší úkoly – třeba chaty nebo rekonstrukce bytů.
Právě taková příležitost se Patrikovi a Markovi naskytla na pražské Gutovce. Navrhli zde rekonstrukci bytu pro mladý pár a jejich kočku.
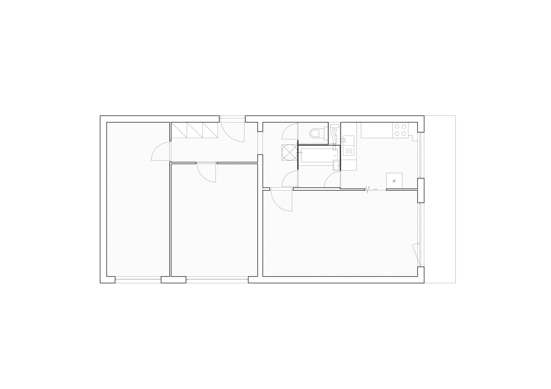
Před vstupem architektů to byl standardní panelákový byt, který měl už ta nejlepší léta za sebou. A trpěl také typickými panelákovými limity – změtí malých pokojů a temných chodeb. Proto se bouralo. Ve východní části bytu vznikl nový velkorysejší obytný prostor tvořený obývacím pokojem propojeným s kuchyní.
Vybouralo se také dožilé umakartové jádro, které nahradila nová koupelna s příčkou z luxfer. Ta současně plní roli zástěny sprchového koutu.

„Nejpodivnější byla tmavá chodbička s pračkou, ze které se chodilo do koupelny,“ popisuje původní stav bytu Patrik Platil. Dnes už ji v bytě nenajdeme. Vystřídal ji prostor, který plynule navazuje na obývací pokoj.
Kromě chodby, umakartu a příček šla pryč také futra ze vstupní předsíně. Zůstal po nich odhalený beton prořízlého panelu. „Portál svou materialitou odhaluje vrstvu ‚naturel‘ panelového bytu,“ popisují to architekti.

Úplně všechno původní ale z bytu nezmizelo. Rekonstrukcí současně prošla jen jeho část, zbylé dva pokoje se neupravovaly, protože fungují dobře. V novém obytném prostoru pak na podlaze zůstaly dřevěné parkety, pouze se vyspravily.
Kde dřevěná podlaha nebyla, tam architekti navrhli krytinu novou, konkrétně marmoleum, které je v chodbě, koupelně i kuchyni. Zde předěl mezi starými parketami a novým marmoleem zdůrazňuje přesně na jejich rozhraní umístěný kuchyňský ostrůvek.

Podobných hříček je ve zrekonstruovaném panelákovém bytě víc. Třeba skříňka zabudovaná v ostrůvku, která v zavřené poloze vytváří box na květinu a kuchyňské nezbytnosti. Nebo světlík vyříznutý do stěny – malá lucerna propojující kuchyň a sprchu.
Propojení kuchyně a koupelny se odehrává také v barevnosti. Kuchyňské skříňky ladí ke stejně modrým koupelnovým obkladačkám. Mají příjemný vertikální formát, takže navíc opticky zvyšují jinak v panelákových bytech nízké stropy.
Více k tématu
Po rekonstrukci je v bytě na pražské Gutovce příjemně vzdušno a světlo. Prostor působí přívětivě a vřele – navzdory hrubému betonu v portálu nebo průmyslovým luxferám. Povedená prvotina s atmosférou „mlhy a páry“, která se do prostoru může linout proto, že v koupelně zatím chybí dveře. „Na dveře je udělaná příprava. Investoři ale napřed chtěli zkusit v bytě bydlet bez nich, je to o broušení hran intmity,“ dodává Marek Petřík. Umístění dveří je však nakonec už v procesu – na fotografiích zatím závěs, jinak je vše hotovo.
- Ateliér: P2P
- Autoři: Patrik Platil, Marek Petřík
- Země: Česká republika
- Město: Praha
- Projekt: 2024–2025
- Realizace: 2025–2026
- Fotograf: Simona Horáková
- Truhlářské výrobky: Václav Příhoda - Rodinné truhlářství na jihu Čech
- Dodavatel obkladů: Archtiles