 
					
                    				
					
                                                    Architektura
                                                /
                                                    rodinné domy
                                            
					
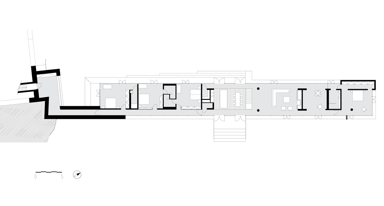
			Rezidence, etalon elegance
Pouze sklo a subtilní rámy, ohraničené shora i zdola betonovou deskou, kamenný sokl… a nic víc. Zdánlivá jednoduchost, která však ukrývá vysoký nadstandard, zabalený v kvalitních materiálech, stačí k vytvoření výjimečného výsledku. Tím je elegantní rezidence, která jako by se na jednom konci vznášela.
Studio acht , 27. 7. 2016
Více k tématu
- Autoři: Ben Hoek, Václav Hlaváček
- Ateliér: Studio acht
- Spolupráce: Lina Procházková, Erika Hlaváčková, Ondřej Mach, Jan Štěpnička
- Země: Česká republika
- Město: Čejkovice
- Datum projektu: 2013
- Realizace: 2013
- Užitná plocha: 415.00m2
- Poznámka: Foto © Alex Timpau
 
                             
                             
                             
                             
                             
                                 
            		 
            		 
            
         
            
         
            
         
            
         
            
         
            
         
            
         
            
         
            
         
            
         
                             
                             
                             
                             
                             
                             
    
	 
            		 
            		 
            		 
            		 
            		 
            		 
            		 
            		 
                     
                     
            		 
            		 
            		 
            		 
            		 
                     
					 
                                                         
                                                         
                                                         
                                                         
				 
				 
				 
				 
				 
				 
				 
				 
				 
				 
				