Rodinný dřevěný dům Zilvar je inspirovaný dinosaurem
Nízkoenergetická dřevostavba sloužící k rekreaci tříčlenné rodiny na první pohled zaujme dynamickým tvarem lomené pultové střechy, která skrývá dvě galerie určené ke spaní. Prvotní inspirace vycházela z přání malého syna, mít dům podobný dinosaurovi. Dům Zilvar z pera architekty Gabriely Kaprálové, která vede studio ASGK Design, získal celou řadu ocenění jak v České republice tak v zahraničí a i po více jak 10 letech je stále inspirativní.
EARCH.CZ , 30. 1. 2023
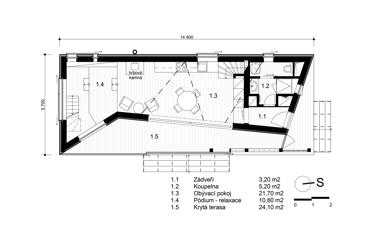
Objekt je navržen do stávajícího zastavitelného území malé obce ve východních Čechách. Nachází se na konci uliční řady a od otevřené krajiny jej odděluje jen několik vzrostlých stromů. Zadáním investora bylo vytvořit nízkoenergetickou dřevostavbu sloužící jako druhé bydlení pro tříčlennou rodinu. Vegetace, přírodní jezírko na zahradě i okolní vesnická zástavba pak vedly k návrhu jednoduchého objektu (prostoru) s variací na šikmé střechy. Především vzhledem k vysoké hladině spodní vody byl objekt odsazen od terénu a spočívá na kruhových pilířích z monolitického betonu. Provětrávaný prostor pod podlahou domu pak stavbu opticky odlehčuje. Materiálově dům nevyčnívá, splývá s okolím, neupozorňuje na sebe, poskytuje příjemné prostředí svým obyvatelům i dětem. Objekt je na pozemku usazen citlivě a s okolím komunikuje prostřednictvím velkoryse pojatých prosklených ploch a díky terase, která prochází od vchodu podél celého domu až na druhý konec stavby.
Jednopodlažní objekt je podélného tvaru a ukrývá v lomené pultové střeše dvě vyvýšené galerie určené ke spaní. Neobvyklé řešení se vzájemně převrácenými štíty vytváří uvnitř dynamicky klenutý strop, který obě galerie vzájemně odděluje. Na jižní straně se střecha vyhýbá koruně staletého dubu, na severní straně pak díky opačné orientaci umožňuje lepší proslunění v severní části zahrady. Přízemí tvoří zejména velká společenská místnost - tzv. „světnice“ s integrovanou kuchyňkou a jídelnou, u vstupu je situován jediný uzavřený „blok“ koupelny s toaletou, jehož součástí jsou i vestavěné úložné prostory. Z prostoru „světnice“ je přístupná krytá terasa a po samostatných schodištích pak i zmíněné galerie, které jsou ale opticky s přízemím propojeny. Prostor tak funguje jako jeden celek, a to i funkčně, kdy ve světnici umístěná krbová kamna dokáží vytopit celý vnitřní prostor.
Stupňovité pódium umístěné na konci obytné „světnice“ plní funkci obývacího pokoje, ukrývá další potřebné úložné prostory a především nabízí výhled na nejhezčí část zahrady, zákoutí se vzrostlými stromy a přírodním jezírkem.
Objekt je navržen jako montovaná dřevostavba s difúzně otevřenou skladbou konstrukcí. Nosná část je sloupková z KVH profilů. Z vnitřní strany jsou obvodové nosné stěny konstrukčně opláštěné deskami OSB s přelepenými spoji Airstop páskou, z vnější strany jsou pak dřevovláknitými deskami. Dřevovláknité desky jsou navrženy jako záklop z důvodů nízkého difúzního odporu a pro částečnou eliminaci tepelných mostů v místě masivních konstrukčních prvků. Díky odsazení stavby od terénu nebylo nutné řešit hydroizolaci spodní stavby a konstrukce podlahy mohla zůstat dřevěná a ve stejném konstrukčním systému jako ostatní části.
Fasáda je navržena dřevěná na laťovém roštu s provětrávanou mezerou. Pohledově je tvořena vertikálními fasádními palubkami bez pera a drážky se vzájemným odsazením. Povrchová úprava je řešena opálením jednotlivých palubek, dále kartáčováním a nátěrem přírodní olejovou lazurou, která byla po zavadnutí vytírána. Obložení stěn přechází plynule ve střešní rovinu tvořenou palubkami ve stejném dekoru, vytváří se tak kompaktní celek. Na obložení fasády a střechy byly použity palubky ze sibiřského modřínu. Palubky na střešním plášti pak byly z důvodů zvýšení životnosti navíc opáleny a natřeny lazurou ze všech stran.
Vnitřní stěny i stropy jsou obloženy podlahovými palubkami na pero a drážku a materiálově navazují na vnější opláštění – opět je zde použit sibiřský modřín. Palubky jsou kotveny na předsazeném laťovém roštu, který vytváří prostor pro vedení všech instalací před vzduchotěsnou vrstvou obálky. Detaily napojení jsou řešeny na sraz, veškeré kotevní prvky jsou skryté. Palubky jsou opatřeny nátěrem z dekoračního přírodního vosku. Na podlaze jsou palubky kartáčovány a opatřeny podlahovým olejem. Stejná povrchová úprava je použita i na palubkách terasy, interiér tak plynule přechází do exteriéru.
Článek vznikl za podpory ArchiCADu.
Více k tématu
- Autoři: Gabriela Kaprálová, Peter Hričovec
- Ateliér: ASGK Design
- Spolupráce: Vítek Donát, Andrea Betinová
- Země: Česká republika
- Realizace: 2013
- Generální dodavatel: TESAŘI OSÍK
- Město: Nechanice
- Ulice, číslo: Lodín
- PSČ: 503 15
- Datum projektu: 2011
- Realizace: 2013
- Užitná plocha: 83.00m2
- Materiál: dřevo
- Foto ©: Petra Hajská