Dřevostavba rodinného domu otevírá své interiéry do klidného dvora lemovaného terasami

Čtyřčlenná rodina může ve svém domě od slovenského ateliéru MOLNÁR-PERÁČEK trávit slunečné dny na pobytové střeše i dřevěných terasách. Jedním z hlavních požadavků investorů bylo propojení interiéru se exteriérem.
EARCH.CZ , 10. 1. 2023 / Advertorial
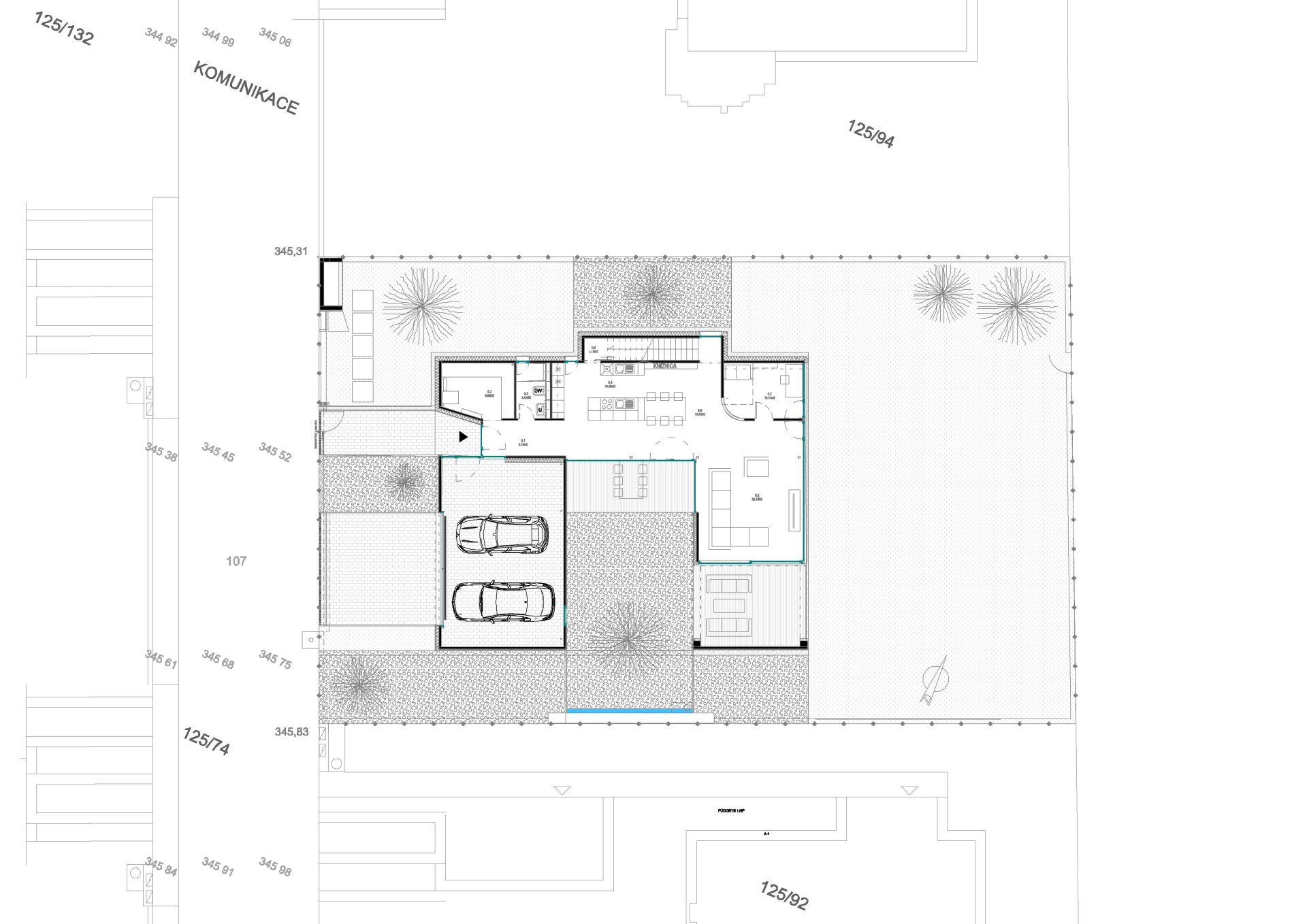
Stavby bratislavského ateliéru MOLNÁR-PERÁČEK je možné potkat i v České republice. Rodinný dům s atriem postavili ve středně velké obci západně od Prahy. Jedná se o nízkoenergetickou dřevostavbu z CLT panelů, které slovenský ateliér ve svých realizacích využívá často. Nedávno jsme napsali například o rodinném domě v Bratislavě, který se přizpůsobuje svažitému pozemku.
Více k tématu
Rodinný dům u Prahy s otevřenou trojkřídlou dispozicí svírá centrální dvůr nabízející dostatek soukromí. Jedním z hlavních cílů bylo intenzivně propojit vnitřní prostory s okolní zahradou. Hlavní obytné pokoje se proto otevírají velkoformátovými okny. „Dům je řešen jako částečně dvoupodlažní, pětipokojový. Obytná hala je prosklená na tři strany a výškově převýšena, právě převýšená hmota plynule přechází do prostorné obytné terasy,“ popisují řešení domu architekti.

Prostorný hlavní obytný prostor tvořený kuchyní, jídelnou a obývacím pokojem se nachází v přízemí. Jeho plochu dále rozšiřují kryté terasy umístěné ve vnitřním dvoře. Jedna je koncipována jako venkovní jídelna, druhá jako prostor k odpočinku.
Technické a skladové prostory jsou společně s garáží situované také do přízemí. „Rozsáhlá dvojgaráž plynule přechází do skladu a ústí do krytého závětří vstupu domu,“ upřesňují architekti. Klidová část se třemi ložnicemi se nachází v patře. Zdejší pokoje taktéž těží z výhledu do zahrady, vystoupit se z nich navíc dá na rozlehlou pobytovou terasu.

Interiéry domu jsou zařízeny střídmě, vybavení, ale i celková forma stavby, v náznaku přebírá vybrané prvky a principy z funkcionalistické architektury. „Měkký oblouk pokoje pro hosty oživuje interiér a odkazuje na funkcionalismus, se kterým majitelka domu sympatizuje,“ dodávají architekti. Pro fasády domu byly nakonec zvoleny bílé cementovláknité desky CEMBRIT Express (Cembrit aktuálně nabízí desky malého formátu v řadě Small Module), které kontrastují s tmavými rámy velkoformátových oken. Propojení interiérů s exteriérem se v domě za Prahou od architektů z ateliéru MOLNÁR-PERÁČEK odehrává na všech podlažích.
- Autoři: Juraj Molnár, Lubomír Peráček, st., Ľubomír Peráček, ml.
- Ateliér: ateliér MOLNÁR-PERÁČEK
- Země: Česká republika
- Město: Osnice