Rozsáhlá rekonstrukce od studia M3M obnovila areál barokního zámku v Návarově
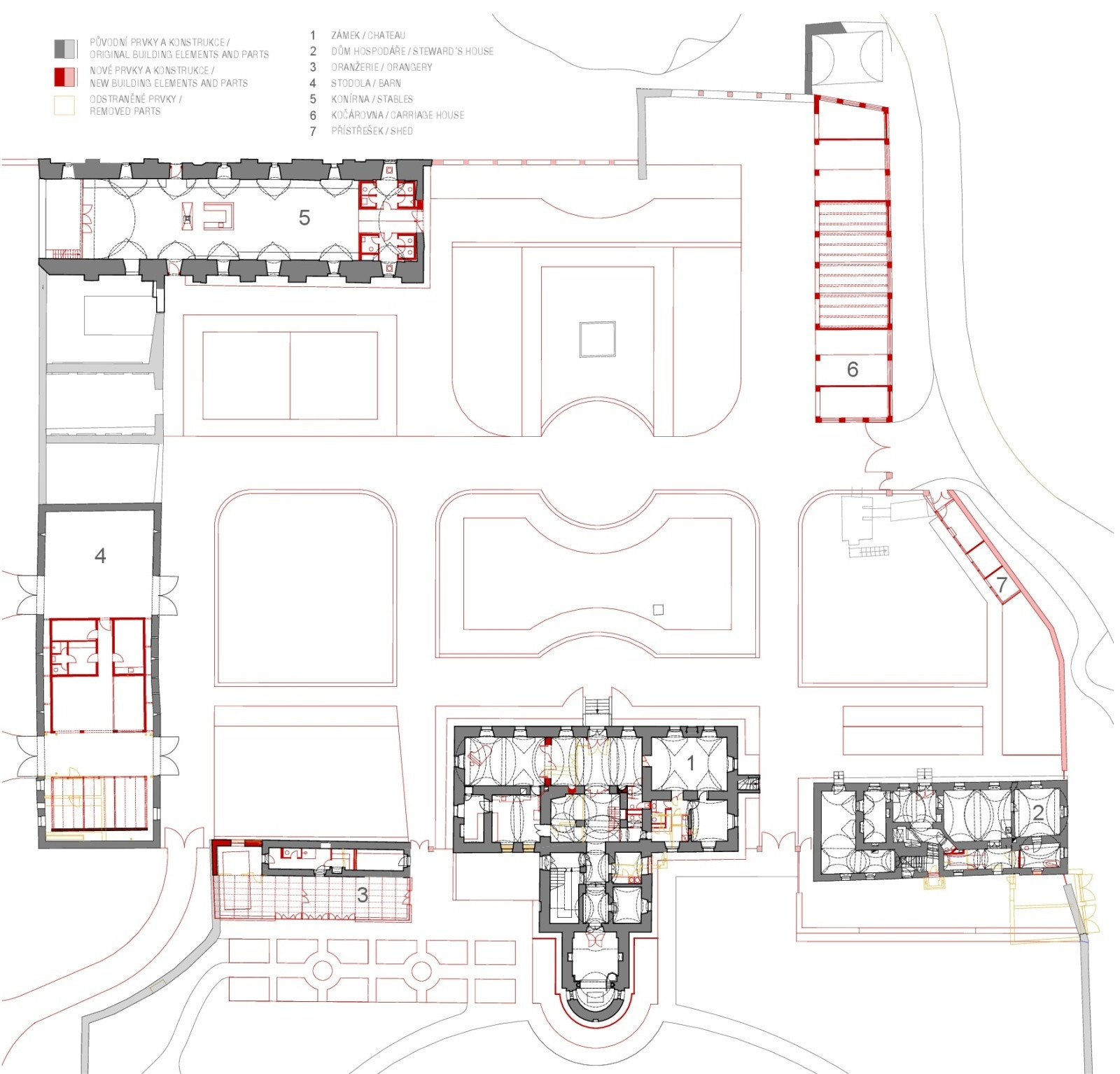
Požáry, nevhodné stavební úpravy a dlouholeté chátrání téměř zničily původní barokní identitu památkově chráněného zámeckého areálu Návarov na Liberecku. Objekty ztratily svou původní podobu ze 17. století, narušeno bylo i rozvržení celého areálu. Vzhledem ke stavu zámeckého komplexu usiloval ateliér M3M o zachování všech cenných autentických prvků, které zároveň doplnit novými vstupy. Výraznou proměnou prošla také konírna, která nově slouží jako prostor pro konání společenských akcí. Vzhledem k jejímu technickému stavu se jí architekti rozhodli ponechat v co "nejtorzálnější" podobě. Za obnovou zámeckého areálu stojí soukromý investor.
M3M s.r.o. , 26. 4. 2019
- Autoři: Martina Novotná, Michal Pokorný, Kamila Krejčiříková
- Spolupráce: Tomáš Vávra, Petr Franze, Tomáš Berger, Karolína Antošová, Tomáš Dvořák
- Země: Česká republika
- Realizace: 2017
- Město: Zlatá Olešnice
- Datum projektu: 2013
- Realizace: 2017