Sázka na osovou symetrii. Rodinný dům v Olomouci se otevírá do svého vnitřního dvora

Brněnští architekti Jiří Vokřál a Hana Horáková realizovali v Olomouci rodinný dům s dispozicí barokních paláců.
EARCH.CZ , 14. 2. 2022 / Advertorial
Nenápadně nápaditě
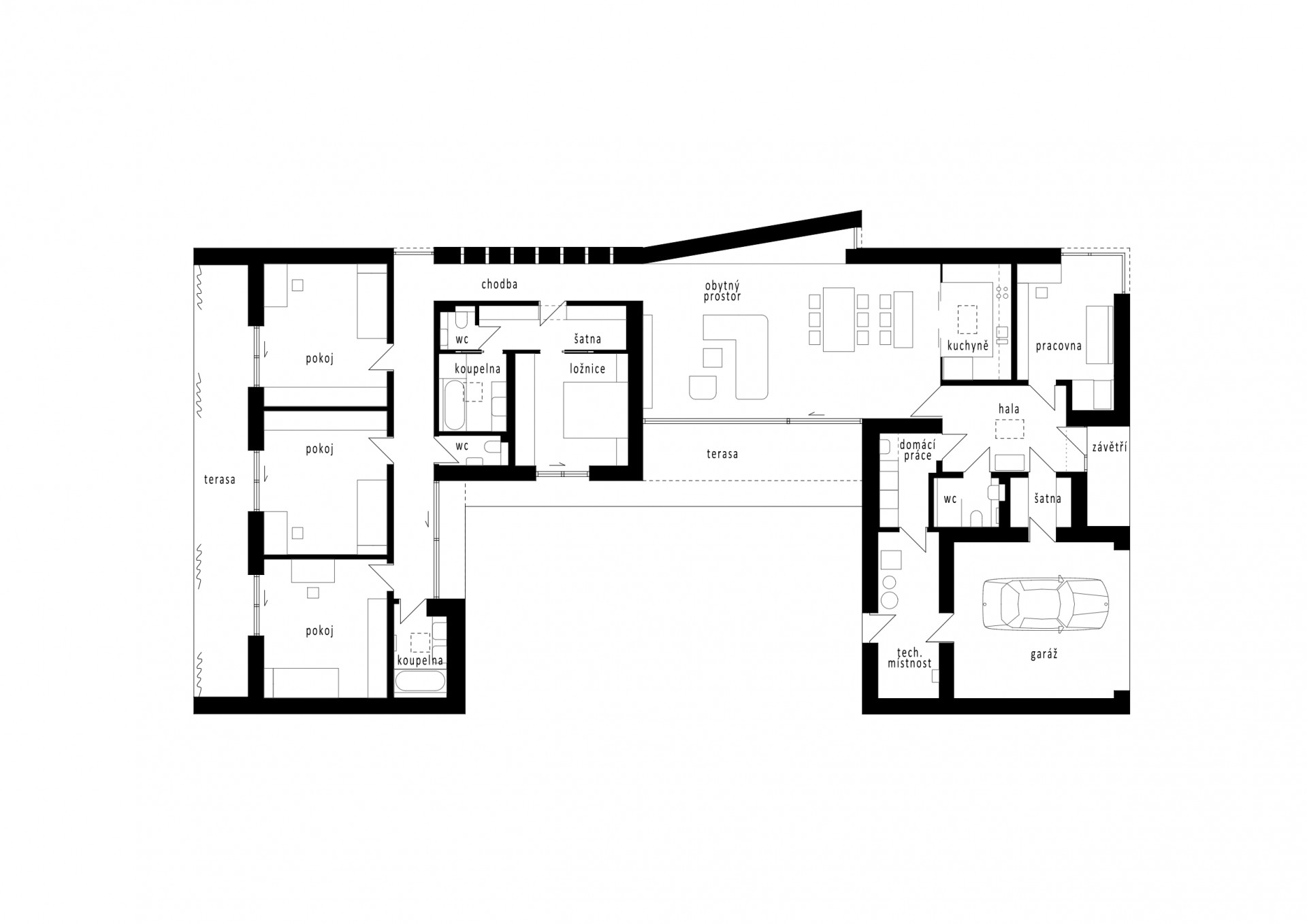
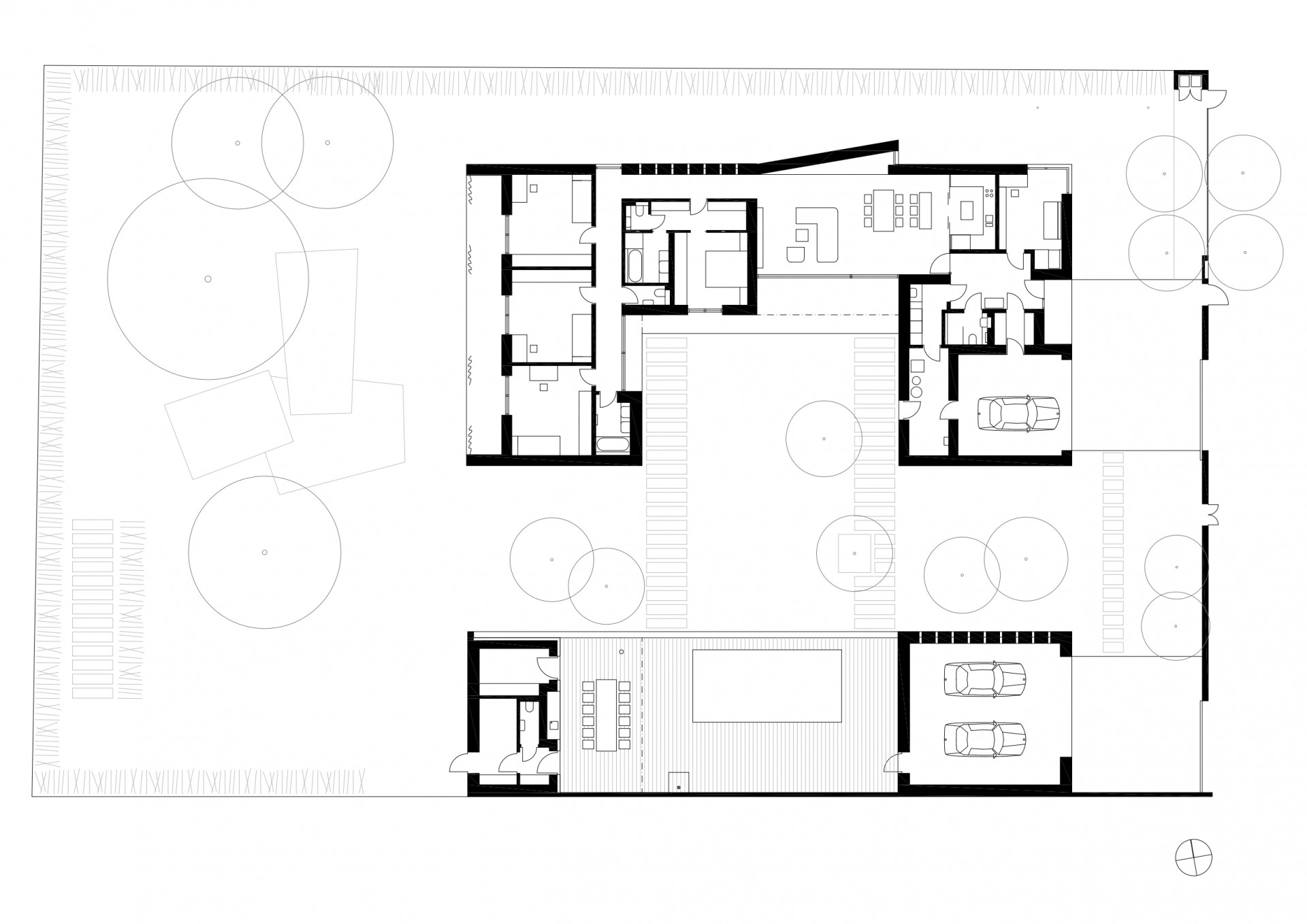
Jednoduchý rodinný dům v Olomouci od Jiřího Vokřála a Hany Horákové zaujme nápaditým dispozičním řešením a efektní prací s jinak běžnými materiály. Architekti vsadili na půdorys, který se běžně vidí u velkolepých barokních paláců. Přízemní objekt rodinného domu sestavili ze tří kubických křídel, která na půdoryse písmene U svírají vnitřní atrium připomínající barokní kompozici čestného dvora.
Rafinovanost rodinného domu v Olomouci se skrývá také v zajímavých vztazích jednotlivých vnitřních prostor. Aby architekti jeho obyvatelům zprostředkovali velkou míru soukromí, orientovali všechna okna do soukromé zahrady. Obytná část domu, situovaná v prostředním křídle, se do ústředního dvora otevírá skrze velká posuvná okna značky Schüco, která zde téměř nahradila stěny. „Velkoformátové okno s posuvným křídlem, umožňující plynulý přechod na částečně krytou terasu, zajišťuje propojení vnitřního obytného prostoru s venkovním prostorem atria,“ popisují architekti.
Více k tématu
Cesta domem
Klidovou zónu s dětskými a hostinskými pokoji architekti umístili do západního křídla. Hlavní ložnice přitom zůstala v samotném srdci dispozice domu. Od obývacího pokoje a dalších obytných místností ji izoluje probíhající chodba, a tak i se svou téměř centrální pozicí zůstala ostrovem sama pro sebe. I tyto „soukromé“ prostory architekti otevřeli do zahrady velkoformátovými okny. Světlo přivádí jak do chodby, tak i do všech ložnic a dětských pokojů, které se zároveň mohou zcela propojit se zahradou.
„Chodba se svými průhledy a okny otevírá do navazující zahrady a atria a obtáčí se kolem vnitřního ložnicového bloku. Stává se tak přirozenou cestou domem a nezůstává jen účelovou vnitřní komunikací propojující místnosti,“ vysvětlují originální dispoziční řešení Jiří Vokřál a Hana Horáková.

Pokračování jednoduchosti
Zvenčí se dům tváří velmi jednoduše, architekti vsadili na bílé omítky, které korunovali stropní deskou z pohledového betonu a vytvořili tak jakousi atiku. Ta pak směrem do ulice přechází v betonovou stěnu. Právě zdánlivě obyčejné bílé omítky se architekti rozhodli povýšit na výtvarný prvek. Velké plochy ozvláštnili plastickým rastrem s motivem vlnovek. „Tato profilace omítky vytváří na stěnách reliéfní hru stínů vystupujících linií,“ říkají o úpravě fasád architekti.
Dalším efektním prvkem se staly kruhové skleněné tvárnice, které se nachází v místech, kde dům zůstává vůči svému okolí uzavřený. Architekti tak vyřešili přívod světla do interiéru formou světelných bodů a vnitřním prostorům přitom zachovali maximální úroveň soukromí.
Počin Jiří Vokřála a Hana Horákové v Olomouci ale neskončil pouze realizací rodinného domu. Ve druhé stavební etapě na něj symetricky navázal ještě zahradní pavilon. Architekti zde znovu pracovali s pohledovým betonem, kruhovými skleněnými tvárnicemi i produkty firmy Schüco, která tentokrát dodala dveře. Nová zahradní stavba, která v sobě skrývá kryté posezení, bazén a také garáž, přitom pohledově uzavřela ústřední dvůr a rodinnému areálu tak dala podobu skutečně soukromého světa.
- Autoři: Jiří Vokřál, Hana Horáková
- Spolupráce: Radim Horák, Filip Balcar, Peter Babka, Zdeněk Šuchma, Václav Přikryl
- Město: Olomouc - Slavonín
- Datum projektu: 2012
- Realizace: 2014
- Zastavěná plocha: 362 m²
- Zahradní úpravy: Eva Wagnerová
- Obestavěný prostor: 1309 m³
- Použité systémy Schüco: AWS 75. SI, ADS 75. SI, ASS 70. HI
- Dodavatel oken: H.A. Technik s.r.o.