
Sportovní areál Blanice - Vodňany | projekt 2
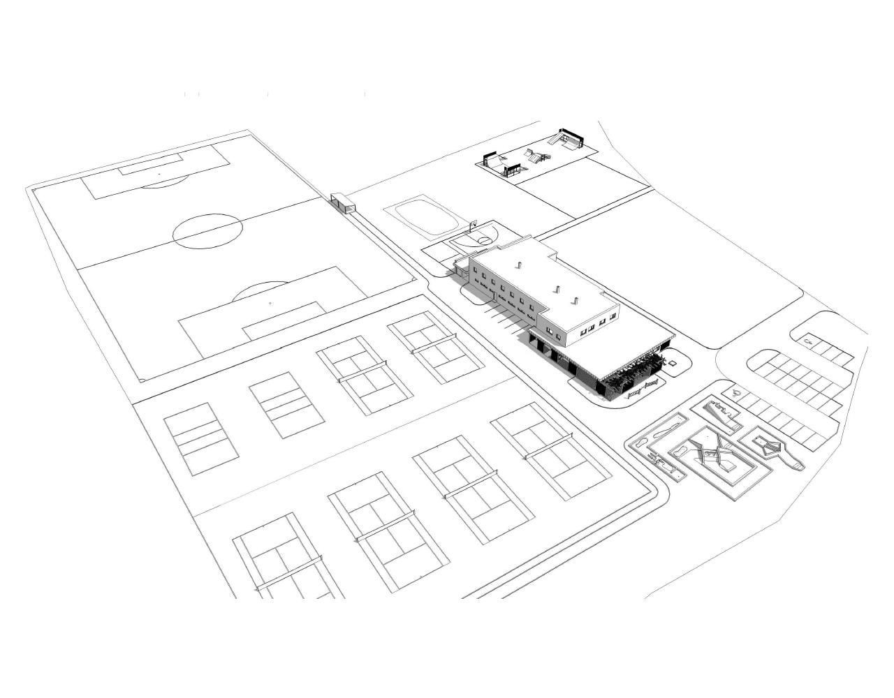
Sportovní areál Blanice je situován v severní části města Vodňan. Z urbanistického hlediska se návrh snaží o jasnou a logickou návaznost pohybu návštěvníků a zónování funkčního využití ploch.
Jiří Kobera , 24. 6. 2013
a) popis zvoleného urbanistického řešení, obsahující návrh pojetí celého areálu a jeho vazeb na okolí
Směrem k příjezdu do areálu jsou orientovány vstupy do jednotlivých provozních částí objektu - restaurace, ubytovna a zázemí sportovců. Vytváří se tím jasně definovaná a přehledná vstupní část. Zásobování restaurace je orientováno na západní stranu objektu tak, aby nerušilo společensky využívané prostory.
Parkoviště pro návštěvníky je umístěno u vjezdu do areálu. Po pravé straně od vjezdu je ponechána volná plocha, která bude mít univerzální využití- poutě, cirkus, trhy, sportovní soutěže pro děti apod. V severovýchodní části areálu je plocha pro metanou a skatepark. Vedle těchto sportovišť je umístěno hřiště na plážový volejbal, streetball a cvičná tenisová zeď. Všechny tyto aktivity jsou již zdrojem určitého neklidu, a proto jsou umístěny dál od terasy restaurace. Tenisové kurty a fotbalové hřiště zůstávají na původním místě. Všechna sportoviště jsou propojena jednoduchým systémem pěších komunikací, které vycházejí od objektu. Součástí tohoto systému je i chodník propojující sportovní areál s areálem Jihočeské university.
Důležitým faktorem pro vytvoření příjemného prostředí pro sport a rekreaci je výsadba zelené bariéry kolem areálu. Ta naváže na stávající zeleň na severozápadní straně areálu. Zeleň uzavře dnes volný prostor a zároveň poskytne ochranu sportovišť proti větru.
b) zdůvodnění zvoleného komplexního architektonického řešení objektu „budova“
Cílem architektonického řešení je ze stávající budovy vytvořit příjemný prostor pro rekreaci a sport, cíl pro sobotní odpoledne pro celou rodinu. Přístavba restaurace tvoří podnož pro původní objekt a splývá s ním díky zvolenému jednoduchému tvarosloví a architektonickým prvkům v jeden celek. Pro sjednocení výrazu objektu byly použity u vstupů, terasy restaurace, zázemí restaurace vzdušné dřevěné žaluziové dělící stěny. Ke sjednocení přispívá i jednotná atika přístaveb a markýz u vstupů. Celá budova je řešena z jednoduchých logických objemů. Přívětivost prostoru se dociluje využitím lidského měřítka jednotlivých částí stavby a využitím tradičních stavebních materiálů jako je lícové zdivo, dřevo, omítka. Charakteristickým prvkem stavby jsou dřevěné žaluziové stěny. Ty jsou použity na různých částech objektu s různou funkcí. U terasy a pergoly restaurace spoluvytvářejí polouzavřený prostor a slouží jako slunolam na jižní a západní fasádě. Zároveň jsou oporou pro popínavé rostliny u pergoly. U vstupů do objektu vytvářejí závětří. Na západní straně u zásobování restaurace, slouží především jako zástěna pro skladovací prostor a prostor pro kontejner. Výrazně se na celé stavbě uplatňují dřevěné prvky a to ne jen jako doplňkový, ale i jako nosný konstrukční materiál. Kromě pergoly a zastřešení terasy je dřevo použito i jako nosná konstrukce střechy v restauraci, kde budou dřevěné prvky přiznány v interiéru. Dřevo je použito tak, aby bylo chráněno proti povětrnostním vlivům. Navržená architektura je střízlivá bez snahy o „laciné„ tvarové efekty. Je přiměřená místu a účelu stavby.
c) popis provozně dispozičního řešení a řešení materiálového a konstrukčního s důrazem na opatření snižující energetickou a provozní náročnost objektu – bude uveden odhad tepelných ztrát
Dispozice objektu je rozdělena do třech samostatně fungujících částí. Jedná se o prostory pro sportovce, restauraci se zázemím a ubytovnu. Prostory pro sportovce jsou umístěny v původním objektu v prvním nadzemním podlaží, kde se dispozice téměř nemění. Změnou je vytvoření vstupu pro sportovce z východní strany objektu. To zjednodušuje orientaci návštěvníků a nenutí je obházet budovu. Zachován byl vstup sportovců ze západní strany budovy k tenisovým kurtům a ze severní strany k fotbalovému hřišti. Zůstávají zde čtyři šatnové jednotky, šatny pro rozhodčí, fotbalové šatny i toalety, které jsou umístěny uprostřed dispozice. K toaletám přístupným zvenku na severní straně je přistavěn záchod pro tělesně postižené, který v budově chyběl a zároveň prostor pro uložení sportovního náčiní a traktůrku na sekání trávy. Provoz restaurace je řešen z části v původní budově, z části v přístavbě. Vstup je orientován k vjezdu do areálu. U vstupu je přístřešek na kola a motorky. Terasy navazují na západní a jižní fasádu. Mají výhled na přilehlá sportoviště – minigolf, tenis a dětské hřiště. V původním objektu je umístěno celé zázemí restaurace navržené v souladu s hygienickými předpisy. Kapacita kuchyně cca 150 jídel. V zázemí je umístěno a stavebně odděleno několik druhů provozů - sklady potravin, nápojů, odpadků i obalů, přípravny masa a zeleniny, kuchyně a hygienické zázemí zaměstnanců. V nové přístavbě je převážně prostor samotné restaurace s cca 50ti místy a hygienické zázemí hostů i s umístěným WC pro zdravotně postižené. Na prostor restaurace plynule navazuje letní terasa s kapacitou kolem cca 80ti míst, která je z části zastřešená a z části je pod pergolou. Bar a výčep je umístěn tak, aby byl v centru odbytového prostoru restaurace, měl snadný přístup do zázemí a zároveň z něj bylo možné obsluhovat terasu. Zásobování restaurace je ze západní strany. Pod přístřeškem je prostor na kontejner a obaly.
Vstup do provozu ubytovny je umístěn na východní straně objektu tak, aby byl zřejmý od vjezdu do areálu. V nově přistavěné části je umístěna recepce ubytovny a pokoj pro zdravotně postižené, který dle norem musí mít ubytovna s více jak dvaceti lůžky. Umístěním tohoto pokoje do prvního nadzemního podlaží odpadá problém s umístěním a provozními náklady výtahu. Ubytovna má v druhém nadzemním podlaží třináct dvoulůžkových pokojů, jeden pokoj pro rodinu, kancelář pro správce a jeho byt o velikosti 2+kk. Každý pokoj má samostatnou koupelnu.
Konstrukční systém nových přístaveb je zděný stěnový a konstrukci letní terasy tvoří dřevěné sloupky a nosníky. Zastřešení přístavby je tvořeno dřevěnými lepenými nosníky přiznanými v interiéru. Obvodové zdivo přístaveb je obloženo cihelnými pásky, pohledovou část atik tvoří lakovaný plech šedé barvy. Výplně otvorů jsou plastová okna v barevných odstínech šedé a bílé. Stávající objekt je zateplen na doporučované hodnoty dle ČSN 73 05 40, rovněž tak se předpokládá zateplení střechy s PVC folií. Střecha přístavby restaurace je opatřena vrstvou kačírku jako ochrany hydroizolace a zabránění přehřívání interiéru stavby. U pergoly a terasy jsou navržené dřevěné žaluzie. Celé řešení vychází z tradičních materiálů a stavebních prvků odpovídajícím charakteru objektu.
Budova je řešena s ohledem na optimální využití tepla a omezení tepelných ztrát. Použity jsou jednoduché tvary a konstrukce, které umožňují snadné a precizní provedení konstrukcí s ohledem na jejich tepelně izolační vlastnosti. Orientace prosklených ploch je na jižní a západní stranu, tedy na osluněné strany. Velikost otvorů je navržena přeměřená k velikostem místností. Na střeše restaurace je navržena ochranná vrstva kačírku proti přehřívání. U původního objektu je navrženo zateplení stěn i střechy. Tepelné ztráty celého objektu se odhadují na 75kW(14W/m3)
d)popis řešení systému vytápění, přípravy TUV, větrání, rekonstrukce ZI a rozvodů E
1. Vytápění - pro vytápění areálu objektu je navrženo tepelné čerpadlo země- voda o celkovém tepelném výkonu 110kW (75 kW vytápění + 35kW TUV). Jako zdroj tepla je navržen zemní kolektor o předpokládané ploše cca 4500m2. Bude umístěn pod volnými travnatými plochami vpravo od vjezdu a plochou pro metanou a streetballem. Jako doplňkový zdroj je uvažován elektrický kotel. S ohledem na nízkoteplotní zdroj se předpokládá v nově budovaných prostorech restaurace využití podlahového vytápění. V rekonstruovaných prostorech je navrženo vytápění radiátory. V objektu budou čtyři měřené sekce - restaurace, byt, ubytovna, sportovní zázemí.
2. Příprava TUV - pro ohřev TUV se předpokládá využití stejného zdroje jako na vytápění, tepelné čerpadlo země- voda. Pro letní období je navržen ohřev TUV slunečními kolektory umístěnými na střeše původního objektu. V objektu budou čtyři měřené sekce - restaurace, byt, ubytovna, sportovní zázemí.
3. Zdravotní instalace - v rekonstruované části se předpokládá kompletní výměna rozvodů. Využito bude pouze ležaté kanalizace a stoupacího potrubí. Před rekonstrukcí doporučujeme provést průzkum stavu potrubí. Dle jeho stavu pak bude rozhodnuto, zda bude možné využít páteřní rozvody vody
4. Elektroinstalace - s ohledem na stáří objektu a způsob provedení rozvodů se předpokládá kompletní výměna elektroinstalací. Instalována budou čtyři měření - restaurace,ubytovna, sportovní zázemí, byt
5. Vzduchotechnika - v rekonstruované části bude instalováno lokální odsávání koupelen u pokojů, bytu a sociálního zázemí. Řešení v restauraci záleží na požadavku na kvalitu prostředí a způsob provozu.V kuchyni bude umístěna vzduchotechnická jednotka s ohřevem vzduchu bez rekuperace tepla.Ta není uvažována s ohledem na to, že provoz v kuchyni bývá max. 3-4 hodiny denně. V tomto případě je rekuperace neekonomická. V případě, že se v restauraci nebude kouřit je možné v restauraci použít pouze odtah pomocí ventilátoru a potrubí. Ostatní prostory budou větrány lokálně. Toto řešení je za předpokladu, že nebude požadavek na řešení objektu jako pasivní stavby.
e) popis aktivit, objektů a zařízení navržených v rámci „širších vztahů“ vč. odhadu nákladů členěných dle jednotlivých typů aktivit
Navrhované aktivity se dají rozdělit na dva typy. Jeden zahrnuje klidnější a fyzicky nenáročné aktivity jako minigolf a dětské hřiště, které jsou situovány u letní terasy restaurace a druhé jsou umístěny v severní části areálu a zahrnují skatepark, plochu pro metanou, plážový volejbal, streetball a cvičnou tenisovou zeď.
Cena celkem 2 207 000,-
Více k tématu
- Autoři: Jiří Kobera
- Ateliér: ATELIÉR KOBERA s.r.o.
- Spolupráce: Lenka Holubová
- Země: Česká republika
- Město: Vodňany
- Suma: 2 207 000.00
- Datum projektu: 2012