
Továrna na bydlení v Karlíně. Má výhled na zelený Vítkov a 48 bytů s lodžiemi
V jedné z posledních karlínských proluk vyrostl bytový dům. Připomíná dobu, kdy byl Karlín průmyslová čtvrť. Ale zároveň nabízí pohodlné bydlení a současnou architekturu.
Viktorie Majoberová , 19. 3. 2024
Starý Karlín si každý představí jako scenérii dýmu valícího se z továrních komínů. Stejně jako Smíchov to byla pražská čtvrť s rovným povrchem u řeky Vltavy. To byly tehdy dva nejdůležitější parametry toho, aby někde mohla vyrůst průmyslová čtvrť. Novostavba od studia Edit! zdejší historii respektuje a reflektuje svým vzhledem i členěním.
Bytový dům je rozdělen na dvě části, dva domy. Toto hmotové členění vychází z původní parcelace pozemku. Také to respektuje strukturu městského bloku, kde se střídá výška střech a říms. „Budova má dvě hlavní fasády. První je orientovaná do ulice Sokolovská a druhá do vnitrobloku. Uliční fasáda tvoří identitu budovy samotné. Keramický obklad s dekorem ve dvou odstínech odkazuje na tradiční materialitu nejen fasád bytových domů z 30. let minulého století, ale také místních industriálních objektů, které vlivem mohutného rozvoje z lokality již téměř vymizely,“ popisují architekti ze studia Edit!.
Více k tématu
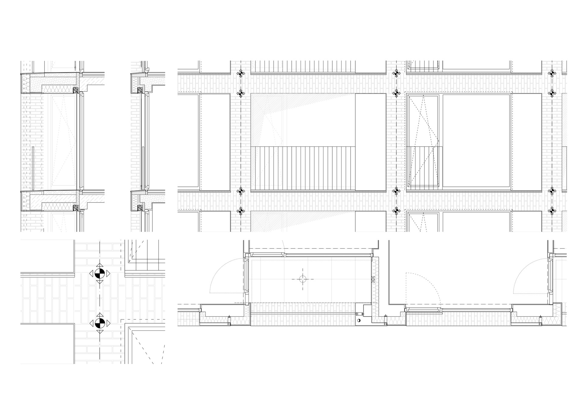
Historický kontext místa připomíná také předsazený hliníkový lamel v levé části fasády. Architekti totiž čerpali z kontur historické budovy, která na parcele kdysi stávala, a připomínají tak původní měřítko i ducha místa. Keramický obklad zbylé fasády sice podporuje charakter industriálních budov, nicméně v posledním nadzemním podlaží plynule přechází ze svislé fasády do střešní roviny, díky čemu projev domu působí současně.

Dva domy se na první pohled liší také členěním oken. Systém fasádních otvorů je navržen jako rastr oken a lodžií, díky kterým jsou všechny byty řádně prosvětleny. Zasklení každého otvoru je členěno na pevnou a otevíravou část. Netradiční je také nízký parapet, který autoři navrhli vysoký pouhých 450 mm nad podlahou.
Konstrukčně se jedná o železobetonový stěnový systém doplněný keramickými tvárnicemi. Šikmé střechy v posledním nadzemním podlaží jsou ze dřeva. Keramický obklad fasády byl navržen ve dvou odstínech a na míru ho vyvinuli v české cihelně v Kadani.
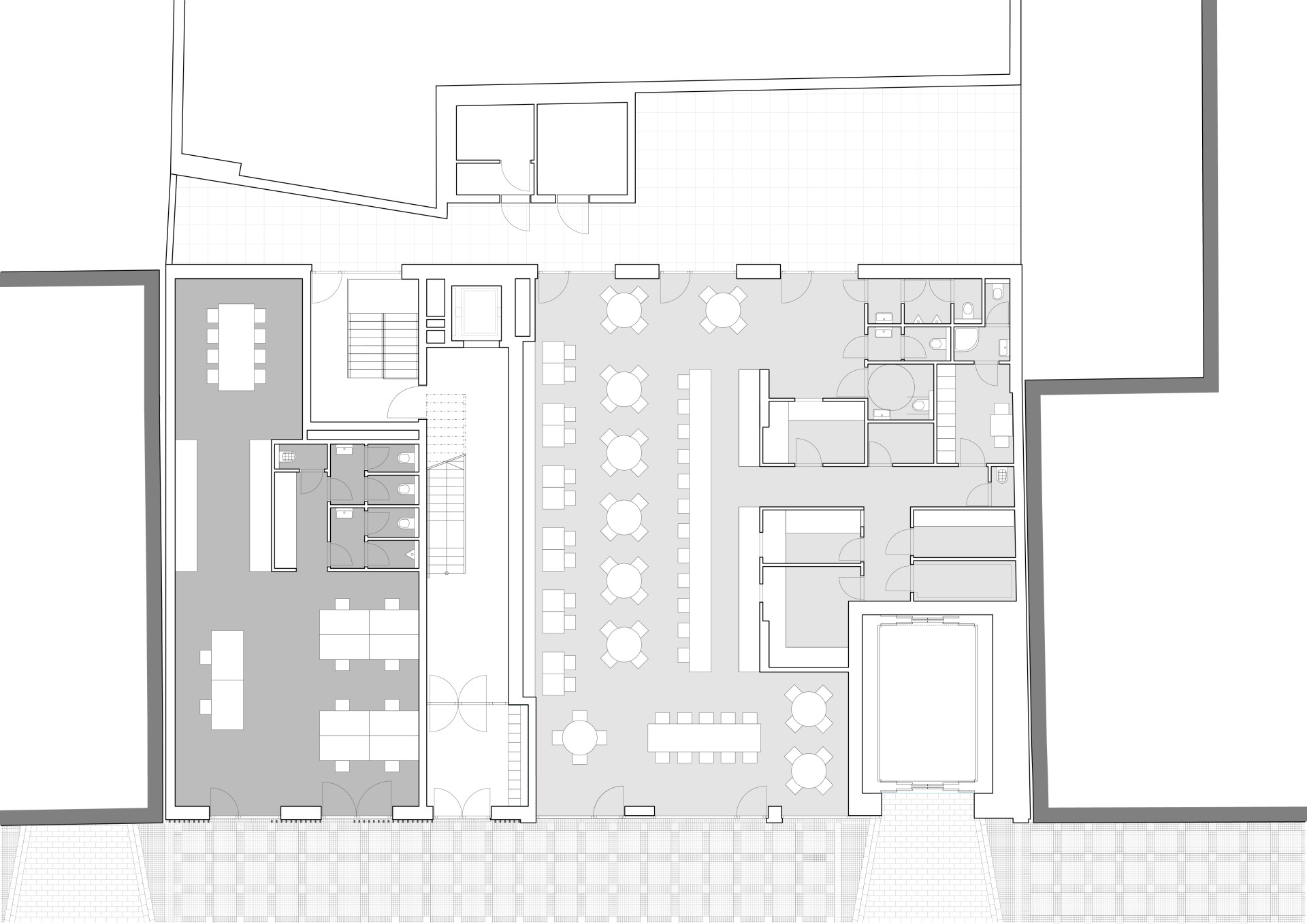
Oběd z restaurace v parteru si můžete vychutnat na terase
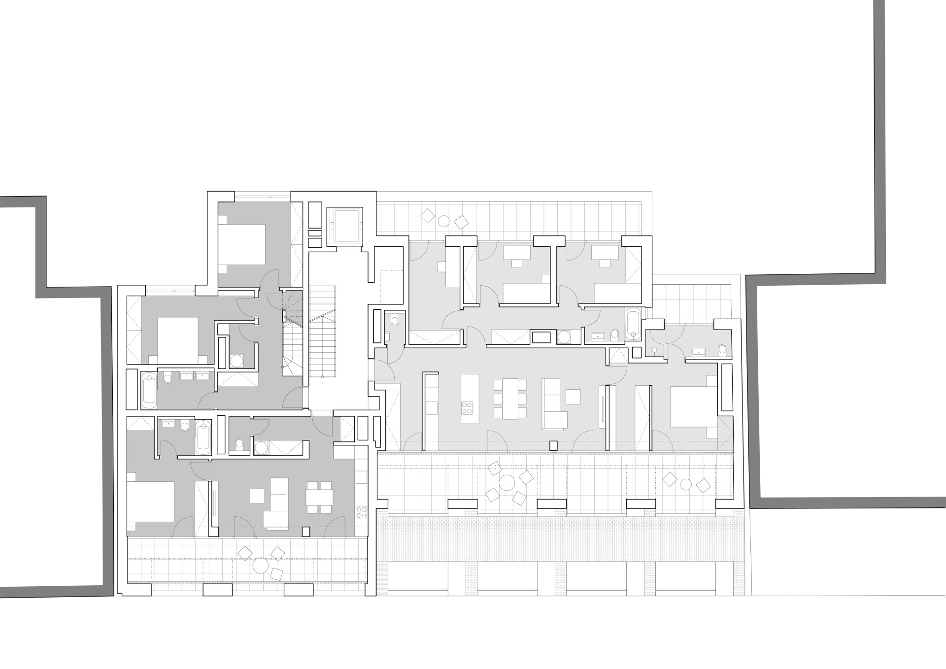
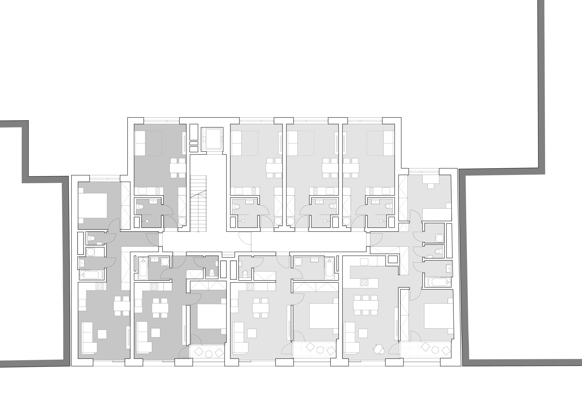
Z pohledu vnitřního uspořádání se jedná o úplně klasický městský bytový dům, tedy trojtrakt s jedním vertikálním jádrem. Budova má tři podzemní podlaží, kde se nachází technické zázemí, parking a sklepy pro nájemníky. Funkční parter nabízí dvě komerční jednotky pro gastronomický provoz. Budoucí restaurace bude smět využít i prostor ve vnitrobloku jako zahrádku.
Celkově se v domě nachází 48 bytů. Dispozičně novostavba nabízí byty od 1+kk až po 4+kk. Většina 2+kk bytů má vlastní lodžii přístupnou z obývacího pokoje i ložnice. Venkovní prostor je orientovaný na jih do ulice Sokolovská. Architekti tím kromě příjemného standardu bydlení opatřili nájemníkům větší soukromí. Lodžie totiž fungují jako clony, které zmírní míru vidění do interiéru bytového domu.

Poslední dvě patra jsou řešena jako penthouse se střešní terasou a bazénem. „Jsou to prémiové jednotky větších dispozic, s celoprosklenými obytnými místnostmi se nacházejí v horních podlažích domu. Z jejich prostorných teras se naskýtá pohled na zelený Vítkov i střešní krajinu Karlína,“ popisuje studio Edit!.
V Karlíně se bezpochyby podařilo navrhnout dům, ve kterém se potkává historie se současností a luxus s pohodlím. Je ale fakt, že průmyslový charakter čtvrti společně s původními obyvateli je nenávratně pryč. I když je to keramický obklad na drahém domě, je moc dobře, že se tu uchovávají alespoň odkazy a symbolické upomínky. Nicméně z toho minulého Karlína se již nenávratně stala čtvrť pro bohaté.
- Autoři: Ivan Boroš, Juraj Calaj, Vítězslav Danda
- Ateliér: edit! architects
- Spolupráce: Vojtěch Novotný, Tomáš Voborský
- Země: Česká republika
- Město: Praha
- Adresa:: Sokolovská 48, Praha 8 - Karlín
- Projekt: 2018
- Realizace: 2023
- Zastavěná plocha: 609 m² včetně suterénu
- Hrubá podlahová plocha: 5433 m² včetně suterénu
- Užitná plocha: 2723 m² nadzemní část
- Plocha pozemku: 609 m²
- Náklady: 157 mil. CZK
- Investor: Karlín Group (IconiK jako Karlín)
- Fotograf: BoysPlayNice
- Generální zhotovitel stavby: Metrostav a.s.
- Statika: Statický servis s.r.o.
- Navigační systém: Markéta Steinert