
Bydlení na kultovní Solidaritě. Do malého řadového domku se povedlo dostat dětský pokoj i pracovnu
Sídliště Solidarita bylo odpovědí na bytovou krizi po 2. světové válce. Od té doby nezestárlo. Dnes je to žádané bydlení, které lze dobře přizpůsobit dnešnímu životu. Ukazuje to rekonstrukce od BY architects.
Adéla Vaculíková , 5. 4. 2024
Z předzahrádky se vychází na cestu vyhrazenou jen pro pěší a zástavba tady připomíná Skandinávii. Takový charakter má sídliště Solidarita v Praze-Strašnicích. Vybudováno bylo brzy po druhé světové válce, s výstavbou se započalo v rámci takzvaného dvouletého hospodářského plánu (1947–1948) a mělo pomoct s řešením bytové nouze. Stavělo se rychle, levně, poprvé typizovaně.
Více k tématu
Přitom se ale nezapomnělo na občanskou vybavenost. Dodnes tady funguje školka a divadlo. Architekti František Jech, Hanuš Majer a Karel Storch území zkrátka dobře naplánovali. Díky tomu je Solidarita i dnes oblíbenou adresou, kde se dá bydlet v bytových i rodinných domech. A jeden z řadových rodinných domů nedávno prošel rekonstrukcí podle návrhu ateliéru BY architects.
„Když nás klienti oslovili s návrhem rekonstrukce v legendárních strašnických dvouletkách, byl to splněný sen,“ říkají Markéta Zdebská a Marek Žáček. Do ulice řadovce zůstal její typický vzhled. Architekti upravili její parter, obnovili dřevěný obklad, který rodinné domy na Solidaritě měly už původně. Interiéry naopak potkaly velké změny, dispozice se proměnila tak, aby byl maximalizován obytný prostor. Domky totiž nejsou nijak velké, dispozičně typicky odpovídají 3 + 1.

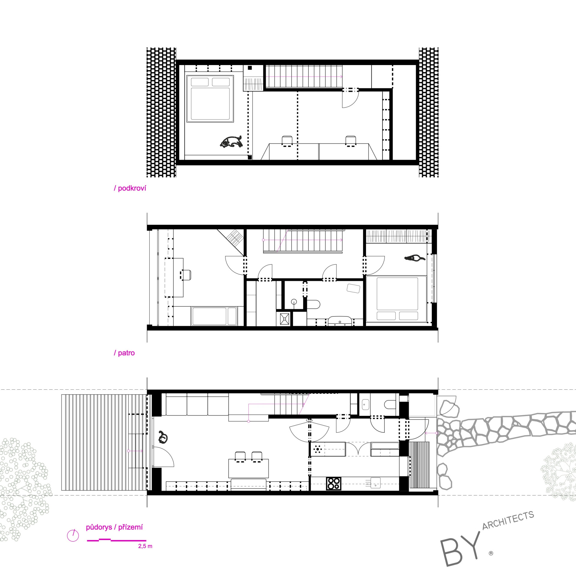
Dle originálního projektu měly domy směrem do zahrady v patře balkon, majitelé si je ale často zastavují, aby měli uvnitř více místa. Dům rekonstruovaný BY architects měl už před jejich vstupen balkon taky pryč, konkrétně o něj byl zvětšený pokoj, který teď po rekonstrukci slouží jako dětský. Bez venkovního pobytového prostoru ale obyvatelé nejsou, zahradu tu má každá řadovka a architekti ji doplnili novou dřevěnou terasou v přízemí.
V přízemí měly zase domky dlouhou chodbu, která vedla od vchodu do obývacího pokoje. Ta je tady stále, architekti ji ale udělali prostupnější. Průřezem ve stěně se tudy vchází do kuchyně, která pak navazuje na obývací pokoj.

Dům se po rekonstrukci dá užívat od přízemí až po podkroví. Mezi podlažími se chodí po schodišti, které dostalo nové ocelové zábradlí s vypalovaným vzorem. Architekti si v domě nechali záležet na detailech. Interiéry jsou jemné, objevují se v nich barvy podobné těm z exteriéru. Místnosti jsou bíle vymalované, podlahy hlavně dřevěné, nábytek na míru je ze stejného materiálu.
Vzhledem k velikosti domu bylo potřeba účelně vyřešit úložné prostory. Nejvíce věcí se vejde do vestavěné skříně v ložnici. V obývacím pokoji jsou úložné prostory pod lavicí, která se táhne podél celé jeho boční stěny. Originálně je řešená taky skříň v dětském pokoji, která je do rohu vsazena tak, že ho vyplňuje. „Vzhledem k tomu, že pokoj nedisponoval žádným ostěním okolo okna, navrhli jsme integrovanou diagonální skříň v rohu. Ta s sebou samozřejmě nese určité prvky nepraktičnosti, ale klienti ji od samého počátku milují a naučili se s ní efektivně zacházet,“ popisují architekti. Na malý dům působí prostory skutečně velkoryse, každý člen rodiny si v domě najde své místo. A kdo potřebuje mít od všech klid, může se uklidit do pracovny v podkroví.

- Autoři: Markéta Zdebská, Marek Žáček
- Ateliér: BY architects
- Země: Česká republika
- Město: Praha - Strašnice
- Projekt: 2020
- Realizace: 2023
- Plocha pozemku: 170 m²
- Užitná plocha: 120 m²
- Fotograf: Alex shoots buildings