Studio AEIOU navrhlo jednoduchý a dostupný rodinný dům nedaleko Brna
V malé obci Lelekovice nedaleko Brna navrhlo studio AEIOU nový jednopodlažní rodinný dům. Stavba si zachovává klasický tvar venkovských domů se sedlovou střechou a obdélníkovým půdorysem, jihozápadní fasáda pak nabízí velké prosklené plochy oken a dveří. Svým umístěním na kraji pozemku se před domem otevírá velká neoplocená zahrada, na které si hrají děti z celého okolí.
EARCH.CZ , 17. 3. 2020
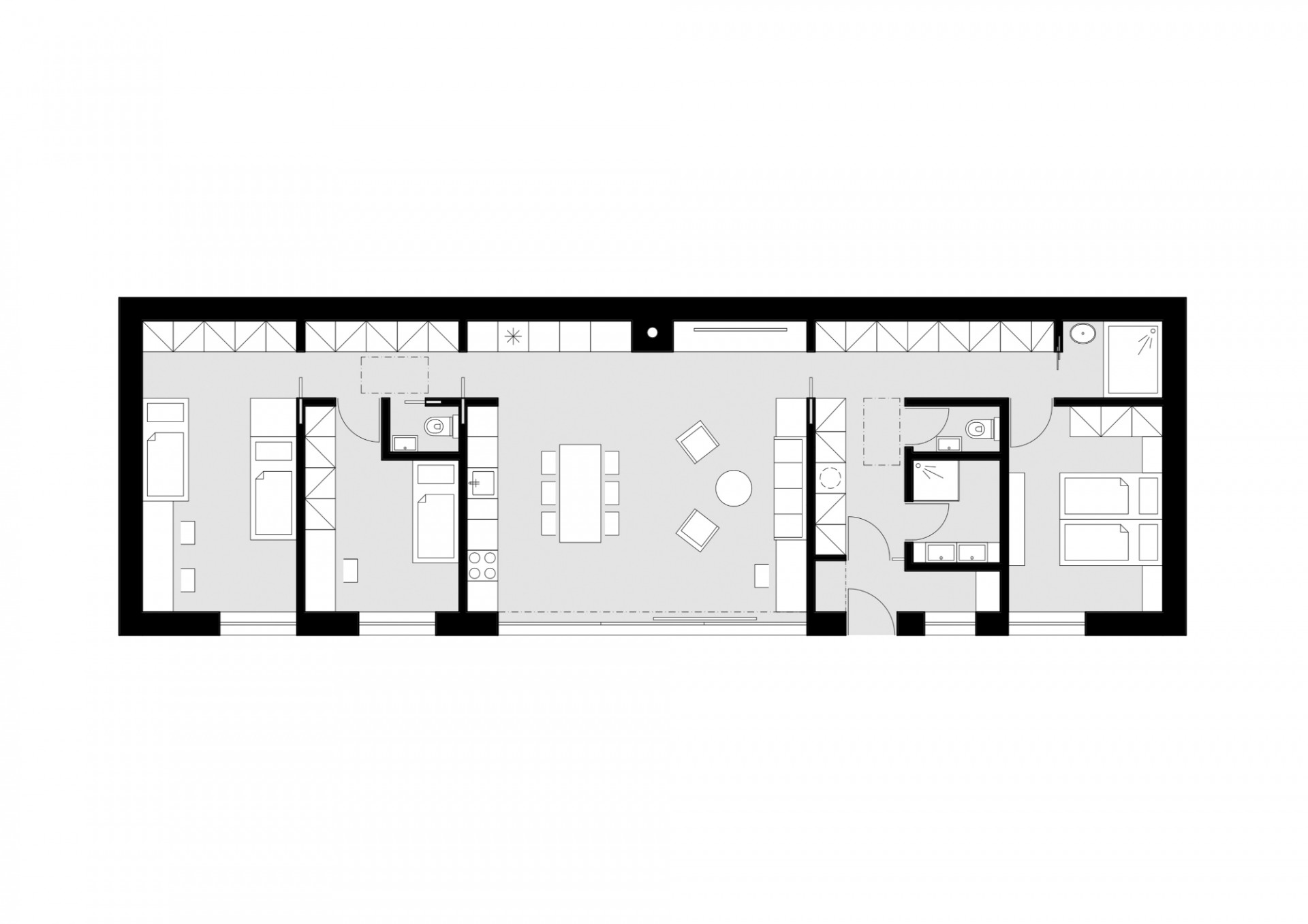
Klient požadoval střídmý, avšak originální dům s minimálními investičními náklady. Půdorys rodinného domu je relativně úsporný. Díky optimalizaci komunikačních ploch vůči plochám obytným a přehlednému uspořádání dispozice naplňuje dům požadavky moderního bydlení pro pětičlennou rodinu s malými dětmi.
Moderní pojetí tradičního venkovského stavení
Při návrhu hmotového řešení domu vycházeli autoři z tradičního venkovského stavení se sedlovou střechou. Současně se ovšem museli držet požadavků místního regulačního plánu. Vznikl tak hmotově jednoduchý přízemní dům, který směrem do ulice vytváří pomyslnou ochrannou skořápku díky obvodovým zdem bez oken, což zajišťuje jak vizuální tak akustickou pohodu obyvatel domu. Na opačné straně se naopak dům díky velkorysému zasklení otevírá do zahrady.
V duchu místní architektury zvolili autoři i použité materiály. Cihelné zdivo s kontaktním zateplovacím systémem a hladkou omítkou v kombinaci odstínů bílé a šedé omítky doplňuje skládaná střešní krytina Tondach v typickém odstínu režných tašek, jež se nejčastěji uplatňují u většiny okolních staveb. Konstrukci sedlové střechy tvoří hambálkový dřevěný krov, který nechali autoři ve společenské části otevřený. V ostatních místnostech nalezneme přiznaný dřevěný trámový strop. Okna jsou dřevěná, opatřená transparentní lazurou pro zajištění přírodního vzhledu.
Více k tématu

Pohodové bydlení díky přehledné dispozici
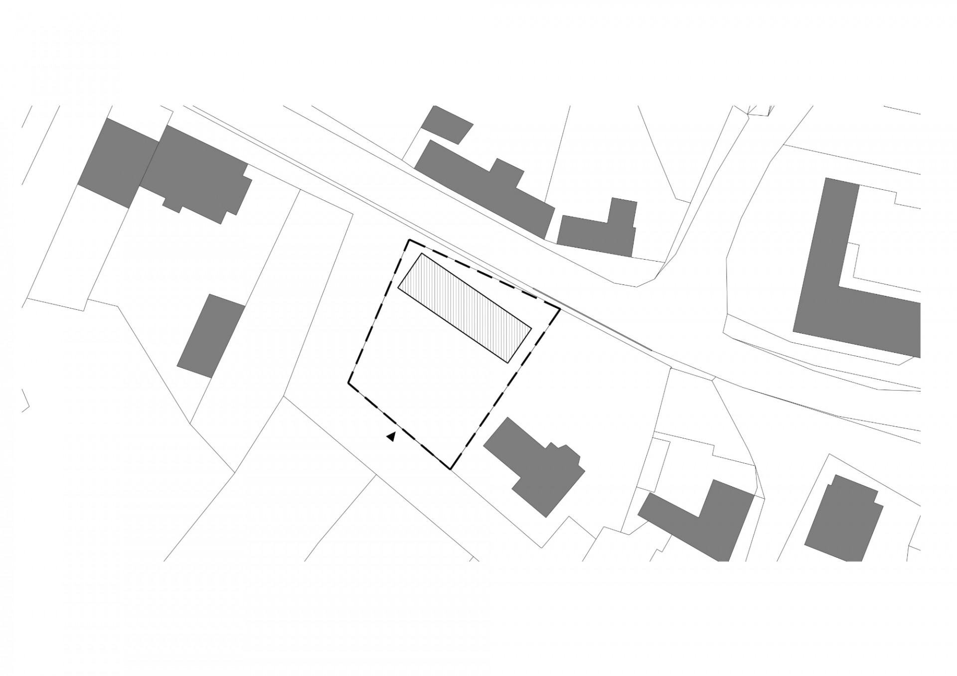
Do prostoru obvodové skořápky umístili architekti dva boxy, které vnitřní prostor dělí na jednotlivé místnosti. Společenská část představující “srdce“ celého domu, se otevírá do krovu. Při svém návrhu zohledňovali autoři jak místní vztahové poměry (blízkost komunikace, různé výškové úrovně) tak optimální využití světových stran. Dominující prosklená fasáda se proto obrací k jihozápadu s navazující zahradou. Díky umístění objektu téměř na severní hranici pozemku je přilehlá zahrada využita v největší možné míře. Bezprostřední blízkost komunikace na severní straně domu eliminují plné obvodové stěny bez jakýchkoliv otvorů. Akustickému útlumu vnějšího hluku navíc pomáhá i dispoziční řešení, neboť prakticky po celé délce severní stěny nalezneme úložné prostory.

Tento článek vznikl za podpory společnosti WIENERBERGER s.r.o.
Společnost Wienerberger s.r.o. má sídlo v Českých Budějovicích, odkud řídí služby, výrobu a prodej systému stavebních materiálů pro výstavbu zejména rodinných a bytových domů. V jedenácti závodech v České republice vyrábí cihelné bloky pro vnější a vnitřní zdivo, keramobetonové překlady a keramické polomontované stropy značky Porotherm a střešní krytinu značky Tondach. Náročnějším zákazníkům nabízí také lícové cihly (klinkery) a obkladové pásky Terca či cihlovou dlažbu Penter.
- Ateliér: studio AEIOU
- Autoři: Jan Vojtíšek, Jakub Staník
- Spolupráce: Tamara Bemerová, Nikola Levá, Tomáš Pevný
- Země: Česká republika
- Město: Lelekovice
- Datum projektu: 2016
- Realizace: 2019
- Užitná plocha: 105.00m2
- Zastavěná plocha: 136.00m2
- Plocha pozemku: 650.00m2
- Použité materiály: