Studio ARCHOO pojalo šetrnou školku v malé obci na Vysočině jako moderní prosvětlenou stodolu
Svým výrazem nenápadná stavba, kvalitní vnitřní prostředí a vzorné nakládání s přírodními zdroji, které ocenila odborná porota nejedné soutěže. Stručná charakteristika školky pro 25 dětí, kterou do malé obce na půli cesty mezi Telčí a Jihlavou navrhlo studio ARCHOO. Vítejte v Sedlejově.
EARCH.CZ , 8. 6. 2020
Obecní úřad s hospodou a samoobsluhou, rybník na návsi a staré zemědělské družstvo v polích za vesnicí. Sedlejov na Jihlavsku patří na první pohled mezi běžné české vesnice. Přesto se ale od ostatních obcí v jednom ohledu výrazně liší. Může za to mateřská škola situovana při jednom z nárožních pozemků místní návsi.
V přízemním objektu se sedlovou střechou, který na této parcela vyrostl, byste ale školku možná úplně nečekali. Ve snaze navázat na okolní prostředí se totiž architekti z lokálního ateliéru ARCHOO inspirovali tradiční venkovskou zástavbou a školka tak dostala podobu lehce modifikované stodoly. Vedle tvarosloví jednoduchého hospodářského objektu přijala školka za své také typické materiály. Její stěny tak svítí bíle omítaným zdivem střídajícím se s plochami dřevěného obkladu, sedlovou střechu kryjí řádky režných keramických tašek. Stejných, jaké pokrývají desítky okolních stavení.
Více k tématu
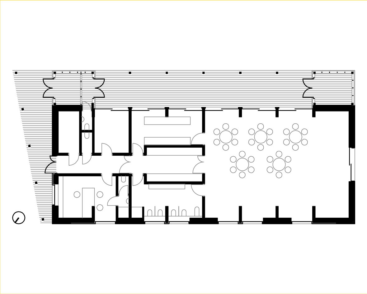
Z hlediska dispozice je pak tato „stodola“ rozdělena na tři části – první se vstupem a zázemím zaměstnanců, druhou se šatnami dětí, toaletami a výdejem jídel a třetí s hlavním prostorem herny, z níž je možno vyjít na zastřešenou terasu a dál do zahrady. Navzdory funkčnímu rozčlenění si však interiér zachoval jednotný charakter, a to díky několika sjednocujícím prvkům. Prvním z nich je přiznaný konstrukční systém zastřešení, který se v podobě nesymetrických železobetonových rámů táhne celou budovou jako kostra velryby. Druhý představuje totožná barevnost místností a třetici jednotících elementů by bez dlouhých rozvah mohlo jistě doplnit denní světlo. Toho je totiž v celé školce víc než dost.
A právě množství denního světla je také jedním z aspektů, který sedlejovskou školku pomáhá odlišit od školek v okolních obcích. Se stejnou důsledností, s jakou se snažili o přirozené začlenění novostavby do stávající vesnické architektury, přistupovali totiž architekti také k řešení vnitřního prostředí školky. Do objektu proto navrhli poměrně velkorysé okenní otvory, které nejen že propojují místnosti s exteriérem a umožňují dětem pozorovat dění v zahradě stejně jako to, jestli už se z návsi blíží jejich rodiče, ale hlavně do celého interiéru pouštějí dostatek přirozeného světla, které významně přispívá k celkové vnitřní pohodě.
Vedle množství denního osvětlení nelze nezmínit také jeho kvalitu, která tkví převážně v jeho rovnoměrném přísunu. Toho architekti dosáhli návrhem řady střešních oken a také proskleným zastřešením zahradní terasy, kterým doplnili velké okenní otvory ve stěnách. Pro regulaci prostupu světla jsou pak všechny okna opatřena vertikálními žaluziemi. Automatické stínění střešních oken navíc obsahuje fotovoltaické články, díky čemuž mohou tyto žaluzie fungovat čistě na solární pohon. Osvětlení, které je pro správný rozvoj dění zásadní, zda zkrátka byla věnována nejvyšší pozornost, což náležitě ocenila také porota České ceny za architekturu 2019, která projekt vyznamenala cenou společnosti VELUX za práci s denním světlem.
Mimo slunečního záření využívá obnovitelnou energii sedlejovská školka také pro vytápění, které je postaveno na principu tepelného čerpadla země-voda. Pod celou soukromou zahradou se tak nachází kolektor sbírající energii pro vyhřátí objektu prostřednictvím podlahového vytápění. A vzhledem k tomu, že školka dosahuje standardů pasivního domu, není této energie zapotřebí nijak markantní množství. K přírodě šetrná je stavba také v otázce hospodaření s vodou, neboť na pozemku je umístěna retenční nádrž pro zachytávání dešťové vody, používané pro závlahu zahrady.
Snad je to dostatečný výčet důvodů, proč na školku v této malé českomoravské obci nahlížet trochu jinak, než ostatní podobné instituce. A snad je to také dostatečné množství principů, jimiž by je Sedlejov mohl inspirovat.
- Ateliér: ARCHOO s.r.o.
- Autoři: Jiří Ondráček, Jaroslav Svoboda
- Země: Česká republika
- Město: Sedlejov
- Datum projektu: 2016
- Realizace: 2018


