
Tradičně zpracovaný rodinný dvojdům navrhli slovenští architekti pro zdravotně a mentálně znevýhodněné
Bratislavský ateliér A33 navrhl domy, které podporují soběstačný život osob s různými formami zdravotního a mentálního znevýhodnění. Jeden takový už nyní stojí v obci na západě Slovenska, domov v něm najde na 12 lidí.
Adéla Vaculíková , 25. 1. 2023
V Malých Karpatech na Slovensku stojí nový rodinný dvojdům, který se svým tvaroslovím a měřítkem přizpůsobuje zástavbě malé obce Častá. Na první pohled nenápadná stavba, která vznikla podle návrhu bratislavského ateliéru A33, je svou podstatou velmi speciální. Bydlení v ní je totiž určené pro osoby se zdravotním nebo mentálním znevýhodněním.
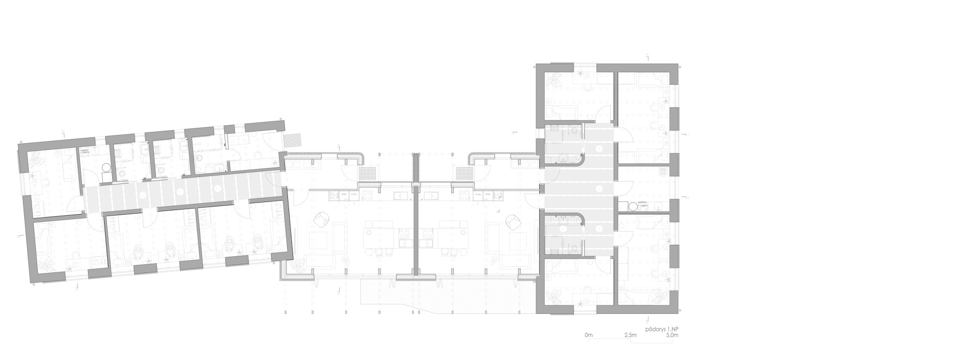
Tradice a obyčejnost v realizaci nabývají mnohovrstevnatého významu. Vedle nenásilné formy, která v kontextu vesnice funguje dobře, totiž umožňuje jeho obyvatelům s různými formami postižení vést běžný život. „Objekt obsahuje typologicky identické místnosti a jejich návaznosti jako standardní rodinný dům: zádveří, obývací pokoj, kuchyň, jídelna, obytné pokoje a sociální zázemí s technickou místností,“ říká architekt Roman Rosina o dispozičním řešení domu.
Více k tématu
Dvojdům v Časté provozuje Domov sociálnych služieb a zariadenie podporovaného bývania MEREMA, jehož zřizovatelem je Bratislavský samosprávný kraj. Architekti z ateliéru A33 se k zakázce dostali skrze architektonickou soutěž, jejímž zadáním bylo vytvořit dohromady tři různé projekty zaměřené na „deinstitucionalizaci 36 klientů vysoké, střední a nízké míry podpory, se zdravotním postižením, s mentálním postižením a vícenásobným postižením“. Rodinný dvojdům Častá je z trojice projektů zatím prvním dokončeným.

Pojem deinstitucionalizace sociálních zařízení označuje snahu na zavedení změn v sociální péči tím, že se klientům, u kterých je to možné, snaží umožnit co nejvíce nezávislý život. Dvojdům Častá navazuje na běžnou typologii rodinných domů jak svým vnitřním uspořádání, tak třeba úpravou zahrady. Na té je prostor pro zahrádkaření i pěstitelství, sport a další volnočasové aktivity.
Stavba od ateliéru A33 funguje jako dvě samostatné bytové jednotky. Je složená ze dvou hmot s archetypálním tvaroslovím, které vzájemně propojuje nízké křídlo s pultovou střechou. V každé jednotce bydlí šest osob, které obývají své soukromé pokoje buď sami nebo ve dvojici. Ke společnému užívání je pak navržen velký obývací pokoj, kuchyně a jídelna. Hygienické zázemí mají společné vždy dva soukromé pokoje.

Do řešení dvojdomu se propsaly i aspekty udržitelného navrhování, které ateliér A33 ve své architektonické činnosti rozvíjí. Hmoty se sedlovou střechou jsou postaveny z termocihel a omítnuty organickou fasádní omítkou, spojovací trakt je pak řešen jako dřevostavba z CLT panelů. Interiér i exteriér zútulňují především prvky ze dřeva. Za pozornost stojí například řešení pasivního stínění stavby prostřednictvím okenic z CLT panelů nebo volně stojících pergol, které postupně poroste vinná réva.
- Autoři: Roman Rosina, Liana Rosinová
- Ateliér: A33
- Spolupráce: Lukáš Rypák, Petra Kmecová
- Země: Slovensko
- Město: Častá
- Projekt: 2018
- Realizace: 2022
- Náklady: 710 000 €
- Zastavěná plocha: 361 m²
- Plocha pozemku: 1244 m²