Neobvyklé řešení dvougeneračního bydlení. Dřevěný dům s vejminkem v Beskydech si rodina postavila svépomocí
Udržitelné bydlení čtyřčlenné rodiny s oddělenou částí pro vejminek prarodičů zajišťuje dostatek soukromí oběma domácnostem a zároveň nádherné výhledy do krajiny. Dům byl navíc snadno zrealizovatelný a zajišťuje nízké náklady na provoz.
EARCH.CZ , 2. 12. 2022
Mírně svažitá parcela s malebnými výhledy na okolní pastviny a lesy se nachází v obci Rybí spadající do přírodního parku Podbeskydí. Další velkou výhodu pozemku představuje fakt, že se v jeho okolí nenachází prakticky žádná zástavba – majitelé si tak díky tomu mohou užívat značné soukromí, architekti zase měli při promýšlení tvaru domu o něco volnější ruce, neboť jej nemuseli přizpůsobovat sousedním stavbám.
Architekti Václav Kocián a Zdeněk Liška z ateliéru KLAR architekti se rozhodli pracovat s dvojicí do sebe vetknutých hmot se sedlovými střechami typickými obecně pro českou venkovskou krajinu. Základní tvar domu se tak jeví jako tradiční jednopodlažní beskydská zástavba.
Více k tématu
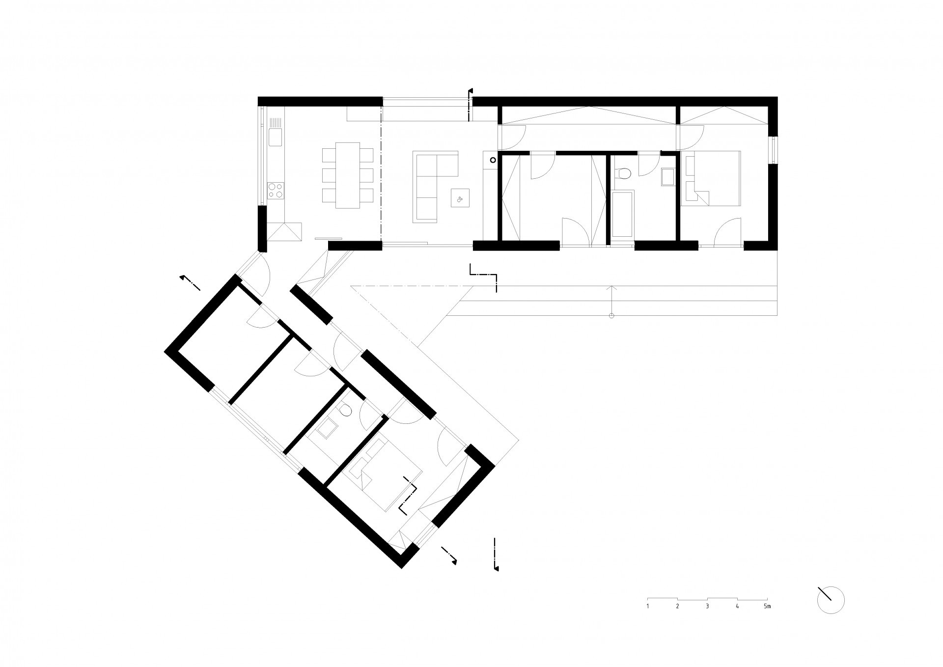
Samostatná křídla domu přirozeně oddělují provoz vejminku pro prarodiče od části domu pro rodinu s dětmi. Další výhodou těchto dvou propojených hmot je vymezení dvora, který je navíc krytý ze severu. Dvůr lemují ochozy, které je možné díky přesahům střech celoročně využívat a poslouchat přitom zurčení nedalekého potoka. Stínění je v letních měsících zajištěno vzrostlými stromy. V zimě proniknou nízké sluneční paprsky větvemi stromů až do interiéru.

Dispozičně se obě funkční křídla protínají v zádveří, odkud je možné sledovat dění v celém domě a zároveň terasu se zahradou. Na zádveří navazuje na jednu stranu hlavní obytný prostor rodiny, na stranu druhou chodba vejminku. Srdcem rodinného domu je převýšený obytný prostor s kuchyní a jídelnou. Jako v celém domě, i zde byl při návrhu kladen důraz na výhledy do krajiny a průhledy skrze dům. Velkorysé sedací okno v obývacím pokoji nabízí uklidňující malebné obrazy okolní přírody. Okno v kuchyni naopak umožňuje sledovat vstup do domu. Z obývacího pokoje se chodbou dostaneme do noční zóny domu, kde se nachází pokoj, ložnice a koupelna. Vejminek je řešený poněkud skromněji, jelikož se předpokládá, že prarodiče budou sdílet obývák s kuchyní s rodinou. Z východně orientované chodby vejminku je tak možný přístup pouze do ložnice, koupelny a technické místnosti. Všechny obytné místnosti v domě mají přímý vstup na krytou terasu.

Vejminek je položen na základové pasy, zatímco obytná část pro rodinu vybíhá nad terén na subtilních ocelových stojkách. Díky tomuto neobvyklému řešení působí stavba lehce a je také ohleduplnější k půdě. Dřevostavba má sloupkovou konstrukci s dutinami vyplněnými minerální vatou zaklopenou OSB deskami. Pohledové dřevo se do interiéru propsalo obklady z biodesek Novatop, aplikovanými na stropy otevřených prostorů, ale i nábytek, na kterém přiznaná hrana třívrstvé desky dotváří zajímavé detaily celého prostoru. Stejné biodesky byly použity také na obklad venkovních podhledů ochozu, což se ukázalo jako velmi efektivní a praktické řešení oproti tradičním palubkám. Podlahy v pokojích jsou dubové a v koupelnách je použita keramická dlažba. Návrh pracuje s podlahovým topením napojeným na elektrokotel. Obytný prostor je navíc doplněn o krbová kamna na dřevo, která dotváří atmosféru vesnického stavení.

Architektům se podařilo navrhnout kvalitní dům podle netradičního zadání, který respektuje soužití dvou generací. Výsledkem je moderní bydlení, které ale zapadá do české vesnické zástavby a neupoutává na sebe přílišnou pozornost.
- Ateliér: KLAR
- Autoři: Václav Kocián, Zdeněk Liška
- Země: Česká republika
- Město: Rybí
- Projekt: 2019
- Realizace: 2021
- Užitná plocha: 124 m2
- Zastavěná plocha: 145 m2
- Plocha pozemku: 2161 m2
- Náklady: 5 000 000 Kč
- Novatop: biodesky pro exterier a interier