1/26
Kostel bl. Restituty Brno - Lesná, ptačí pohled
Foto: Atelier Štěpán
2/26
Kostel bl. Restituty Brno - Lesná, pohled ze severu
Foto: Atelier Štěpán
3/26
Kostel bl. Restituty Brno - Lesná
Foto: Atelier Štěpán
4/26
Kostel bl. Restituty Brno - Lesná
Foto: Atelier Štěpán
5/26
Kostel bl. Restituty Brno - Lesná
Foto: Atelier Štěpán
6/26
Kostel bl. Restituty Brno - Lesná, interiér
Foto: Atelier Štěpán
7/26
Kostel bl. Restituty Brno - Lesná, výhled z věže
Foto: Atelier Štěpán
8/26
Kostel bl. Restituty Brno - Lesná, pohled od zastávky
Foto: Atelier Štěpán
9/26
Kostel bl. Restituty Brno - Lesná, vánoční pohled
Foto: Atelier Štěpán
10/26
Kostel bl. Restituty Brno - Lesná, dálkový pohled
Foto: Atelier Štěpán
11/26
Kostel bl. Restituty Brno - Lesná, kopule
Foto: Atelier Štěpán
12/26
Kostel bl. Restituty Brno - Lesná, duha z letadla
Foto: Atelier Štěpán
13/26
Kostel bl. Restituty Brno - Lesná, duhové okno
Foto: Atelier Štěpán
14/26
Kostel bl. Restituty Brno - Lesná, hmotová skladba
Foto: Atelier Štěpán
15/26
Kostel bl. Restituty Brno - Lesná, schéma konstrukce
Foto: Atelier Štěpán
16/26
Kostel bl. Restituty Brno - Lesná, schéma
Foto: Atelier Štěpán
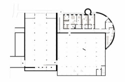
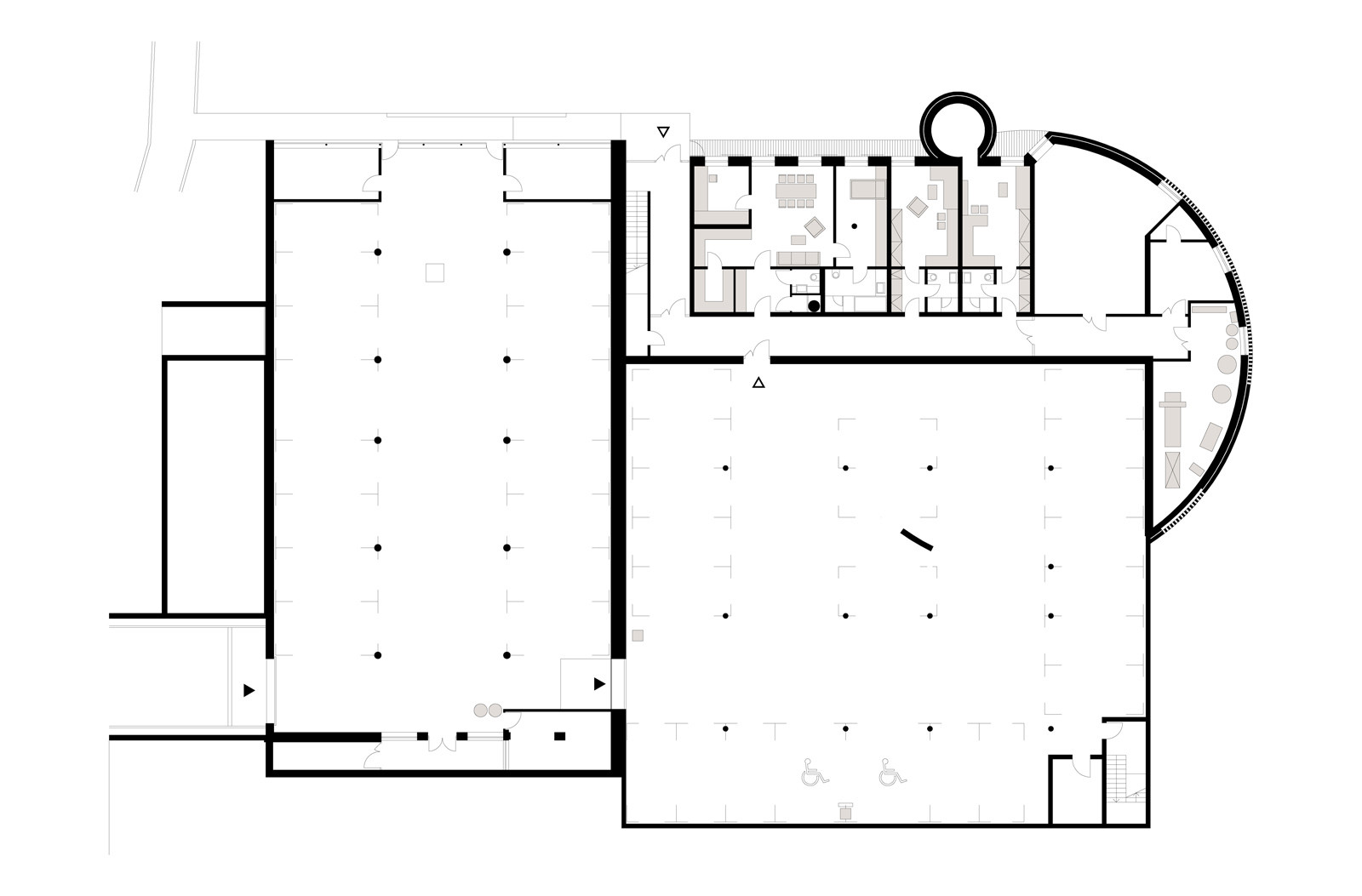
17/26
Kostel bl. Restituty Brno - Lesná, přízemí
Foto: Atelier Štěpán
18/26
Kostel bl. Restituty Brno - Lesná, podélný řez
Foto: Atelier Štěpán
19/26
Kostel bl. Restituty Brno - Lesná, příčný řez
Foto: Atelier Štěpán
20/26
Kostel bl. Restituty Brno - Lesná, suterén
Foto: Atelier Štěpán
21/26
Kostel bl. Restituty Brno - Lesná, místnost pro matky s dětmi
Foto: Atelier Štěpán
22/26
Kostel bl. Restituty Brno - Lesná, schéma světla
Foto: Atelier Štěpán
23/26
Kostel bl. Restituty Brno - Lesná, větrání
Foto: Atelier Štěpán
24/26
Kostel bl. Restituty Brno - Lesná, akustika
Foto: Atelier Štěpán
25/26
Kostel bl. Restituty Brno - Lesná, skica
Foto: Atelier Štěpán
26/26