Architektura
/
interiér
V modrém lesku
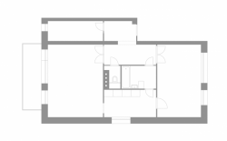
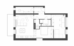
Totální rekonstrukce košířského bytu v přinesla do interiéru atmosféru doslova na vlnách modré a námořnických doplňků. Architektky přesunuly ložnici do původní kuchyně, která se nově začlenila do obytné zóny, podařilo se jim tak vykouzlit o místnost navíc. Když máte štěstí a potkáte skvělé klienty, výsledek zkrátka nemůže být špatný.
Mooza architecture , 1. 12. 2016
Více k tématu
- Autoři: Petra Bíšková, Klára Císařovská
- Ateliér: Mooza architecture
- Země: Česká republika
- Realizace: 2016
- Město: Praha 5 - Košíře
- PSČ: 150 00
- Datum projektu: 2016
- Realizace: 2016
- Užitná plocha: 81.00m2
- Foto ©: Iveta Kopicová