Architektura / rodinné domy

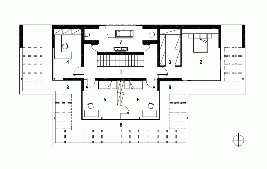
Varnsdorfská vila pod Hrádkem

Rodinné vile, kterou naším prostřednictvím můžete navštívit, bude příští rok už 10 let. Nadčasový architektonický výraz, kvalitní materiály a precizně provedené detaily však této stavbě prakticky nedovolují stárnout.

Radomír Grafek , 1. 10. 2015

  • Ateliér: RG architects studio
  • Autoři: Radomír Grafek, Zdeněk Navrátil
  • Země: Česká republika
  • Město: Varnsdorf
  • Ulice, číslo: Kladenská 3324
  • PSČ: 407 47
  • Datum projektu: 2004
  • Realizace: 2006
  • Užitná plocha: 303.00m2
  • Zastavěná plocha: 257.00m2
  • autor: Radomír Grafek *
  • publikováno: * 1. 10. 2015
  • zdroj: * Autorská zpráva

Klíčová slova:

RG architects studio Varnsdorf vila

Nabídky práce

Mohlo by vás zajímat

Generální partner
Hlavní partneři