
Vesnický dům pro dvě generace
Architekt Pavel Šťastný ze studia SP-AM přetvořil vesnický dům tak, aby se v něm pohodlně bydlelo čtyřčlenné rodině a prarodičům. Původní stavba se rozšířila o novou přístavbu opláštěnou dřevěnými latěmi. Dřevo architekti následně uplatnili také v interiéru, doplnili ho o černé detaily – například kliky – které ladí s antracitovou střešní krytinou.
EARCH.CZ , 10. 2. 2025 / Advertorial
Architekti se rozhodli vesnický dům v Dehtárech na Liberecku zjednodušit. Stavbu zbavili dodatečných úprav a přidali vlastní novou část – střídmou přístavbu s fasádou ze smrkových latí. „Původní objekt jsme očistili od přístaveb a na očištěnou hmotu navázali přístavbou. Rozhodli jsme se pro lineární prodloužení figury původní hmoty a zachování obdélníkového půdorysu,“ vysvětluje architekt Pavel Šťastný svůj koncept.
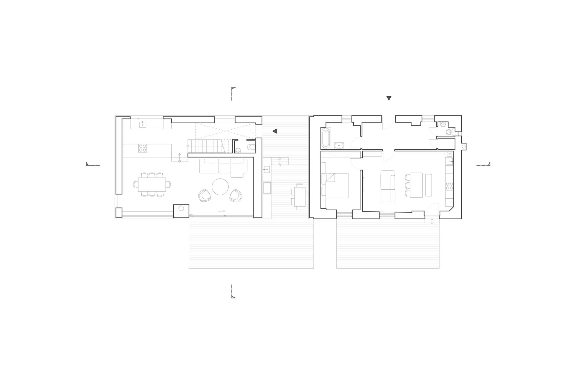
Dům nyní kombinuje starou část, v jejímž přízemí bydlí prarodiče, a novou přístavbu, která společně s podkrovím původního domu poskytuje dostatek prostoru rodině. Z uživatelského hlediska tak architekti v domě vybudovali dvě samostatné bytové jednotky.

Omítka + dřevo
Svou samostatnost má nová a stará část domu ještě z formálního hlediska. Odděluje je od sebe průřez, který současně tvoří venkovní krytý prostor, v němž se dá třeba posedět anebo projít mezi přední a zadní částí zahrady.
„Materiálový a architektonický výraz staré a nové části je jednoznačně definován odlišným provedením detailů a materiálů, jak v interiéru, tak v exteriéru. Nová část je pojata čistě minimalisticky, stará část je kombinací nového a repasovaných fragmentů původní stavby,“ doplňují k odlišnostem dvou částí ještě architekti.
Z očistěného původního domu zůstala jeho hlavní zděná konstrukce včetně dřevěného krovu, který prošel částečným zesílením. Zvenčí zdivo dostalo novou světlou omítku a střecha krytinu z falcovaného plechu v barvě antracitu – ta přechází i na novou přístavbu.
Propojení vnitřku a vnějšku
Délku přístavby na západní straně limitovala vzrostlá borovice, která se měla zachovat. Dnes je do její koruny výhled z podkrovních ložnic. Hlavní obytná část se nachází v přízemí domu. Do jednoho prostoru je na něm situován obývací pokoj, jídelna a také kuchyně. Ta je však oproti zbytku vyvýšená, přístavba totiž reaguje na terénní zlom. Z kuchyně se tak do zbytku obývacího pokoje schází po několika málo schodech.
Majitelé si do interiéru přáli přivést hodně světla. Obytné místnosti v přízemí se proto otevírají do soukromé části zahrady velkými dřevěnými okny. Dřevo se pro rekonstrukci domu a přístavbu stalo obecně důležitým materiálem, kromě oken a fasády se promítá také do vybavení. Je z něj i hlavní schodiště propojující přízemí s podkrovím, které má odhalený – opět dřevěný – krov.

Tmavá barva ze střechy se zase propsala do interiérových detailů. V koupelnách i kuchyni je drobné příslušenství v černé barvě. A tmavé jsou také kliky na dveřích i oknech. Všechny pocházejí od českého výrobce M&T a navíc z jedné designové řady, dokonale se tak k sobě hodí. „Klika Lusy od M&T působí subtilně, elegantně. Do projektů nám toto kování vyhovuje, jelikož u něj vnímáme vyvážený poměr cena/design. Navíc se nabízí i ve variantě pro okna, a tak můžeme sladit celkový design kování. V tomto případě ponechal výběr kování klient na nás. Líbí se nám, jak černá barva na klice vytvoří na dveřích kontrast. M&T kování používáme prakticky v každém projektu. Líbí se nám portfolio značky a lokální česká výroba,“ vysvětlují volbu kování Lusy architekti, vybrali ho v černé povrchové úpravě TiN-K.
Více k tématu
Projekt vesnického domu v Dehtárech představuje jednu z možných cest, jak efektivně řešit bydlení pro dvě generace. Architekti ze studia SP-AM vytvořili prostor, který zajišťuje pohodlné a funkční zázemí pro čtyřčlennou rodinu i prarodiče. Přístavba přirozeně rozšiřuje původní stavbu a poskytuje dostatek prostoru pro každodenní život, zatímco promyšlené dispoziční řešení a materiálová kontinuita přispívají k harmonickému propojení obou částí domu.
- Autoři: Pavel Šťastný
- Ateliér: SP-AM
- Země: Česká republika
- Město: Dehtáry
- Fotograf: Pavla Frauenterková
- Dveřní kliky M&T: Lusy, TiN-K