
Vícegenerační chalupa pro přírodovědce a vnoučata. Líbí se tam i pokojovým rostlinám.
Novostavba zastřešila historický sklep a „zakusuje“ se do svahu. Byt má mnoho výškových úrovní, společných prostor i soukromých „zašíváren“. Stojí na okraji Šumavy.
Viktorie Majoberová , 7. 1. 2025
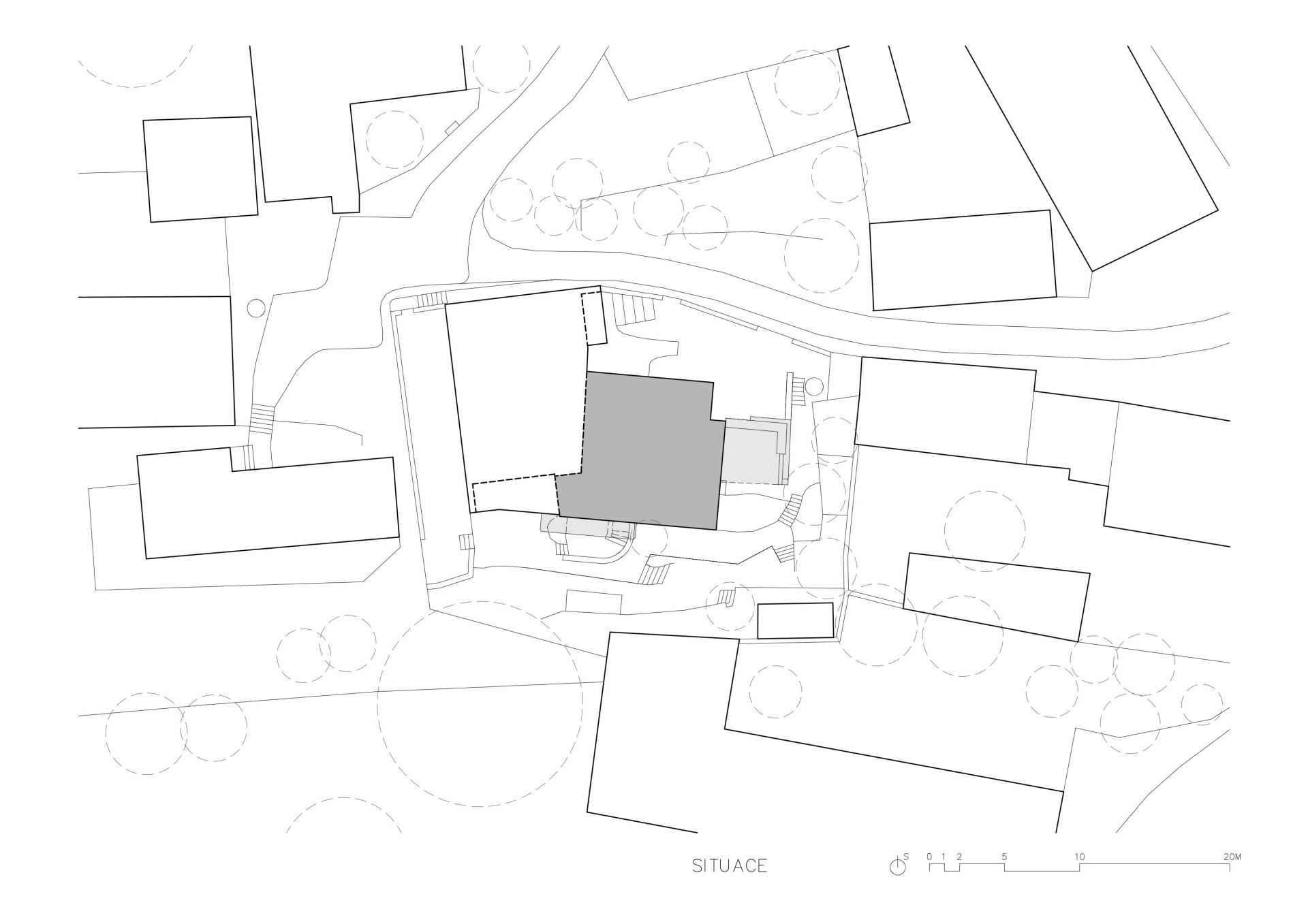
Manželský pár přírodovědců tráví mnoho času ve své chalupě. Ta stojí ve vesnici na dohled od prvních šumavských kopců, na úbočí kostelního návrší. Je to již starší dvojice, kterou s oblibou navštěvují jejich dcery s rodinami. Když se ale sjely dohromady, začalo být v chalupě těsno, a tak se rozhodly rozšířit chalupu o další bytovou jednotku.
Zadáním pro architekty ze studia Debyt byl velkorysý prostor, ve kterém budou moct rodiny společně trávit čas. Zároveň si majitelé přáli vytvořit útulná zákoutí a „zašívárny“ pro dostatek soukromí.

Architekti se rozhodli přístavbu postavit nad prastarý klenutý sklep. Nad ním vzniklo útočiště pro mladší generaci, ale nejen to. Přirodovědci vlastní nesčetně pokojových rostlin, kterým se v nové přístavbě také nesmírně daří.
Nakouknout do zašívárny
Byt je jedinečný především proto, že je uspořádán „terasovitě“. Různé úrovně bytu kopírují různé úrovně zahrady ve svahu, do kterého se novostavba „zakusuje“. Díky této dispozici přijímá interiér maximum jižního slunce a v jednotlivých úrovních se plynule prolíná s venkovním prostorem.
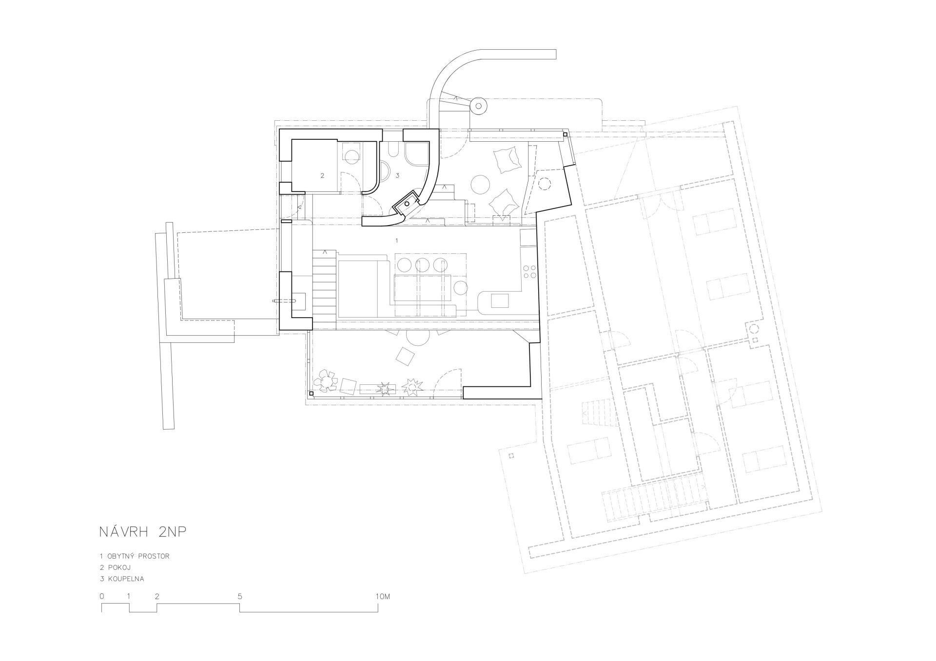
Do přístavby se vstupuje přes původní chalupu. Vejdeme dovnitř a ze zádveří vedou dveře doleva do zimní zahrady. Hlavní pobytové patro se nachází nad zimní zahradou a sklepem. Dostanete se tam po schodech, které ústí do koupelny a malého dětského pokoje, ze kterého dál vede výsuvný žebřík do patýrka se sníženou výškou. To slouží jako dětská hernička i místo pro spaní většího počtu dětí. Hned u schodiště je také okno se sedacím výklenkem. Tímto oknem se také dostanete na venkovní terasu.

Pokračujeme dál a ocitneme se v hlavním otevřeném prostoru, kde se nachází kuchyň s jídelnou, dostatečně osvětlená sdruženým střešním oknem. Zajímavým na míru navrženým prvkem v této úrovni je lavice u jídelního stolu, která plynule přechází ve spací letiště částečně levitující nad zimní zahradou. Na hlavní obytnou část navazuje další úroveň, která je koncipována jako klidová a odpočinková. Vedou tam pobytové schůdky s malou mezipodestou, kterou lemuje oblá stěna se zabudovanou krbovou vložkou. Jednotlivé úrovně vrcholí výstupem na horní venkovní terasu.

Architektům se podařilo vytvořit příjemné a nevšední zázemí pro život vícegenerační rodiny. Novostavba přirozeně sedí ve svahu v zahradě a skoro se tváří, jakoby tam byla odjakživa. Vnitřní uspořádání bytu je překvapivé a vnoučata se tam nejspíš nikdy nenudí.
Více k tématu
O konstrukci a materiálech
Přístavba je vyzděna z porobetonových tvárnic se zvýšenou tepelně-izolační schopností. Krov střechy je z dřevěných trámů s masivními průvlaky. Ty jsou záměrně ponechány odhalené. Krytinou střechy je masivní keramická taška tzv. portugalka, stejná jako na staré části. Detaily přechodu zastřešení staré a nové části řeší plechový hřeben střechy, který slouží jako sjednocující prvek.
V nejnižší úrovni přístavby je ponecháno viditelné kamenné zdivo sklepa, jinak jsou stěny klasicky štukované a bíle vymalované. Všechny otvory jsou osazeny okny z dřevěných europrofilů. V zimní zahradě je dlažba, v horních úrovních dubové parkety. Vestavěné prvky jsou zpravidla ze smrkových biodesek. Poklopy v podlaze na vyšších úrovních skrývají úložný prostor pro sezónní věci.
- Autoři: Tomáš Petrášek, Tereza Květoňová
- Ateliér: DEBYT
- Země: Česká republika
- Užitná plocha: 115 m²
- Obestavěný prostor: 419 m³ (bez sklepa)
- Fotograf: Václav Novák