
Komunitní rodinné soužití. Dům prarodičů jako začátek nové kapitoly příběhu vnoučat
Domy často píší pozoruhodné spletité příběhy svých obyvatel. Někdy jde o příběhy běžné, jindy zase neobvyklé a poetické. V jedné malé švýcarské vesnici starý dům prarodičů odstartoval novou kapitolu rodinného příběhu třech vnoučat, který architekti napsali jako přístavbu obrůstající původní stavbu.
Jan Bureš , 12. 5. 2023
Návrh jako participace
V malé vesnici Villy nedaleko Ženevského jezera se nacházel na první pohled nenápadný rodinný dům. Ten pro sebe a svou rodinu postavil místní rodák, který se později stal dědečkem třech vnoučat. Čas ubíhal, až vnoučata po svém dědečkovi dům zdědila. V obvyklém případě by dům připadl jednomu z nich – bydlet v něm však chtěla všechna tři vnoučata i se svými rodinami, jenže na to byl příliš malý. Zbourání domu vzhledem k jeho sentimentální hodnotě nepřipadalo v úvahu a tak bylo potřeba najít vhodné kreativní řešení.

S takovým návrhem rekonstrukce původního domu a přístavby přišla dvojice švýcarských architektonických ateliérů Madeleine architects a Studio François Nantermod. V rámci participativního procesu návrhu se uskutečnilo několik setkání, ve kterých se na základě diskuzí a sdílení svých požadavků a nápadů rozvíjel nejen vztah mezi architekty a klienty, ale i mezi vnoučaty navzájem. V rámci tohoto procesu si zároveň vybudovali silné pouto a společně s architekty spolupracovali na společném kooperativním záměru bydlení.
Více k tématu
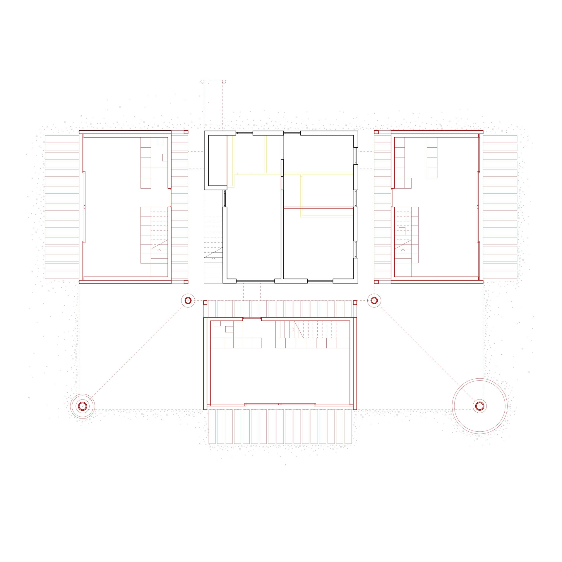
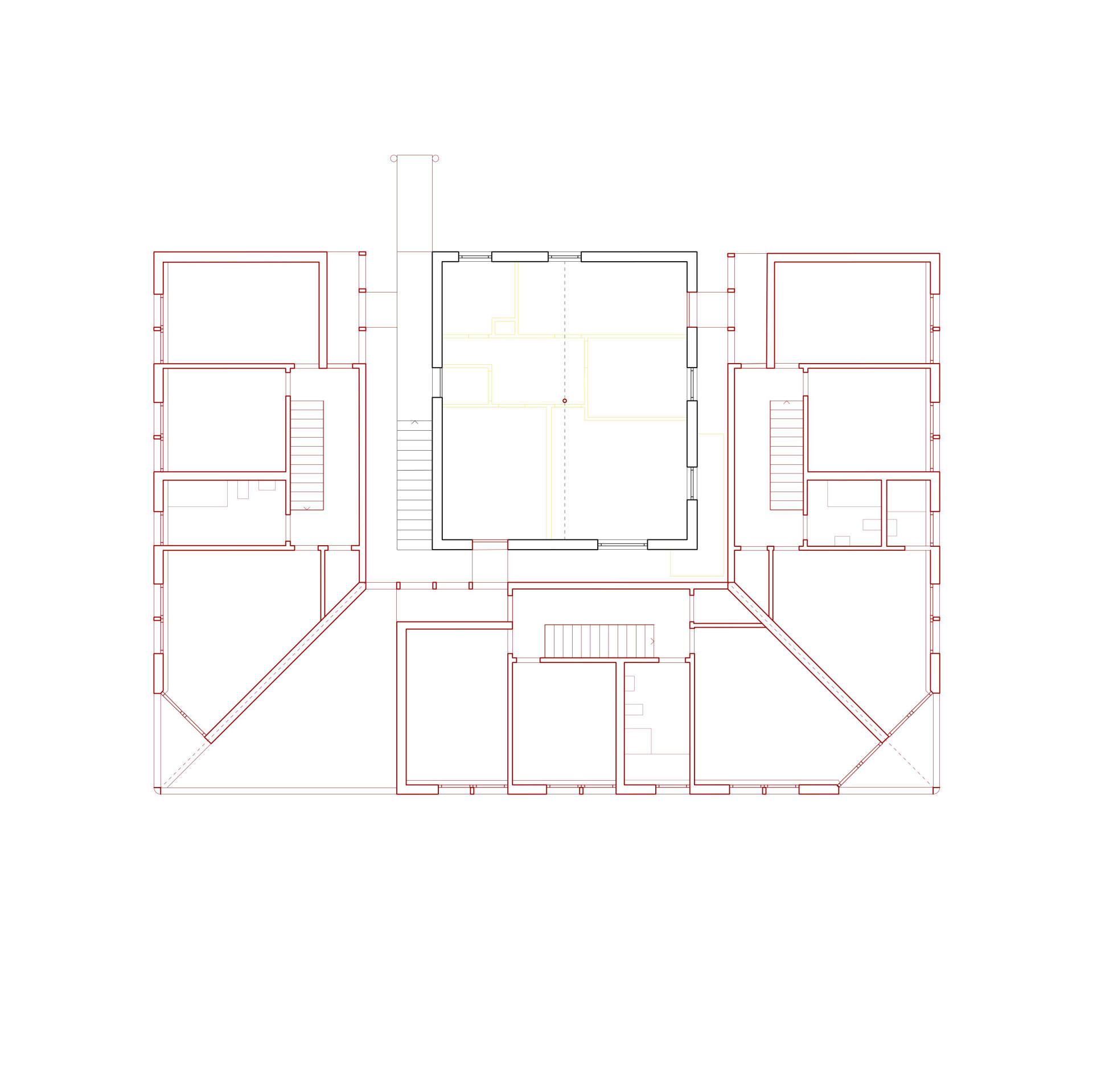
Původní dům jako těžiště projektu
Původní dům se stal srdcem projektu, které ze třech stran obrostla nová přístavba obsahující v každém křídle samostatnou obytnou jednotku. Spodní patro původního domu obsahuje technické zázemí nezbytné pro fungování celého nového objektu, který jej obklopuje. Horní patro domu se pak díky transformaci, kdy byla celá dispozice uvnitř obvodových stěn „vydlabána“, stalo centrálním flexibilním prostorem bez jasné předem určené funkce. Tu mu dá až život jeho obyvatel.

Tento centrální prostor je od nové přístavby oddělen mezerou. Jejich propojení je vyřešeno pomocí lávek, které do centrálního prostoru ústí ze všech třech ramen jednotlivých oddělených jednotek. Prostor se tak stává místem setkávání všech třech rodin, a tedy skutečným těžištěm komunitního rodinného soužití. Kromě „vydlabání“ původních vnitřních stěn, nové střechy a menších stavebních zásahu zůstal původní dům maximálně zachován. Všechny zásahy byly provedeny velice citlivě, zároveň ale tak, aby byly patrné a čitelné.
Tradiční, přesto soudobý charakter
Nová přístavba v půdoryse vytváří kolem původního domu tvar pravidelné podkovy. Vstupní podlaží je rozděleno na tři hmotové celky, které uvolňují konce podkovy pro krytý vstup do objektů, který v rozích podpírají výrazné kulaté betonové sloupy. Vstupy do jednotlivých obytných celků se nacházejí z vnitřní strany, v mezeře mezi původním domem a novou přístavbou. Ve vstupních podlažích všech třech celků se nachází sociální zařízení, schody do prvního podlaží a obytný prostor s kuchyní, který se skrze prosklenou stěnu s posuvnými okny otevírá svému okolí. První patro obsahuje ložnici, pokoje a koupelnu.

Nová hmota přístavby zaujme také svým materiálovým řešením, kvalitními detaily a formálním tvaroslovím. Beton a dřevo dávají domu charakteristický vzhled. Fasáda si bere inspiraci z tvarosloví místní tradiční architektury, nepůsobí však jako pokus o jeho napodobení. Naopak jej velmi povedeně využívá tak, že dům zapadá a navazuje na kontext svého okolí a zároveň vyjadřuje současný charakter. Architektům se v úzké spolupráci s klienty podařilo nejen zrealizovat kvalitní architekturu, ale také najít nové inovativní řešení komunitního bydlení, které otevírá novou kapitolu rodinného příběhu, který začal jedním domem.
- Ateliér: Madeleine architectes, Studio François Nantermod
- Země: Švýcarsko
- Město: Villy
- Realizace: 2022