Vinařství pod hradem. V CHKO Pálava proměnil Ateliér ORA bývalý sklad na wine bar s romantickým výhledem
Pod středověkým hradem Děvičky v CHKO Pálava vznikl přestavbou bývalého skladu nový wine bar Reisten. Znojemské studio ORA se při jeho návrhu vydalo cestou přiznaných přírodních materiálů a autorských designových kousků s motivy vinařských atributů.
Adéla Vaculíková , 29. 11. 2022
Nejnovější realizaci známého studia ORA najdeme na samém okraji jihomoravského Pavlova, malé obce severně od Mikulova, která se na mapu české soudobé architektury zapsala před pár lety díky budově Archeoparku Pavlov – projektu Radka Květa a Pavla Pijáčka, který získal Hlavní cenu České ceny za architekturu 2017.

Původní návrh vinařství Reisten vypracovala už v roce 2010 brněnská architektonická kancelář Burian-Křivinka, realizace se ovšem dočkal jen fragmentárně. Nový majitel vinařství poté oslovil architekty ze studia ORA, aby navrhli přestavbu jedné stavby vinařského areálu na wine bar.

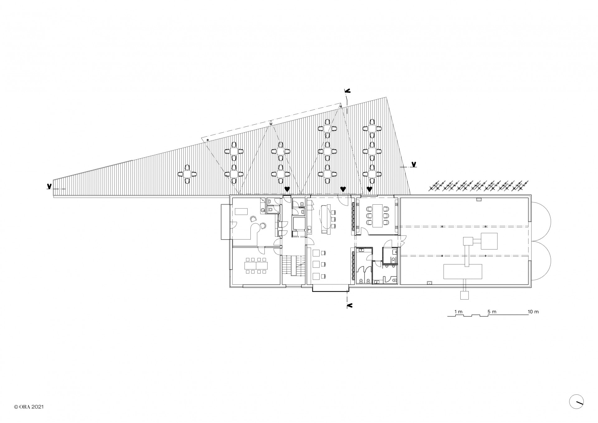
Objekt, který původně sloužil jako sklad a zázemí vinařství, se po zásazích studia ORA otevírá návštěvníkům a nabízí okouzlující výhledy na rozlehlý sousední vinohrad, nádrž Nové Mlýny i středověký hrad Děvičky. Zvenčí jednoduchá stavba se sedlovou střechou nabízí překvapivě řešený interiér. Prostory wine baru zároveň architekti propojili s velkou dřevěnou terasou pomocí velkých francouzských oken.
Více k tématu
Interiér se nese ve znamení přiznaných materiálů. Všechny povrchy byly očištěny tak, aby vynikl beton dříve skrytý pod různými nátěry. Prostory doplňuje autorsky navržený mobiliář z dubového dřeva a oceli, který hravě pracuje s různými vinařskými atributy. „Hosté se mohou usadit na rozměrné lavici, jež do sebe integruje na míru dělané lampy. Jejich stínidla tvarem volně odkazují na demižon,“ přibližují autoři. Výrazný vizuální efekt přináší také do červena zbarvená podlaha, která působí, jako by se interiérem valily proudy vína.

Wine bar nabízí několik zákoutí k pohodlnému posezení, kromě soukromých salónků je k dispozici centrální bar nebo skleněný arkýř vybízející k pozorování okolí se skleničkou v ruce. Pokud byste si chtěli vychutnat západ slunce přímo nad vinohradem, usaďte se na venkovní terase.

- Ateliér: ORA
- Autoři: Jan Veisser, Jan Hora, Barbora Hora
- Datum projektu: 2020
- Realizace: 2021
- Užitná plocha: 115 m² wine bar, 301 m² terasa
- Město: Pavlov
- Ulice, číslo: Zahradní 288
- Fotograf: BoysPlayNice
- Investor: Reisten, s.r.o.