Architektura / občanské stavby

Studio ORA navrátilo chátrající barokní budově na Znojemsku její zašlý historický charakter

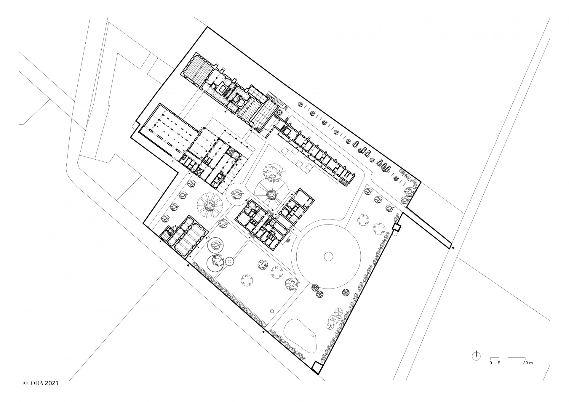
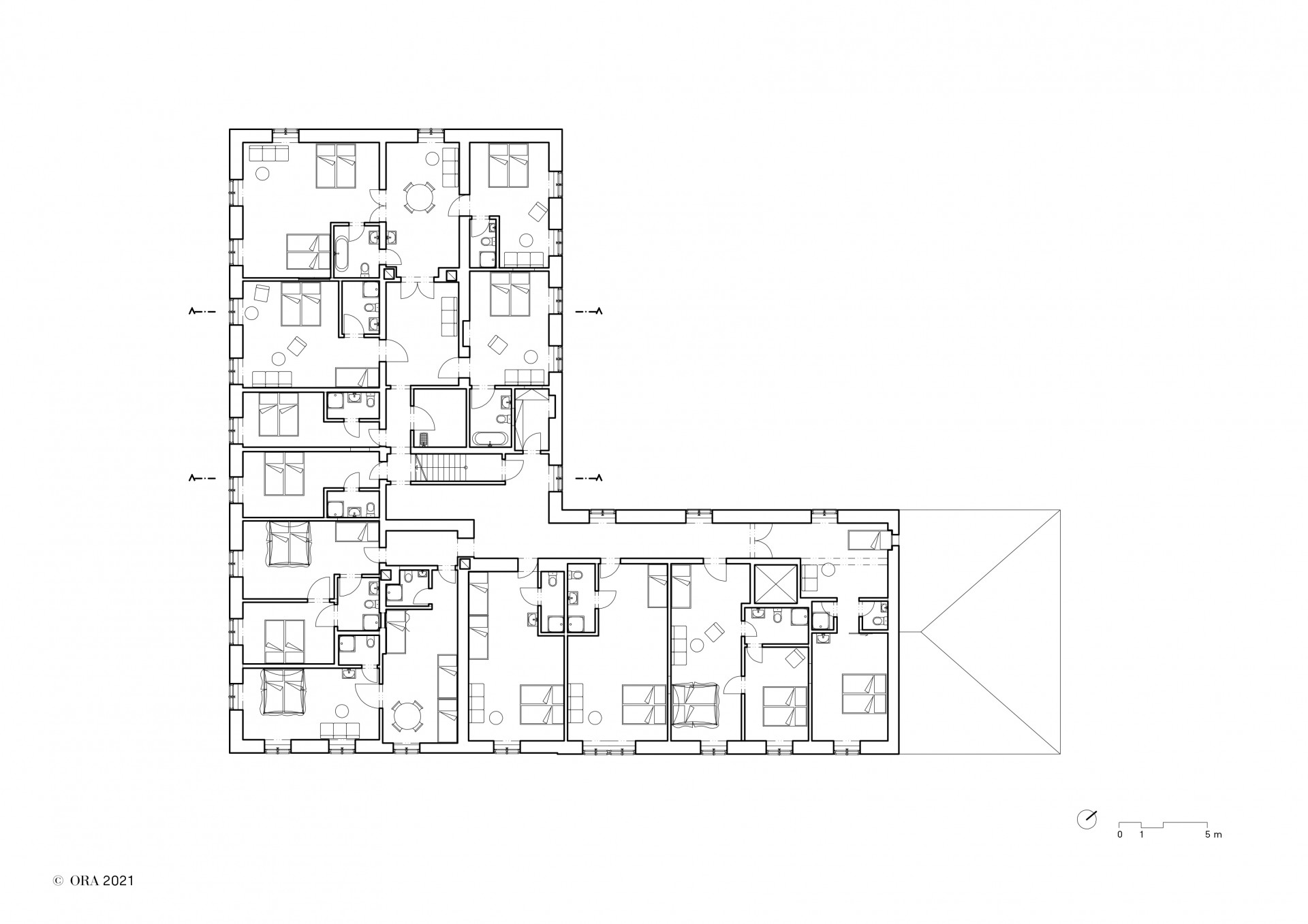
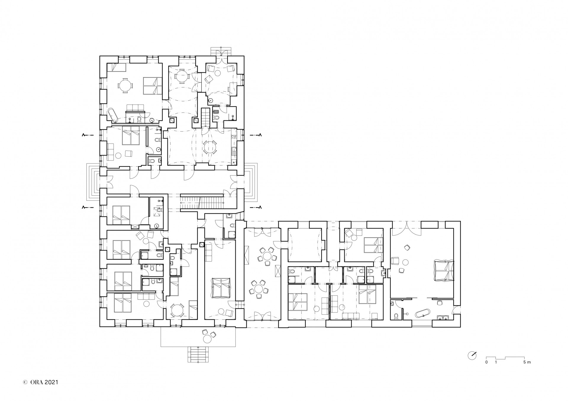
Drobná vesnice Kravsko nedaleko Znojma se může pyšnit svou staronovou perlou. Lokální architektonické studio ORA se totiž chopilo rozsáhlého projektu přestavby chátrající barokní budovy zvané Kocanda (původně zájezdního hostince) na hotel – cílem architektů přitom bylo pomocí citlivých vstupů vrátit tomuto půvabnému objektu jeho historický charakter zastřený pozdějšími úpravami. Přístup architektů ocenili také památkáři, kteří realizaci ocenili jako nejlepší opravenou památku Jihomoravského kraje za rok 2020. Rekonstrukce budovy je však pouze první fází obnovy celého rozsáhlého areálu, neboť zde vedle Kocandy byla v 19. století založena keramická továrna, jejíž objekty v současnosti procházejí konverzí podle návrhu stejných architektů.

ORA , 20. 8. 2021

  • Ateliér: ORA
  • Autoři: Barbora Hora, Jan Hora, Jan Veisser
  • Země: Česká republika
  • Město: Kravsko
  • Ulice, číslo: Kravsko 45
  • PSČ: 671 51
  • Datum projektu: 2018
  • Realizace: 2020
  • Užitná plocha: 956.00m<sup>2</sup>
  • Zastavěná plocha: 704.00m<sup>2</sup>
  • Plocha pozemku: 6 850.00m<sup>2</sup>
  • Krajinné úpravy: &nbsp;Klára Jordánová
  • autor: ORA *
  • publikováno: * 20. 8. 2021
  • zdroj: * Autorská zpráva

Mohlo by vás zajímat

Generální partner
Hlavní partneři