Vlaštovka nad Berounkou. Dřevostavba s dalekými výhledy a střechou jako vlaštovčí ocas
Dům Vlaštovka je dřevostavba nad Berounkou. Nabízí výhledy do dálky a blízkost starých stromů. Je to dům skromný, kompaktní a levný - přišel na 7 milionů korun. Jeho poloha je ale luxusní.
Karolína Vránková , 4. 4. 2025
Když se Berounka blíží k Praze, zařezává se do hlubokého údolí s prudkými svahy, kde je spousta chat. Poloha blízko města i přírody ovšem láká k trvalému bydlení, takže chaty se mění v domy, a to často dosti necitlivě.
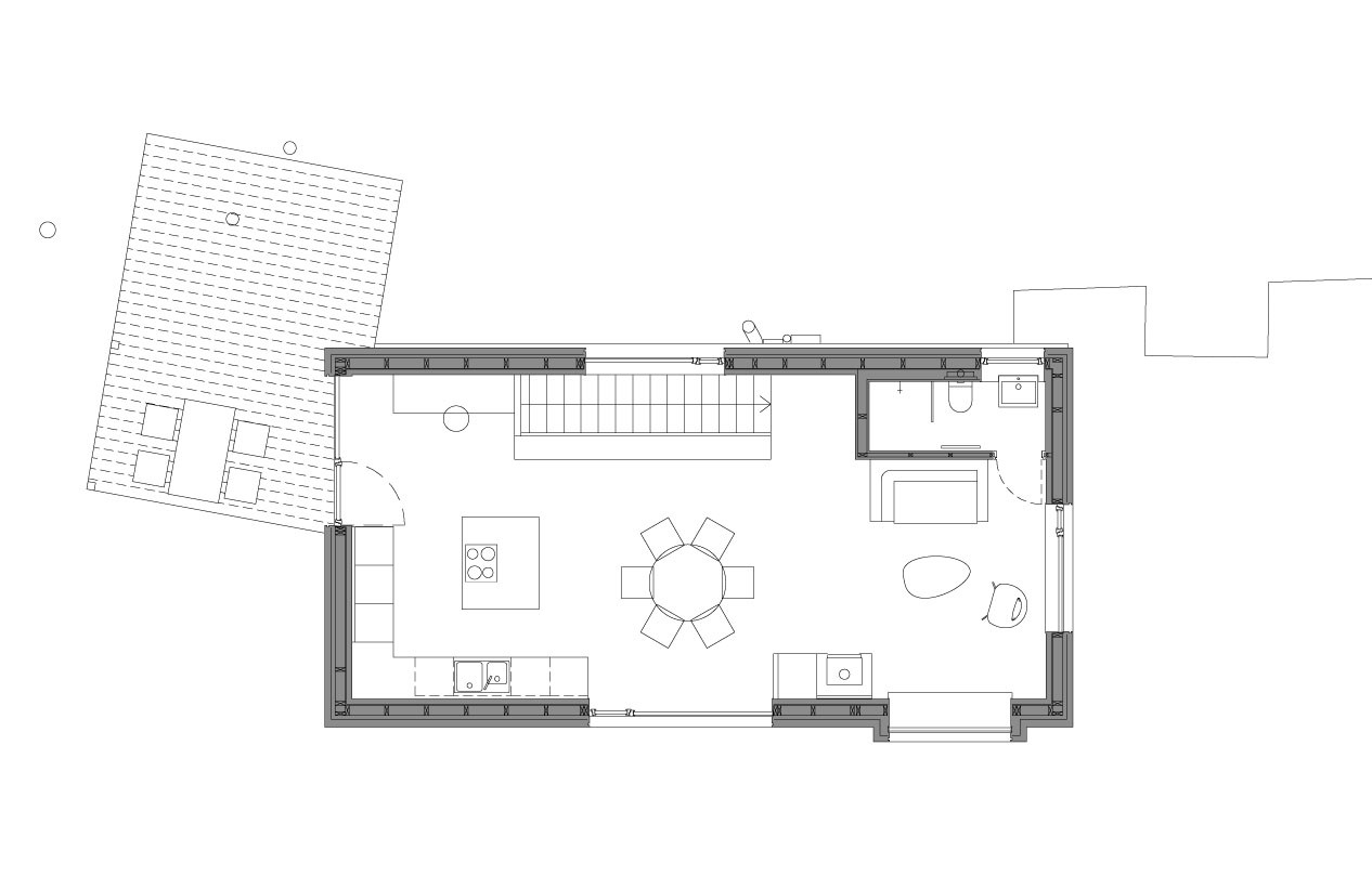
Dům Vlaštovka ateliéru Sodomka Sodomková Architekti se k okolí staví s respektem a jejich dům si zachoval něco chatařského – svým výrazem i tím, že zapadá do okolní přírody. „Je umístěný na jižným svahu v horní části, kde jsou nejlepší výhledy. Je zde také dostatečné soukromí a vzrostlé stromy, které v létě zajišťují příjemné mikroklima. Hlavní obytný prostor domu je umístěn netradičně v horním podlaží,“ vysvětlují Šárka Sodomková a Marek Sodomka, autoři projektu.

I tak lze ale z obývacího pokoje vyjít ven, na krytou terasu schovanou mezi stromy. Uvnitř je kuchyň, jídelna a sedací kout. Atraktivitu prostoru dodává otevření do nepravidelné pultové střechy a především výhledy. „Různé typy velkých oken do všech světových stran zajišťují pestrou škálu zážitků v průběhu roku a za měnícího se počasí. Sedací okno vystrčené z fasády zve k posezení „na hraně“, popisuje autorská zpráva.
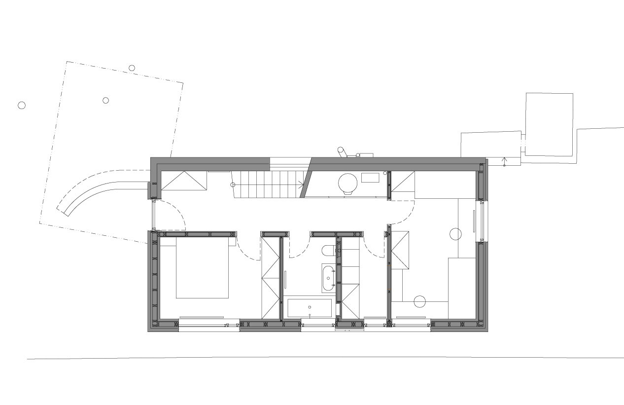
V přízemí, napůl zapuštěném do svahu, je koupelna, komora, a dva pokoje pro rodiče a dvě děti – dětský pokoj lze rozdělit i na dva menší. Úsporná chodba a schodiště jsou opticky zvětšeny nadsvětlíky dveří a prosvětleny velkým severním oknem.

Na místo není možné dojet s těžkou technikou a většina materiálu se dopravovala ručně. Proto byl dům postaven jako lehká dřevostavba ve sloupkovém systému. Stropní a střešní trámy jsou dřevěné pohledové. Fasáda a terasa jsou z českého modřínu, bez povrchové úpravy, s nejmenší ekologickou stopou.
Více k tématu
Šikmá střecha s asfaltovými pásy má dostatečný sklon pro spolehlivé odvedení vody. Zborcená střešní rovina vytváří navíc na hlavní fasádě charakteristickou vlaštovčí siluetu. Dům navíc působí drobněji a ještě o něco víc jako stará chata.
Dům Vlaštovka lze vidět spolu s dalšími dřevostavbami na výstavě v Národní technické knihovně, která probíhá v rámci Salonu dřevostaveb do 16. dubna 2025. Pak se přesouvá do Hradce Králové, Karlových Varů, Brna a dále do Bílovic.
- Ateliér: Sodomka Sodomková Architekti
- Autoři: Marek Sodomka
- Země: Česká republika
- Projekt: 2019
- Realizace: 2021-2023
- Užitná plocha: 108 m²
- Náklady: 7 mil. CZK
- Dodavatelé: Dřevostavby Michal Štěpánek, Stavitel Jan Pavel, Okna Pelikán dřevovýroba
- Fotograf: Petr Polák, Petr Neubert, Marek Sodomka