Architektura / rodinné domy

Zapomenutý starý domek uprostřed Vamberku proměnil architekt Kožnar na víkendové bydlení

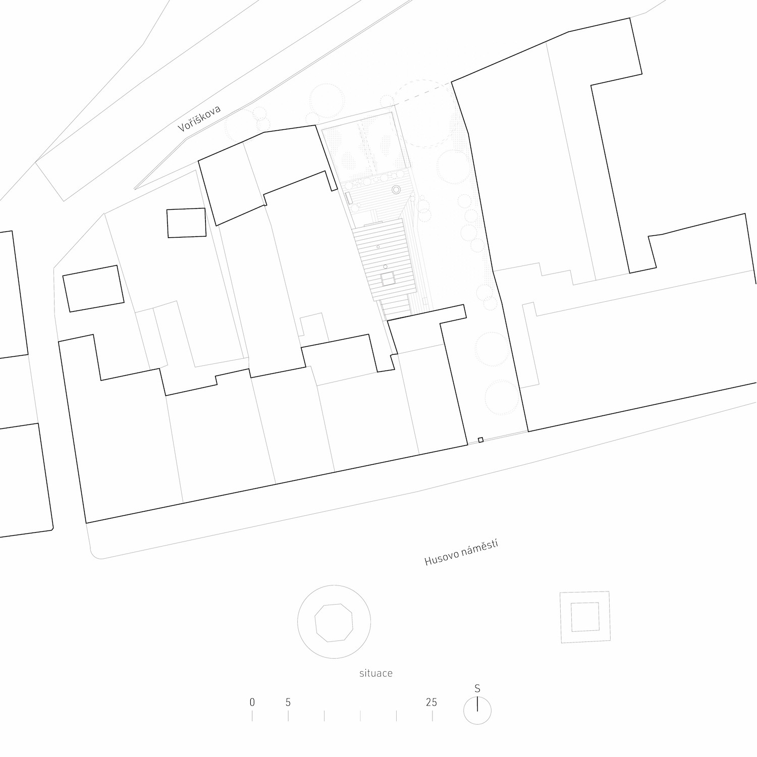
Ukrytá mezi domy městečka Vamberk na východě Čech stála po 120 let malá zapomenutá stavba, která sloužila především jako ryze utilitární sklad. Díky celkové kultivaci tohoto pustého místa ve středu města podle návrhu architekta Martina Kožnara se proměny dočkal nejen samotný domek, ale také dvorek s jedinečným výhledem na ruinu bývalé likérky. Domek v interiéru nabízí jeden společný prostor otevřený až do pultové střechy, která byla navíc ještě zvýšena o tři čtvrtě metru, tak aby se mohl vnitřní prostor pořádně nadechnout. Kožnar na projektu pracoval pro svého kamaráda, který nyní objekt využívá k víkendovým pobytům.

Martin Kožnar , 18. 1. 2021

  • Autoři: Martin Kožnar
  • Spolupráce: Jaroslav Schwarz
  • Země: Česká republika
  • Realizace: 2020
  • Město: Vamberk
  • Realizace: 2020
  • Investor: Hide in City, Vladimír Pešek
  • autor: Martin Kožnar *
  • publikováno: * 18. 1. 2021
  • zdroj: * Autorská zpráva

Klíčová slova:

dvůr

Mohlo by vás zajímat

Generální partner
Hlavní partneři