
Znovuoživení liverpoolské filharmonie
Historické budovy ze třicátých let mnohdy potřebují novodobý zásah. Jenže jak by měl vypadat? Mělo by se jednat o rekonstrukci, revitalizaci nebo čistě jen restaurování budov bez jakýkoliv zásahů? I na tyto otázky se snaží odpovědět jedna z nominací na britskou architektonickou soutěž RIBA 2017.
EARCH.CZ , 25. 9. 2017
Projekt, který řeší všeobecně známou a úspěšnou kulturní instituci, bude vždy podléhat nevyváženému hodnocení. Pokud je dobře přijat, bývá to většinou proto, že obnovuje stávající hodnoty a navazuje na ně. Má tedy odhalovat staré vlastnosti nebo se je snažit doplnit? A spočívá role architektů jednoduše v tom, aby se jejich práce stala podřízenou, nebo mají nastolit novou identitu budovy?
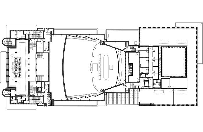
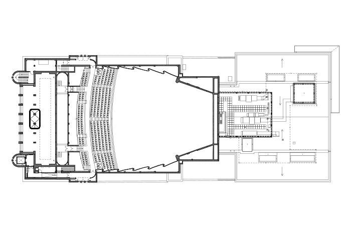
Koncertní sál liverpoolské filharmonie z roku 1939 navrhl britský architekt Herbert Rows. Nyní budova prošla žádanou a citlivou rekonstrukcí, která se snažila na obě výše uvedené otázky najít odpověď. Příkladné restaurování neopomenulo žádný detail a shovívavě řešené jsou především nedostatky, které budova z první poloviny minulého století už nemohla naplňovat. Její rozšíření o přístavbu je elegantní, praktické a poskytuje veškeré nezbytné zázemí, které se do stávající stavby nevešlo.
Třetí otázka, kterou se dostavba snaží naplnit je její přínos. Nad historickou budovou nedominuje, nijak jí neválcuje a hlavní pozornost je stále upírána na stavbu z konce třicátých let. Přesto se snaží o její důstojné doplnění, navrácení její důstojnosti a podtržení stávajících hodnot, které majestátní stavba představovala a nadále představuje.
- Ateliér: Caruso St John Architects
- Země: Velká Británie
- Město: Liverpool
- Realizace: 2016
- Užitná plocha: 6 800.00m2