Architektura / občanské stavby

Obchodní pasáž na severu Anglie v sobě propojuje historii se současností

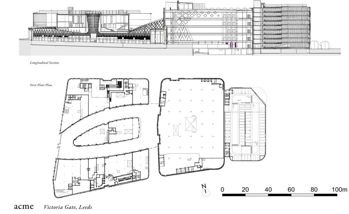
Obchodní centrum v Leedsu, jednoho z největších měst anglického severu, tvoří přirozené prodloužení čtvrti Victoria Quarter a Leedské obchodní oblasti. Prostor je zároveň vymezen historickou pasáží z viktoriánské éry. která patří k nejpovedenějším stavbám tohoto typu.

EARCH.CZ , 27. 10. 2017

Navržená pasáž Victoria Gate staví na odkazech zastřešených pasáží s bohatou výzdobou a snaží se o propojení se současnou interpretací dekorativních motivů, které byly vytvářeny podle geometrických vzorů v okolí. Stavba je zároveň oslavou okázalého „třpytu“ konzumu a zároveň „katedrálou“ společnosti – převážně díky své konstrukční složitosti, velkolepými průhledy a promenádou propojující město ze západu na východ.

Vzhledem k povaze a složitosti událostí a různorodosti klientů bylo obtížné určit specifické prostorové uspořádání. Nicméně celkové uskupení veřejných prostor předvádí soudržnost detailního řešení a potvrzuje cíl designérského týmu: Victoria Gate jako pozvolný přechod od viktoriánské cihly a terakotových fasád k současné skládané fasádě obchodního domu. Návrhem se proplétá řada příběhů vztahujících se k pasážím 19. století, téma „vlněných“ fasád Johna Lewise či odkaz na ranou historii trhu s vlnou prostřednictvím současných geometrických vzorů.

Návrh reaguje na požadavky velké a a vytížené budovy. Využívá současné metody vývoje od návrhu po realizaci, které podporují diskuzi o designu a stavění v digitálním věku.

  • Ateliér: ACME
  • Země: Velká Británie
  • Realizace: 2016
  • Město: Leeds
  • Realizace: 2016
  • Materiál: sklo
  • autor: EARCH.CZ *
  • publikováno: * 27. 10. 2017
  • zdroj: * Riba Awards

Mohlo by vás zajímat

Generální partner
Hlavní partneři