3AE s.r.o. - rodinný dům Rokycany
Jedná se o nízkoenergetickou dřevostavbu, která bude nejprve sloužit k rekreaci a v budoucnu k trvalému bydlení mladé rodiny. Na parcele se nachází stávající chata, která je již za horizontem své životnosti. Proto bude zdemolována a na jejím místě vyroste novostavba šitá na míru investorům.
Největším benefitem parcely je vzrostlá zeleň, která dodává prostoru patřičnou intimitu a v letních měsících příjemné zastínění. V těsném sousedství parcely se bohužel nachází bytový dům, jenž značně limitoval umístění a otevření domu do zahrady. S tímto problémem jsme se nakonec „poprali“ tím, že se předsunula hmota venkovního skladu tak, aby zajistila soukromí v obývacím pokoji a na terase.
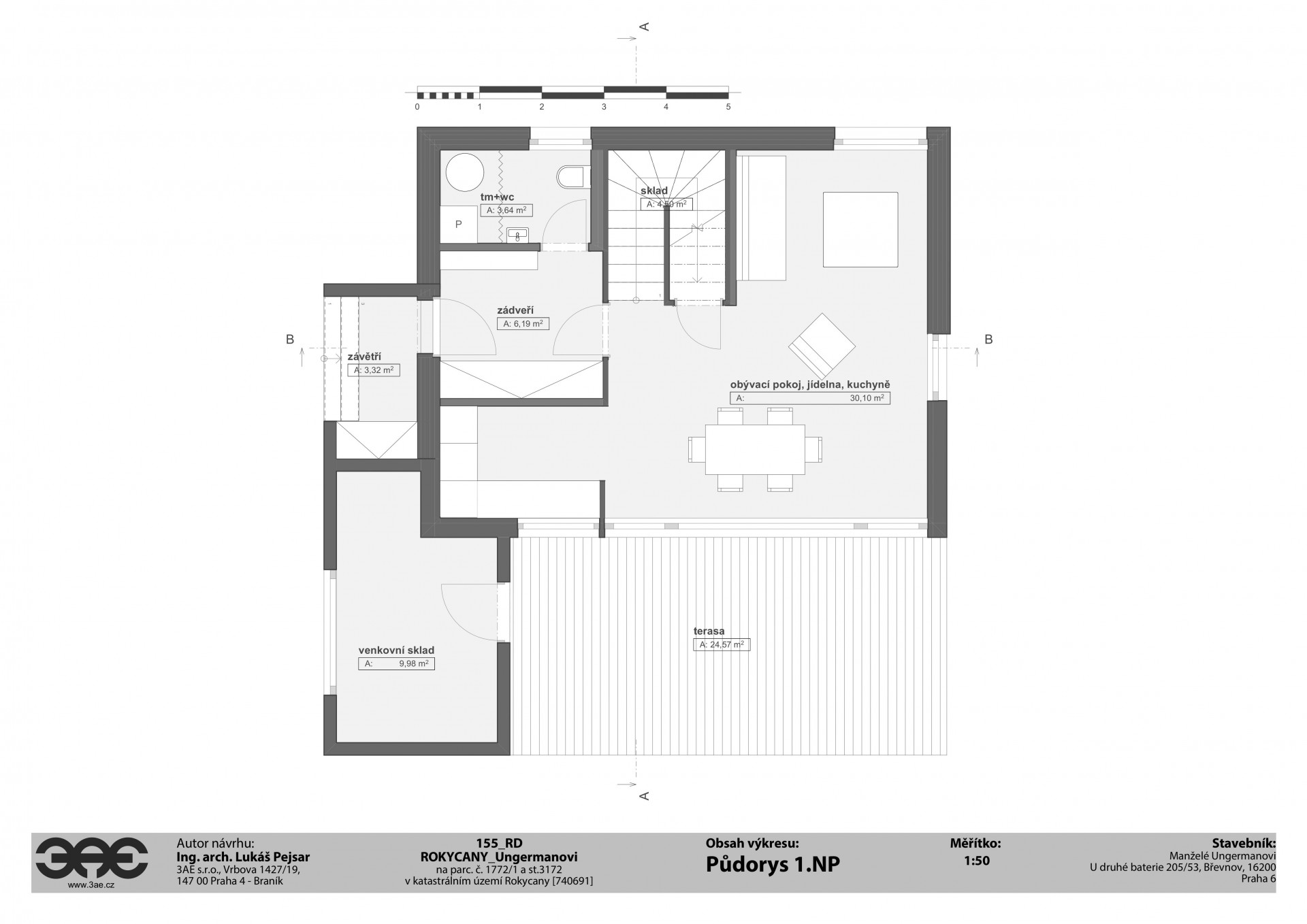
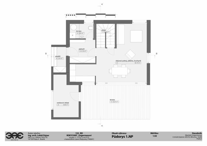
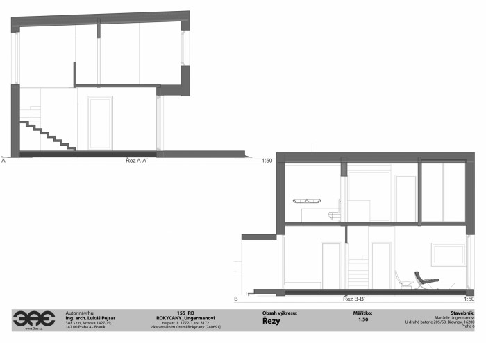
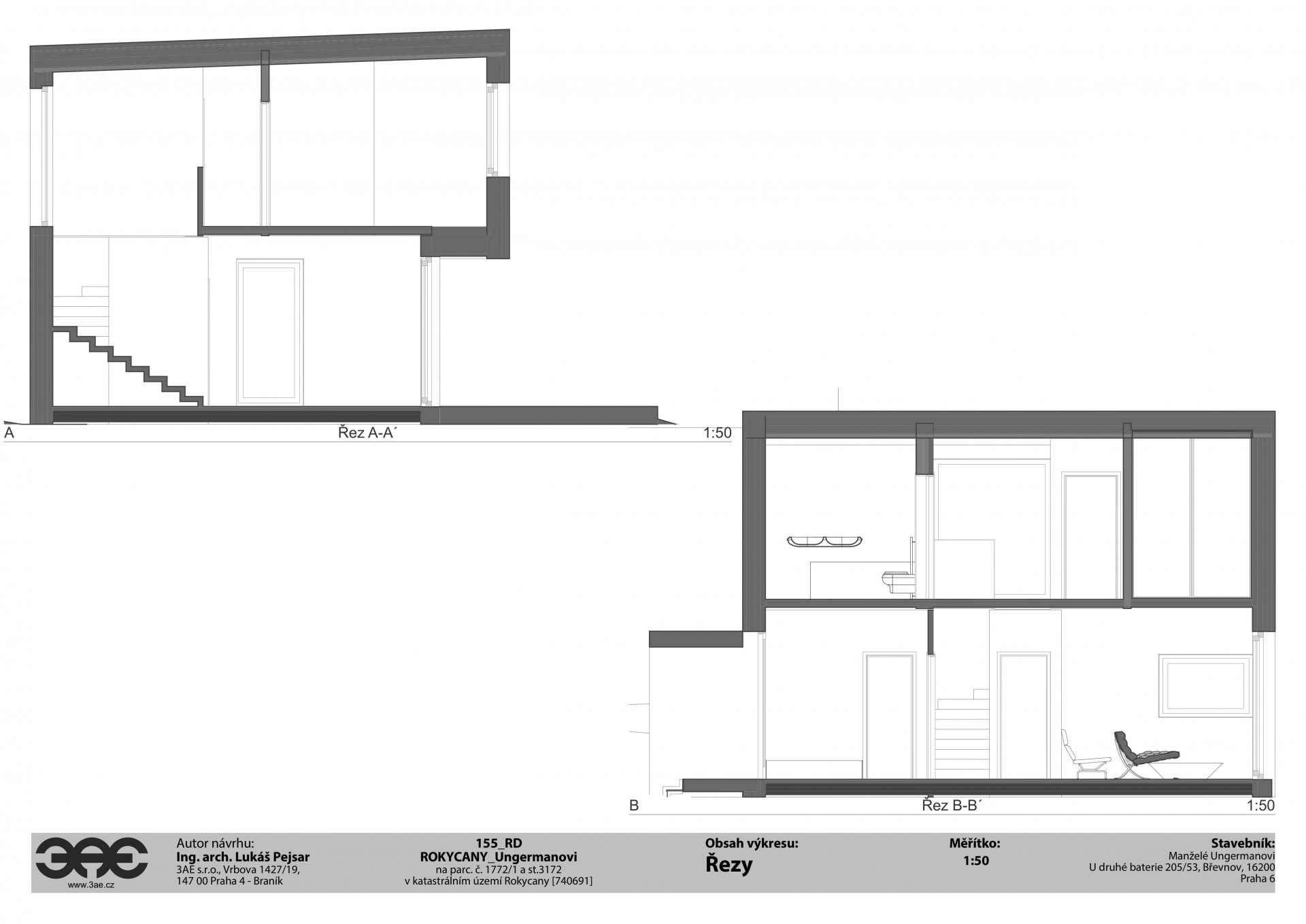
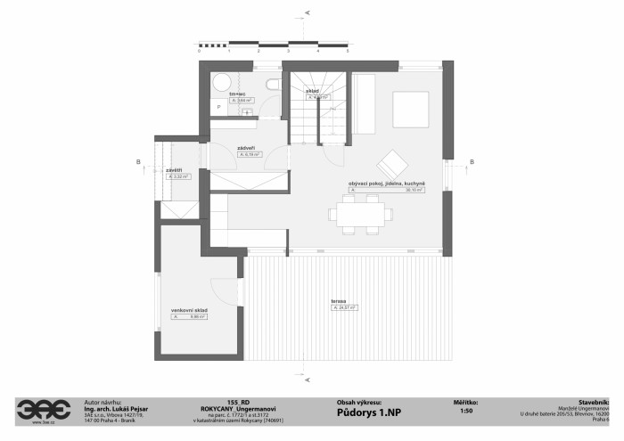
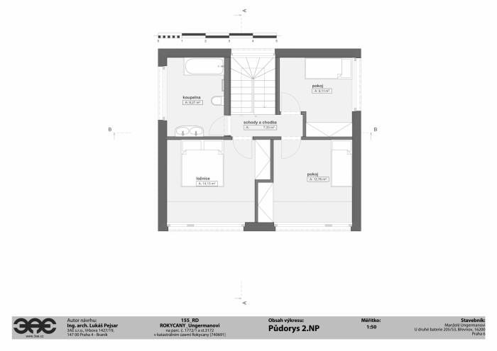
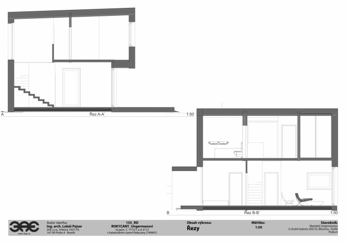
Vstup do objektu je ze západní strany. Vstupuje se do zádveří, kde je velká vestavěná skříň a botník. Přes zádveří je přístupná technická místnost s WC. Obývací prostor je maximálně otevřen a tudíž je propojen s kuchyní a jídelnou. Z tohoto prostoru je přímý vstup na venkovní terasu, čímž je vnitřní prostor příjemně propojen se zahradou. Pod schodištěm se nachází praktický úložný prostor. Ve druhém nadzemním podlaží se nachází koupelna s WC, ložnice a dva pokoje. V pokojích a v ložnici jsou navrženy prostorné vestavěné skříně. Celé 2NP je předsazeno vůči 1.NP, čímž vzniká praktický přesah, který v létě zastiňuje okna do obývacího pokoje a brání tak přehřívání tohoto prostoru.
Na fasádě je použit dřevěný obklad ze sibiřského modřínu, díky němuž se dům citlivě začleňuje do okolní krajiny. Tento obklad je kombinován s klasickou stěrkovou fasádou, která je použita zejména na venkovním skladu.
- Autoři: Lukáš Pejsar
- Ateliér: 3AE s.r.o.
- Užitná plocha: 96 m2
- Zastavěná plocha: 56 m2
Související architekti
Související ateliéry a firmy
Mohlo by vás zajímat