Adam Rujbr: RD Propast

Tento rodinný dům byl původně postaven v roce 1938 předním československým funkcionalistickým architektem Vladimírem Karfíkem (autor např. Baťova mrakodrapu ve Zlíně).

Rekonstrukce byla realizována pro klienta ve středních letech podnikajícího v médiích, který se do objektu staré funkcionalistické vily a jeho krásného okolí ihned zamiloval a bez velkého rozmýšlení objekt koupil.

Hlavním záměrem bylo zrekonstruovat dům s respektem k původnímu architektonickému řešení, neboť to bylo ve své době velmi nadčasové a i dnes je toto řešení velmi funkční a aktuální.

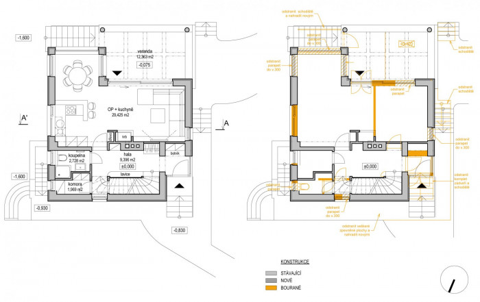
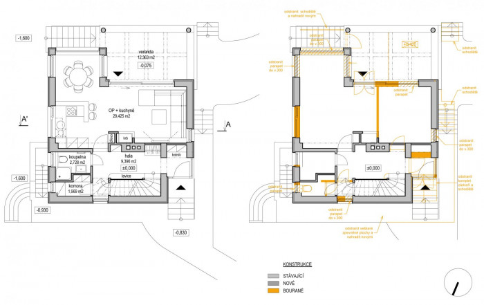
Velikost domu byla naprosto respektována; nebylo třeba nic přidávat ani demolovat. Jediným větším zásahem je použití větších formátů zasklení umožňující velkorysé otevření domu do zahrady. Většina oken je francouzského typu s minimální šířkou parapetu.

Některé dělicí příčky menších pokojů byly vybourány, aby došlo k odlehčení a zvětšení prostoru. Barevně je vila pojata jako čistě bílá kostka s výklenkem verandy a střešní terasy, která je posazena na stávajícím kamenném soklu. Vše je tak řešeno s ohledem na původní funkcionalistický styl.

  • Autoři: Adam Rujbr, Michal Grošup
  • Ateliér: Adam Rujbr Architects
  • Země: Česká republika
  • Realizace: 2013
  • Zodpovědný projektant: Jan Kostelka
  • Město: Hradec
  • Datum projektu: 2012
  • Realizace: 2013
  • Užitná plocha: 133.00m2
  • Zastavěná plocha: 81.00m2
  • Plocha pozemku: 3 290.00m2
Generální partner
Hlavní partneři