Aulík Fišer architekti - Vila Průhonice

Práce na tomto projektu byla výjimečná nejen proto, že rodinná vila je vždy výjimečné zadání, ale především proto, že pro manžele, kteří se na nás s projektem obrátili, náš atelier už před dvaceti lety rodinný dům, v kterém dosud bydlí, navrhoval. Ten první dům vznikal v jiné situaci, je v jiném regionu a je také menší, ale pro naši práci na novém konceptu existoval už vytvořený cenný osobnější vztah s klientem.

Vlastní zadání vily nebylo nijak neobvyklé – požadavkem bylo pohodlné bydlení pro starší manželskou dvojici s dospělými dětmi, žijícími už samostatně, které mohou s vnuky ve vile občas přespávat.

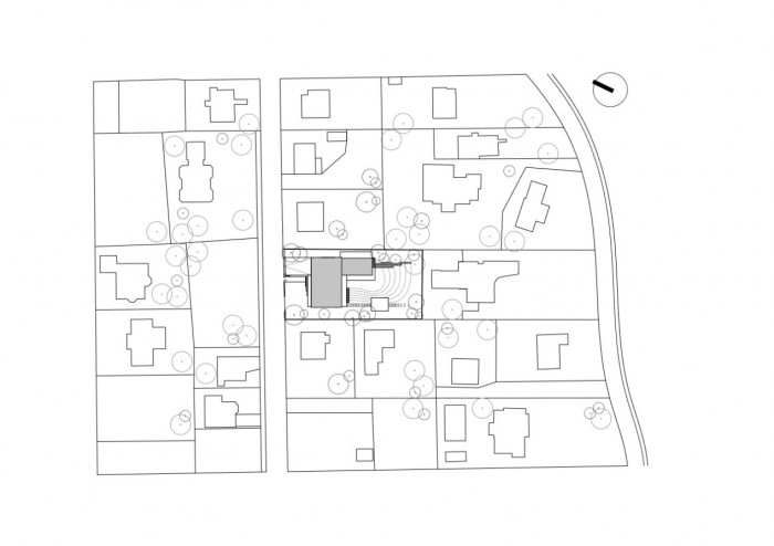
Navrhnout vilu do Průhonic bylo poměrně složité v tom, že Průhonice jsou velmi kontrastním prostředím. Vedle krásného zámku s proslulým parkem jsou tady i méně půvabné projevy typické pro pražské satelity v podobě naprosto nesourodé zástavby rodinných domů z posledních padesáti let, málo integrovaných s původní vesnickou strukturou obce. Výhodou je, že ulice, ve které je vila navržena, je přímo u Průhonického parku a vazba na park je tak podstatnější, než na okolní zástavbu. Důležitá je i skutečnost, že ulice byla založena už v sedmdesátých letech minulého století, zeleň v zahradách je tedy vzrostlá a celé prostředí i přes různorodost jednotlivých domů působí stabilizovaně. Určitým omezením pro návrh byla velikost parcely 1500 metrů čtverečních ve vazbě na regulativ Průhonic, určující maximálně dvacetiprocentní zastavěnost. V důsledku toho jsme museli umístit bazén do suterénu a vytvořit v rámci složitějších terénních úprav zahrady takové řešení, které by umožňovalo důležitý kontakt se zahradou. Příznivou okolností pozemku byly vzrostlé stromy, které se z větší míry podařilo zachovat a využít pro novou stavbu.

Foto: EARCH

Protože jsme v prostředí ulice nenalezli existující architektonické hodnoty, ke kterým bychom se chtěli návrhem vztáhnout, zvolili jsme koncept jednoduché, striktní formy na sever do ulice a kontrastně k ní členitější formy na jih do zahrady. Prostředkem pro spojení obou odlišných forem domu (nikoliv pouze fasád) je velkorysý dvoupodlažní železobetonový rám nastavující „vysoký řád“ a architektonické měřítko celého objektu.

Severní průčelí domu je tvořené pravidelným vertikálním rastrem, odpovídajícím menší potřebě oken tímto směrem, je tradičně omítnuto. Jižní průčelí, z něhož vybíhá výrazné křídlo základní obytné části do zahrady, je zcela odlišné, je svým rozsáhlým prosklením maximálně otevřené do výrazného reliéfu zahrady a jeho obložení cedrovým dřevem potvrzuje propojení domu s přírodou i intimitu prostředí v této části pozemku. Intenzivní propojení, prolnutí domu se zahradou a vytvoření chráněného soukromí v její části je podstatným principem našeho návrhu. V zahradě jsou vysázeny stejné druhy rostlin jako v nedalekém Průhonickém Parku, svažitější část landscapu pokrývají obdobně jako tam rododendrony.

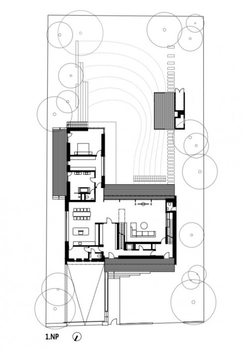
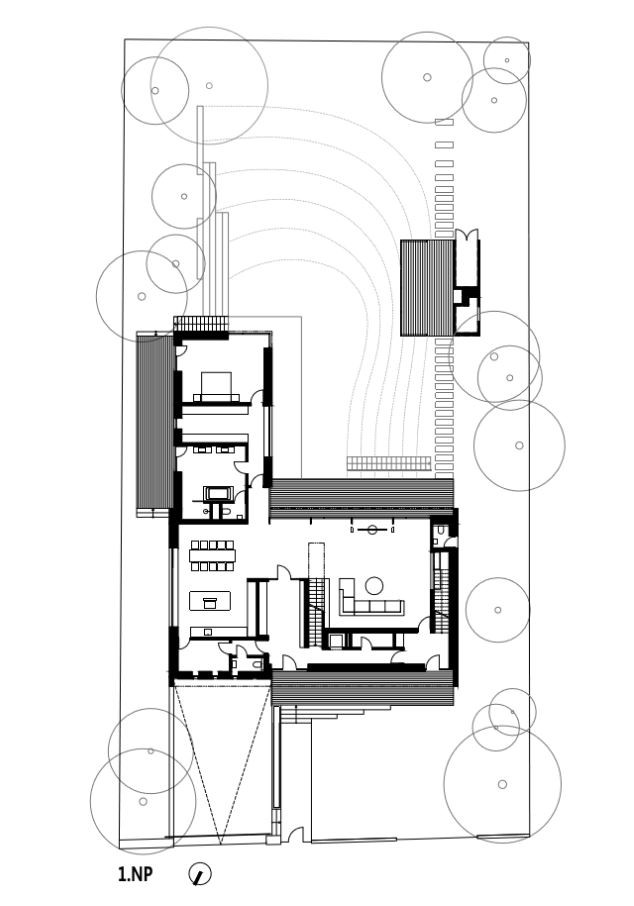
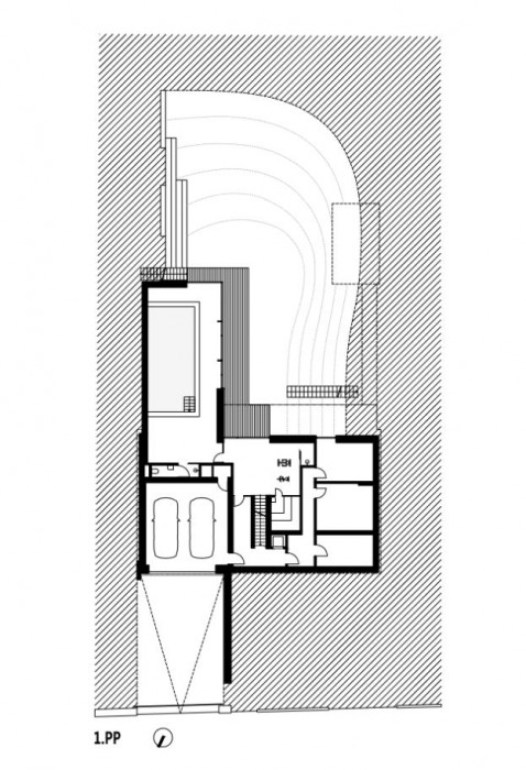
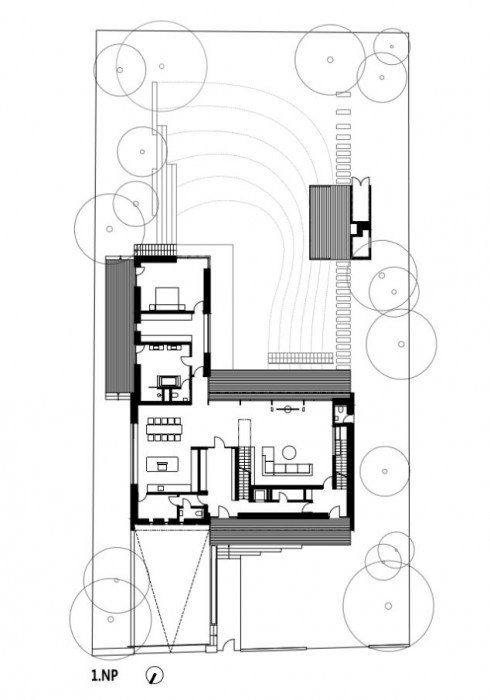
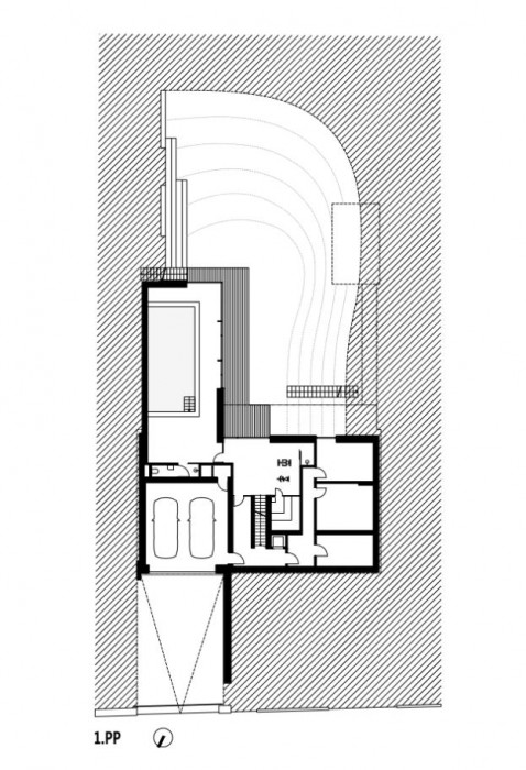
Základní obytné funkce domu se odehrávají, tak jak bylo požadováno klientem, v rámci přízemí. Je zde prostorný obývací pokoj a jídelna s kuchyní dimenzovaná pro setkávání širší rodiny, dále pak hlavní ložnice a příslušné zázemí. V prvním patře jsou dva hostovské pokoje a pracovna se samostatným vstupem z ulice. V podzemním podlaží je vedle garáže a technického zázemí především osmimetrový bazén se saunou a malým fitness. Prostor bazénu je otevřený prosklenou stěnou do snížené části zahrady, která je zapuštěna z toho důvodu, aby poskytovala potěšení i pro tuto část domu.

Foto: EARCH

Foto: EARCH

Generální partner
Hlavní partneři