bergmeisterwolf - music for the forest

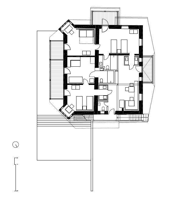
Hotel z roku 1913 byl komplexně přestavěn. Kdysi to býval dům babičky, kde byla každá místnost pojmenována po jednom z dětí. Dnes to jsou hotelové apartmány, zbudovány ve dvou patrech, každý s obývacím pokojem a sdílenou kuchyní. Dispozičním úkolem bylo přidání koupelen a kuchyní ke každé z místností, rekonstrukce se ale týkala i interiéru s původním nábytkem a kazetovými stropy, které bylo potřeba opatrně doplnit o nové prvky.

BergFoto: EARCH

Malá kuchyň, zapadlá mezi obývacím pokojem a apartmánem, působí jako nestranný element a také jako vestibul. Skleněný vstup do koupelny se promítá také do obýváku. Statická konstrukce, na zeleno lakované I nosníky se staly hlavními prvky interiérového designu.

BergFoto: EARCH

Malá přístavba do terénu s přilehlou terasou vyčnívající do krajiny. Dřevěný pavilon je domem klavíru, takže koncerty a čtení mají znovu své místo, stejně jako za starých časů.

BergFoto: EARCH

Generální partner
Hlavní partneři