B

Branislav Bolco - Apartment Bratislava

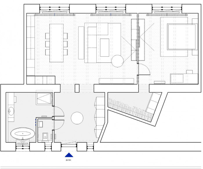
Riešený byt sa nachádza v bytovom dome postavenom pre zamestnancov bytového družstva v roku 1932. Úlohou rekonštrukcie bolo zmeniť pôvodné radenie izieb tak, aby vyhovovali súčasnému životnému štýlu a vytvorili jednoduchý, logický a otvorený priestor. Malými zmenami dispozície sme získali jeden funkčný, svetlý a vzdušný priestor pre varenie, jedáleň a obývaciu izbu.

Po odhalení vrstiev stropu sme získali svetlú výšku 333cm a pôvodnú pohľadovú betónovú konštrukciu. Keďže sa nachádzala v použiteľnom a zachovalom stave, rozhodli sme sa ju zanechať pohľadovú a dominantnú pre celkové výrazové riešenie priestoru. Betónový strop taktiež logicky rozdeľuje dispozíciu na dva funkčné celky - priestor pre dennú časť so spálňou a vstupné priestory s hygienickými priestormi a šatníkom. Celky sú navzájom prepojené zdvojeným prechodom ponechanom v pôvodnom materiálovom riešení - v reznom murive.

Použitím minima materiálov sme sa snažili byt zanechať čo najjednoduchší, napriek tomu teplý a komfortný. Pôvodný dubový parket bol použitý ako protiklad odhaleným rebrám stropnej betónovej konštrukcie, epoxidová podlaha bola použitá vo vstupných priestoroch a v kúpeľni. Kuchynská linka a nábytok vyrobený z radiálnej dubovej dyhy ponecháva výraz interiéru ešte viac geometrickým.

Ako hlavná doplnková farba bola vybraná tmavá modrá, použitá na kuchynskej linke, zreštaurovanom kresle zo 70-tych rokov, puffu vo vstupe, alebo rôznych bytových doplnkoch. 

  • Ateliér: Cubedesign
  • Země: Slovensko
  • Město: Bratislava
  • Realizace: 2018

Související ateliéry a firmy

Generální partner
Hlavní partneři