Bydloarchitekti - Rodinný dům Polanka nad Odrou

Dům pro dva architekty a jejich děti, dům pro nás. Na místě cihlového domu po praprababičce. Nenáročný na metry čtverečné a technologie. Náročný na kompaktnost, jednoduché hmoty a přiznané materiály. 

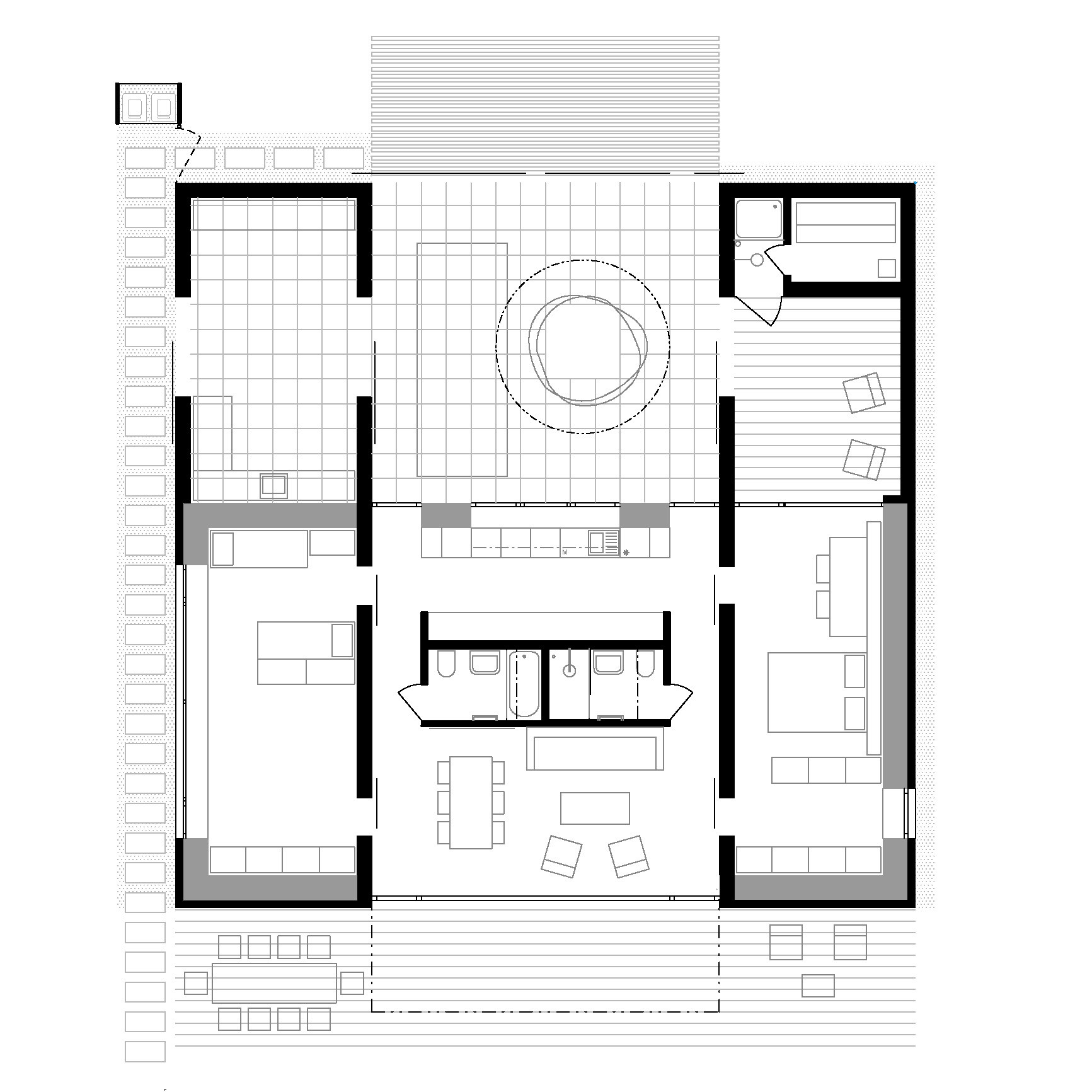
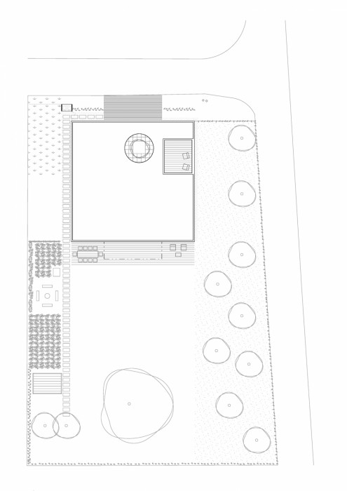
Po stranách jsou dva cihelné bloky, jeden se soukromou ložnicí otevřenou do atria se saunou, druhý s dětskými pokoji a kůlnou. Mezi nimi proplouvá denní život. Od ulice vstupním nádvořím se stromkem a krytým stáním, kolem kuchyně a koupelen do obýváku s jídelnou až na terasu do zahrady. Betonový strop vybíhá ven nad jižní prosklenou stěnou, kterou chrání proti přehřívání. Podlaha je z hlazeného betonu. Plné cihly jsou v interiéru doplněny nábytkem a obklady z překližky. 

Někdo se diví, že nám je vidět až do talíře. Nám to ale nevadí. Užíváme si výhledu do krajiny, psa povalujícího se na terase, rozkvetlé květinové louky, sílících ovocných stromů v sadu, vůně bylinek a šumění rákosí. 

  • Autoři: Petra Vymetálková, Martin Vymetálek
  • Země: Česká republika
  • Město: Ostrava
  • Ulice, číslo: Heleny Malířové 1304/1
  • Suma: 3 000 000.00
  • Měna: CZK
  • Datum projektu: 2016
  • Realizace: 2020
  • Užitná plocha: 95.00m<sup>2</sup>
  • Zastavěná plocha: 218.00m<sup>2</sup>
  • Plocha pozemku: 1 125.00m<sup>2</sup>
Generální partner
Hlavní partneři