Byt Bulovka
Navrhovaná úprava bytu řeší nedostatky původní dispozice a na omezeném prostoru se snaží zhodnotit stávající kvality bytu, jako jsou orientace obytných místností na jihovýchod s výhledem na Libeň a kopec Vítkov či přítomnost dvou balkónů.
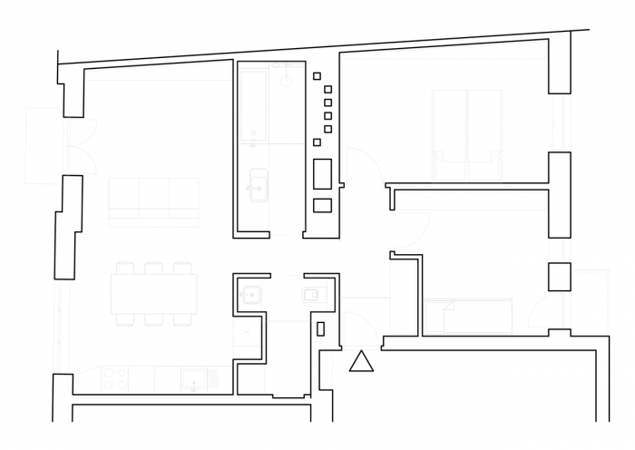
Koncepčně je byt rozdělen na tři zóny: klidovou (vstupní) orientovanou do vnitrobloku na severozápad, technickou u vnitřní nosné zdi, ve které je umístěna koupelna, WC a veškeré rozvody a obytnou zónu orientovanou jihovýchod vzniklou spojením prostoru původní ložnice a obývací místnosti.
Mohlo by vás zajímat
1/9
ECHOROST ARCHITEKTI, Byt Bulovka – foto
Foto: Benedikt Markel
2/9
ECHOROST ARCHITEKTI, Byt Bulovka – foto
Foto: Benedikt Markel
3/9
ECHOROST ARCHITEKTI, Byt Bulovka – foto
Foto: Benedikt Markel
4/9
ECHOROST ARCHITEKTI, Byt Bulovka – foto
Foto: Benedikt Markel
5/9
ECHOROST ARCHITEKTI, Byt Bulovka – foto
Foto: Benedikt Markel
6/9
ECHOROST ARCHITEKTI, Byt Bulovka – foto
Foto: Benedikt Markel
7/9
ECHOROST ARCHITEKTI, Byt Bulovka, půdorys, nový stav – foto
Foto: archiv autorů
8/9
ECHOROST ARCHITEKTI, Byt Bulovka, půdorys, původní stav – foto
Foto: archiv autorů
9/9