Byt pro hosta

Prostorný byt se investor v pražských Vokovicích rozhodl doplnit o menší na stejném podlaží. Původním určením garsoniéra se nyní stala bytem pro hosty, kteří mladou internacionální rodinu navštěvují z velkých dálek a tím i na delší čas.
Byt pro hosty je určen pro rodinné příslušníky i přátele. Najdou v něm kompletní zázemí umožňující jim zůstat v kontaktu aniž by kdykoliv získali pocit, že jsou na obtíž. Samostatná kuchyň s barovým/jídelním stolem jim poskytuje naopak dostatečné zázemí k přípravě novinek z domácí kuchyně a možnost stát se tak na chvíli hostitelem.
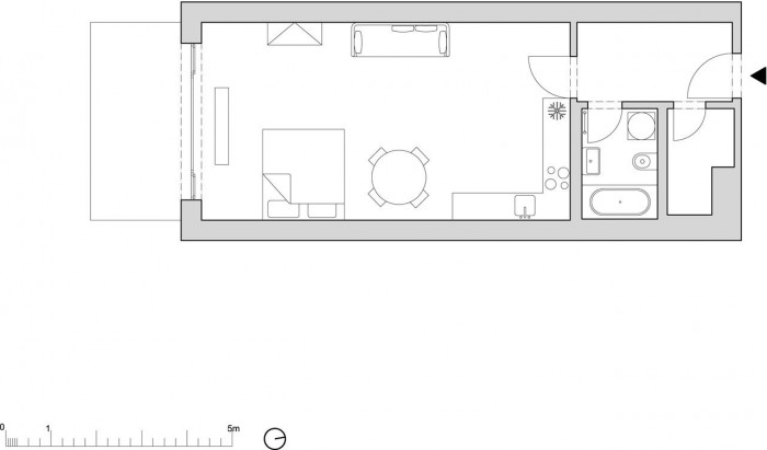
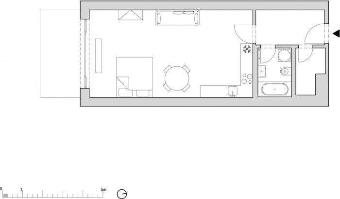
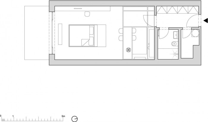
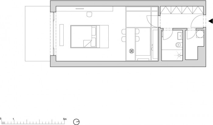
Byt je prostorově poměrně skromný, velkorysost mu dodal investor, který se nebál investovat do kompletní výměny všech standardně dodaných prvků. Rekonstrukci jsme díky tomu mohli vzít z gruntu. V bytě se měnila dispozice koupelny i dveře včetně zárubní. Původní poškozenou dřevěnou podlahu a dlažbu nahradila jednotná polyuretanová stěrka. Byt se vyčistil a sektorovou kuchyň nahradil nově navržený nábytek na míru, doplněný kvalitními židlemi. Kladli jsme důraz na optické rozdělení kuchyně/ložnice a naopak. Oproti původní dispozici 1+kk je současný prostor definován více zónami. Velká postel neslouží jen ke spaní, ale zároveň funguje také jako sedačka a prostor na ukládání ložního prádla. Pro případ, že by hosté potřebovali pracovat, mají k dispozici na stěně zavěšenou knihovnu a místo s pracovní plochou a velkým kulatým zrcadlem pro přípravy na večerní program.
V předsíni, která navazuje na koupelnu a komoru, vznikla vestavná skříň. Majitel s vášní pro cyklistiku v jejím středu vyhradil prostor pro svou „silnici“ a ve chvílích, kdy není hostinský byt využíván, odsud vyráží na výjezdy. Pochopitelně, že je v komoře připraveno několik kol pro případ, že průchod předsíní nenechá někoho z hostů chladným.
Koupelna je i z tohoto důvodu vybavena sprchovým koutem, který oproti původní vaně lépe slouží hostům i sportovcům. Takže hurá do pedálů s vidinou šťastného návratu!
- Ateliér: DDAANN, Mjölk architekti
- Země: Česká republika
- Město: Praha - Vokovice
- Realizace: 2015
Související projekty
Související ateliéry a firmy
Mohlo by vás zajímat

















