Centrum andragogiky
Předmětem projektu byla rekonstrukce a dostavba bývalé cihelny v obci Svobodné Dvory u Hradce Králové, která spočívala v její adaptaci na multifunkční objekt sloužící převážně pro školící aktivity investora. Původní objekt cihelny prošel rozsáhlou rekonstrukcí, aby splňoval požadavky na moderní výuku a byl doplněn o betonovou nástavbu a přístavbu s výrazným prosklením.
Návrh vyplynul z danosti a existence stávajícího objektu cihelny, který byl ještě v roce 2011 stále velmi impozantní a nadšením klienta tuto stavbu zachovat, obnovit ji a dostavět pro potřeby jiného funkčního využití ve vymezených mantinelech.
Stávající objekt cihelny je částí původní kruhové cihlářské pece, přestavěné přibližně v roce 1925 na místě staršího objektu, poničeného požárem. Po roce 1927 byla cihelna (kruhová pec) dle archivní dokumentace prodloužena přístavbou na východní straně. Tato východní, mladší polovina původní stavby byla koncem 90. let minulého století ubourána. Současně byl v celé ploše objektu odstraněn dřevěný krov sedlové střechy kryjící režnou cihelnou konstrukci.
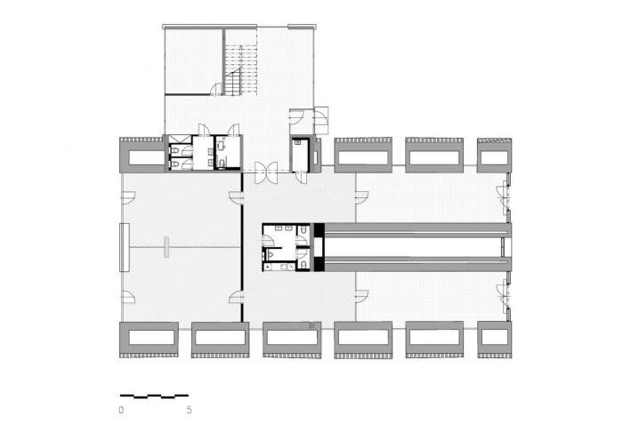
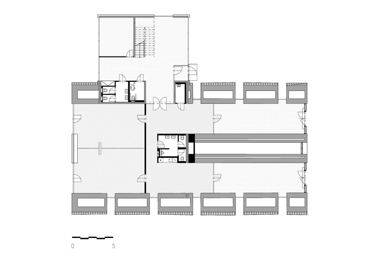
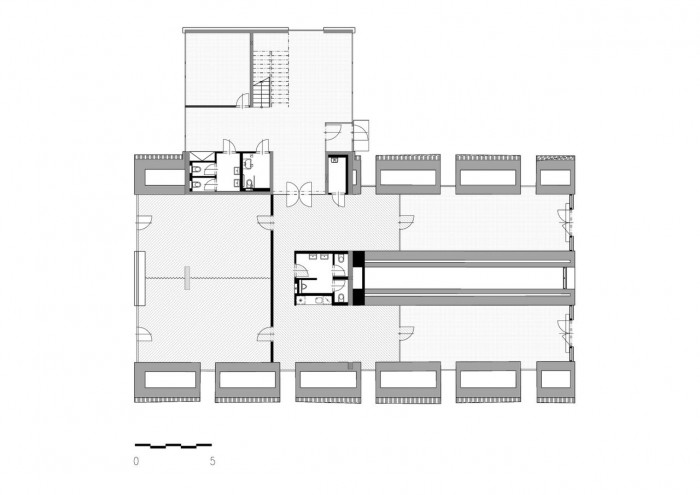
V původním přízemním objektu cihelny jsou umístěny školící místnosti se zázemím, nachází se zde prostor pro trénink, archivy a sklady. Nové křídlo je navrženo v objemu dvou podlaží.
V přízemí prosklené části jsou umístěny vstupní prostory s recepcí a kancelář. Ve 2. NP školící místnost, přednáškový sál, místnost pro koučink a hygienické a technické zázemí. Druhé NP tvoří pravidelný, podélný kvádr, který je příčně nasazen na střešní desku historického tělesa cihelny. Neomítané původní režné zdivo cihelny a hladká plocha pohledového betonu a skla spolu s tmavou omítkou druhého patra tvoří barevný a materiálový kontrast.
- Autoři: Václav Hlaváček
- Ateliér: Studio acht
- Spolupráce: Jan Štěpnička, Majda Šnajdrová, Petr Kopeček, Matěj Kuncíř
- Země: Česká republika
- Město: Svobodné Dvory
- Ulice, číslo: K Dolíkám 809/8b
- PSČ: 503 11
- Realizace: 2014
- Užitná plocha: 646.00m2
- Zastavěná plocha: 559.00m2
- Foto ©: Alex Timpau
Související projekty
Související architekti
Související ateliéry a firmy
Mohlo by vás zajímat