CMC Architects - Loft with love
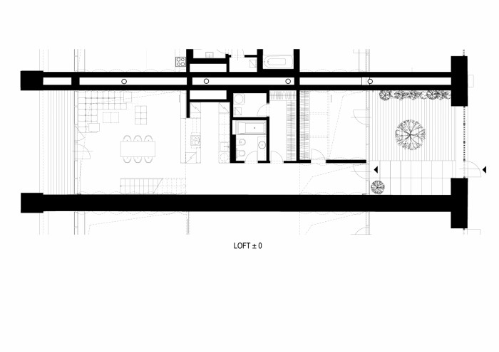
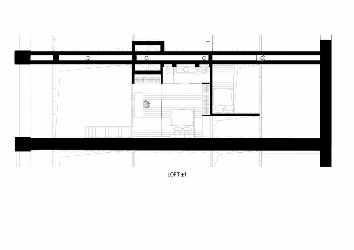
Původní pivovarská budova Prvního Měšťanského Pivovaru v pražských Holešovicích. Místo, kde se kvasilo pivo a skladovaly pivovarské sudy, dalo svou původní dispozicí podnět k originálnímu pojetí designu otevřeného a zároveň introspektivního prostoru pro kreativní a moderní způsob bydlení v industriálním duchu. Rekonstruovaný objekt zahrnuje celkem čtyřicet loftových jednotek, z nichž polovina jsou skutečné průmyslové lofty v původních skladových kójích, šest bytů vzniklo rekonstrukcí přední části budovy a čtrnáct bytů je umístěno v nové nástavbě směrem do prostoru náměstí.
Rekonstrukce areálu proběhla v roce 2008. Po deseti letech jsme se na stejné místo vrátili znovu, s realizací interiéru jednoho z loftů v původních pivovarských skladech. Skvělý klient, skvělá práce. Industriální charakter podtrhuje cihlová zeď bez omítky, ocelové schodiště, ocelová knihovna, betonová podlaha, černý strop.
Snahou bylo zachovat původní industriální charakter stavby a vytvořit prostor pro moderní bydlení s vysokým komfortem. Použité materiály ponecháváme ve svém surovém stavu a s přiznanou strukturou. Betonová podlaha nemá dilatace a je ponechána přirozenému popraskání. Elektrické rozvody vedou po povrchu cihlové zdi s černými koncovými prvky. Obytný prostor má výšku 6 metrů a je vybaven technikou na promítání. Loft má dvě koupelny pro dvě ložnice. Vstup je přes atrium umožňující venkovní posezení. Rovněž u obývacího pokoje je venkovní terasa.
- Autoři: Vít Máslo, David Richard Chisholm
- Ateliér: CMC ARCHITECTS
- Spolupráce: Evžen Dub, Gabriela Sekyrová, Nela Niederle
- Země: Česká republika
- Město: Praha 7 - Holešovice
- Ulice, číslo: Jankovcova 1037/49
- Datum projektu: 2018
- Realizace: 2019
- Užitná plocha: 120.00m2
Související projekty
Související architekti
Související ateliéry a firmy
Mohlo by vás zajímat