DDAANN - Dům za humny
Za vesnickými humny, zády k cestě ale čelem k lesu, stojí nenápadný dům.
Svou polohou a tvarem jasně vymezuje hranici vnějšího světa a chrání tak soukromí a klid svých obyvatel. Do silnice je otevřen pouze vstupní branou a malými otvory v cihlové zdi. Hmota se obtáčí kolem terasy, kterou chrání a je k ní maximálně otevřená. Hřeben sedlové střechy se pomalu zdvihá tak, aby pod ním bylo dost místa pro nízkou ložnici, zázemí a převýšený obytný prostor s vloženým patrem.
A to je celá idea – jednoduchý, skromný a přitom dostatečně prostorný a velkorysý domov...
Mohlo by vás zajímat
1/23
Dům za humny, DDAANN
Foto: Daniel Baudis
2/23
Dům za humny, DDAANN
Foto: Daniel Baudis
3/23
Dům za humny, DDAANN
Foto: Daniel Baudis
4/23
Dům za humny, DDAANN
Foto: Daniel Baudis
5/23
Dům za humny, DDAANN
Foto: Daniel Baudis
6/23
Dům za humny, DDAANN
Foto: Daniel Baudis
7/23
Dům za humny, DDAANN
Foto: Daniel Baudis
8/23
Dům za humny, DDAANN
Foto: Daniel Baudis
9/23
Dům za humny, DDAANN
Foto: Daniel Baudis
10/23
Dům za humny, DDAANN
Foto: Daniel Baudis
11/23
Dům za humny, DDAANN
Foto: Daniel Baudis
12/23
Dům za humny, DDAANN
Foto: Daniel Baudis
13/23
Dům za humny, DDAANN
Foto: Daniel Baudis
14/23
Dům za humny, DDAANN
Foto: Daniel Baudis
15/23
Dům za humny, DDAANN
Foto: Daniel Baudis
16/23
Dům za humny, DDAANN
Foto: Daniel Baudis
17/23
Dům za humny, DDAANN
Foto: Daniel Baudis
18/23
Dům za humny, situace, DDAANN
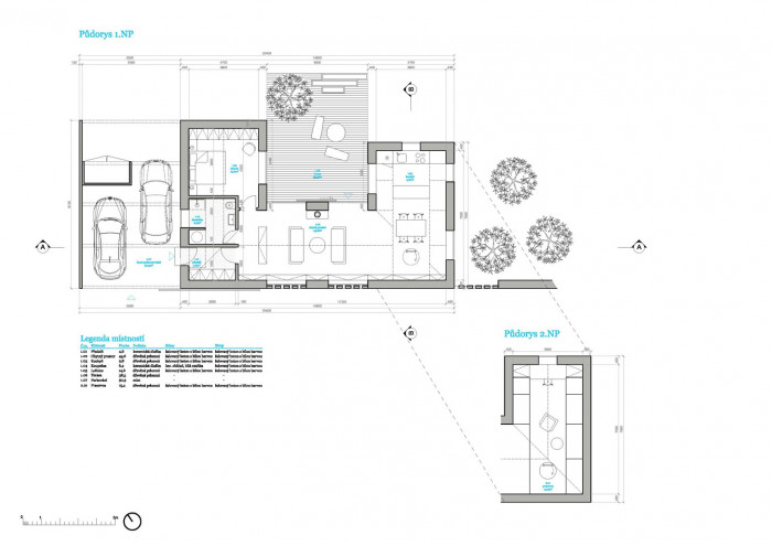
19/23
Dům za humny, půdorys, DDAANN
20/23
Dům za humny, řez, DDAANN
21/23
Dům za humny, pohled, DDAANN
22/23
Dům za humny, pohled, DDAANN
23/23