Designist - Byt Ládví
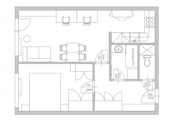
Byt je situován v klasickém panelovém domě, v původní dispozici 2+1. Celková podlahová plocha bytu činí 42 metrů čtverečních. Byt byl předán v původním stavu a jednalo se o kompletní rekonstrukci včetně výměny všech povrchů.
Požadavkem klientů bylo co nejvíce využít stávající prostor, byt prosvětlit, opatřit plnohodnotnou kuchyní, umístění dvou horských kol v bytě a celkově využít maximálně úložný prostor. Dalšími požadavky bylo místo pro přespání návštěv, prostor pro nácvik tance, dvě pracovní místa a jídelní stůl až pro 4 osoby.
V bytě bylo nutné vyměnit podlahové krytiny za dubové parkety, které jsou jednotné v celém bytě a volně navazují na dlažbu v kuchyni. Vestavěný nábytek a kuchyň se ladila do světlé barvy s akcentem dubové dýhy, tak aby se malý prostor co nejvíce propojil. Místnost pro obývací pokoj a kuchyň se propojil větším stavebním prostorem bez dveří a celkové optické zvětšení a prosvětlení se dosáhlo i velkým zrcadlem na stěně, které je možné zakrýt závěsem. Jídelní stůl je atypový prvek, který se může sklopit na zeď v případě požadavku na volný prostor a v místnosti je dále sedačka, která v případě rozložení i s taburetem slouží jako dvojlůžko pro přespání návštěv.
Vstupní chodba se prosvětlila nadsvětlíky, kudy proudí i denní světlo. V koupelnách a na toaletě jsou použité cementové impregnované obklady. Koupelnový nábytek je dělaný na míru, stejně jako veškeré ostatní truhlářské prvky v bytě.
Jelikož barevnost v bytě mela být laděna do modrého odstínu, byla zvolena jako ideální volba k doplnění dekoru přírodního dubu a bílé barvy.
- Autoři: Ivana Šustrová
- Ateliér: DESIGNIST
- Země: Česká republika
- Město: Praha - Ládví
- Realizace: 2017
- Užitná plocha: 42.00m2
Související projekty
Související architekti
Související ateliéry a firmy
Mohlo by vás zajímat