esté architekti - Loving bistro Letná

Nenápadná hra světla a stínu haiku propisovaných sluncem skrze výlohy do interiéru vybízí cestou ulicí Dukelských hrdinů k Veletržnímu paláci k zastavení, zamyšlení. Zpomaluji krok přijdu mnohem později avšak vidím víc Kdo se nenasytí krásou veršů Petra Petříčka, může vstoupit. Ale i ten koho haiku minou a chce se „jen“ najíst, s někým se potkat nebo prostě jen být chvíli sám a pozorovat okolní ruch. Lehkost a klidná atmosféra těží nejen z volného prostoru, vysokých stropů a dobrého světla. Nový koncept veganského bistra investor opřel o dlouholeté zkušenosti, svůj nenucený přístup k veganství i životu. S širším týmem sehraným z předchozích realizací se tak podařilo vytvořit místo, které nabízí na dolní hraně pražské Letné možnosti volby. Vyhlášená hospoda U Sv. Antoníčka si nemohla přát lepšího souseda.
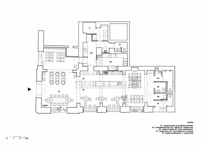
Parter nárožního domu s velkorysými výkladci sloužil obchodu a službám hned od své výstavby vedené architektem a stavitelem Františkem Leypoldem. Původní samostatné krámy byly postupnými úpravami propojovány a motiv širokého vnitřního portálu prolomeného nosnou stěnou definoval směr hlavních úprav. Přesunem kuchyně hlouběji do dispozice domu a zvýšením zbývajících portálů se podařilo propojit celou plochu s vazbou na parter. Stávající výlohy v hliníkových rámech jsou využity s minimálními zásahy, byť nejsou dokonalé - není nutné měnit vše.
Čisté, minimalisticky laděné plochy jsou navrženy záměrně jako neutrální pozadí pro barevnost jídel, lidí a dění uvnitř. Prostoru dominuje dřevěný samoobslužný pult s prosklenou chlazenou vitrínou a nezbytným gastro vybavením. Hlavní průhled rámovaný čtyřmi pravidelnými portály uzavírá dřevěná lamelová stěna se skrytými dveřmi do zázemí hostů. I další dřevěné prvky jsou vyrobeny na míru z jasanu, který probarvuje interiér vystavěný na kombinaci světle šedých stěrek, lazur a keramické mozaiky. Vše spojuje čistá bílá malba a interiérová zeleň prorůstající v různých formách prostorem.
Varianty sezení od klasického stolu „pro dva“, vyšší barové stolky a pulty ve výkladcích, přes sezení na lavici, veliký stůl pro skupiny až po individuální barovky u zavěšených kovových stolků vycházejí vstříc různým situacím a náladám. Sezení přímo pod listy stromů v sezóně vystupuje až na ulici v podobě letní zahrádky.
Mohlo by vás zajímat












