FAM - Dostavba ČKAIT (studie)

Místo, kde dnes stojí budova ČKAIT, se nachází na okraji Nového města pražského v blízkosti jeho původního gotického a později barokního opevnění. Dlouhý historický vývoj Prahy v opevněné formě vedl ke kompaktní a husté výstavbě ve vnitřní části města. Sídelní struktura se formovala do uzavřených městských bloků, které postupně procházely tzv. metropolizací, tedy zvyšováním výškové hladiny zástavby a přestavbami jednotlivých domů. 

Naším cílem je navrhnout takovou rekonstrukci a dostavbu budovy ČKAIT, která bude respektovat historii místa a naplno využije potenciál stanovený zadavatelem a současně bude napomáhat k dobrým sousedským vztahům ve svém okolí.

Zadáním vyzvané architektonické soutěže bylo řešení vstupní veřejné části a obecné zlepšení provozních vazeb stávajícího objektu a dále dostavba nového objektu na složité dvorní parcele.

Foto: EARCH

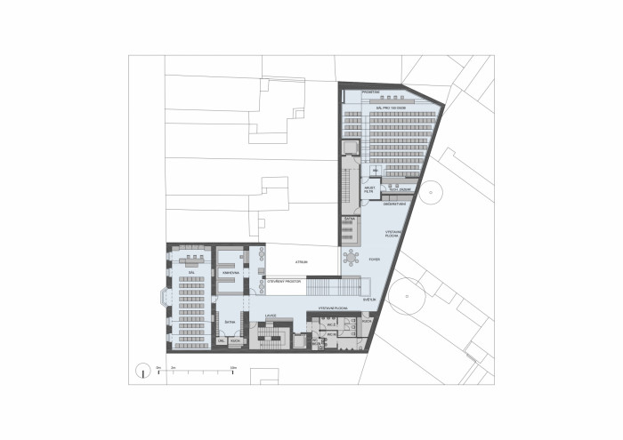
Provozní schéma návrhu lze v zásadě horizontálně členit na 1.NP jako podlaží zčásti reprezentativní a vstupní ale také technické a servisní, 2.NP jako podlaží určené primárně pro návštěvníky a veřejnost a konečně vyšší podlaží jako soukromé kancelářské se společnou pobytovou zahradou na úrovni 3.NP. 

Pozornost věnujeme vstupu do stávající budovy, který navrhujeme nově ve středové ose pod visutým arkýřem v místě stávajícího vjezdu. Vstupní rampa vyrovnává výškové rozdíly a bezbariérově navádí návštěvníky do otevřeného, prosvětleného a reprezentativního foyer s recepcí. Důsledkem přesunutí vjezdu a rozšíření vstupních prostor je razantní přestavba uličního průčelí ve smyslu dosažení otevřenosti, velkorysosti a puristické symetrické kompozice. 

Foto: EARCH

Navazující 2.NP je věnováno návštěvníkům objektu. Provozně propojujeme stávající dům s novou dostavbou ve dvoře širokým kapacitním schodištěm, které je přímé, přirozeně osvětlené a velmi dobře přístupné. Kolem atria, které přináší dostatek přirozeného světla do interiéru, umisťujeme hlavní pobytové funkce 2.NP. Knihovna s odbornou literaturou je v blízkosti stávajícího schodiště a recepce. Zbylou volnou plochu v prvním patře navrhujeme jako rozptylovou plochu pro návštěvníky velkého a malého přednáškového sálu, která zároveň umožňuje celou řadu dalších doplňkových funkcí – výstavu studentských prací, neformální jednání, catering atd. Požadovaný přednáškový sál umisťujeme do zadní části pozemku, jeho kapacita je 150 osob. 

Významným benefitem pro stálé pracovníky a uživatele objektu je venkovní střešní zahrada přístupná ze 3.NP. Zeleň na střeše vnímáme nejen jako zkvalitnění pracovního prostředí, ale také jako významný pohledový prvek vnímaný obyvateli z okolních domů.

Foto: EARCH

Nad velký sál navrhujeme 3 podlaží s kancelářskými pracovišti. Půdorys pětistranného polygonu je možné přirozeně osvětlit ze dvou stran, které přímo nesousedí s přilehlými parcelami (požadavek PSP).

Novostavbu ve dvoře tvoříme s vědomím toho, že se jedná o stavbu v „druhém plánu“ ulice Sokolské. Jsme přesvědčeni, že není žádoucí, aby novostavba výškově dominovala městskému bloku. Hmotové řešení koncipujeme především s ohledem na umístění oken obytných místností sousedních staveb.

Generální partner
Hlavní partneři