GutGut - Mlýnica

Objekt Mlynice je súčasťou rozsiahleho post-industriálneho areálu Ľahkých stavebných hmôt v Bratislave. Od šesťdesiatych rokov sa tu vyrábali tvárnice, dosky a panely z pórobetónu. Výroba prebiehala do roku 1992. Po privatizácií noví majitelia areál rozpredávali a začal postupne chátrať.
Architektonický návrh využíva konštrukčnú a statickú podstatu pôvodnej stavby. So železobetónovou kostrou vyplnenou pórobetónovým murivom fasád narába voľne a novú náplň len vkladá do existujúceho obalu. Fasády otvára účelovo na miestach, kde je to v súlade s novou dispozíciou, bez komponovania a s rešpektom k únosnosti existujúcich obvodových konštrukcii. Nové otvory majú voľnú a čitateľnú kompozíciu v protiklade k pôvodnej racionálnej mriežke okenných otvorov typickej pre industriálny objekt.
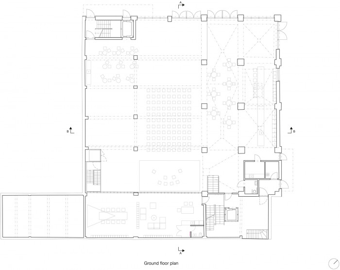
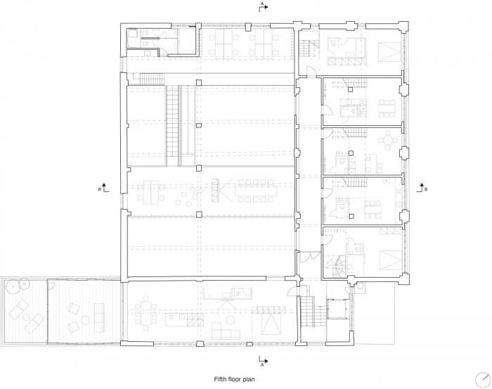
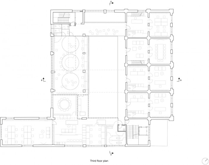
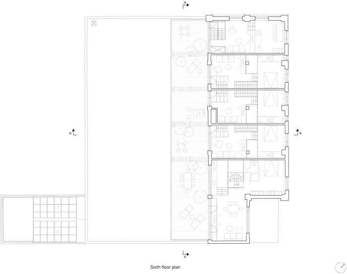
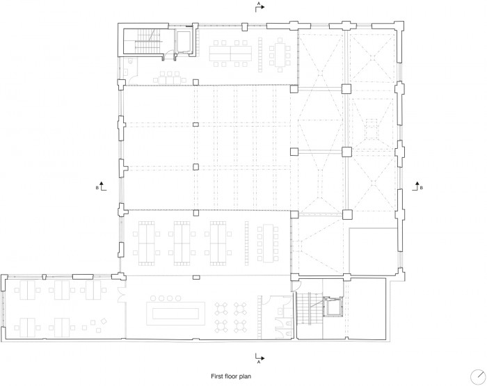
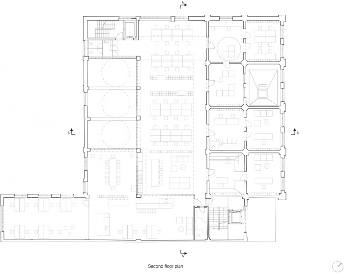
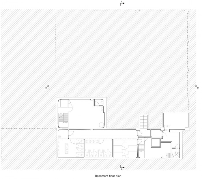
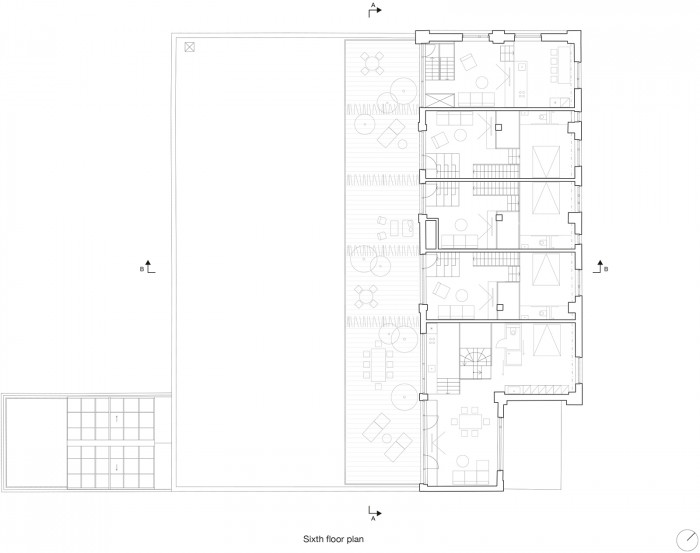
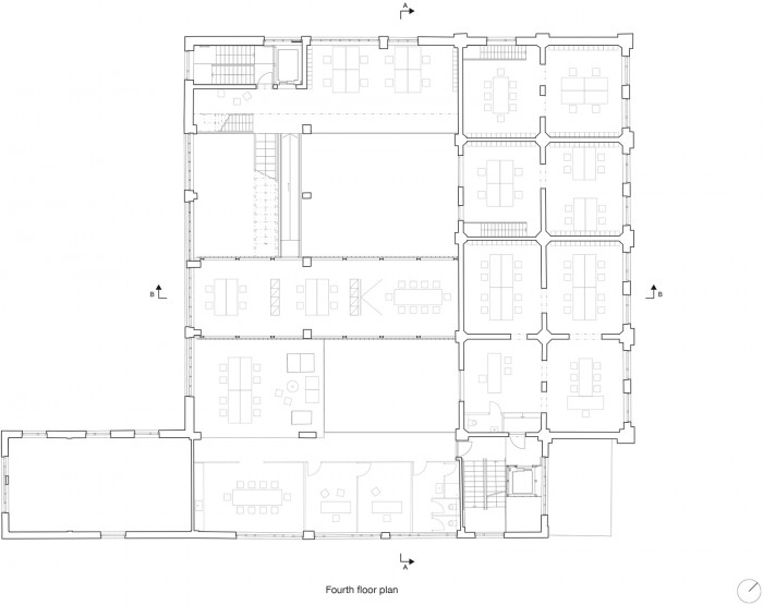
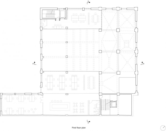
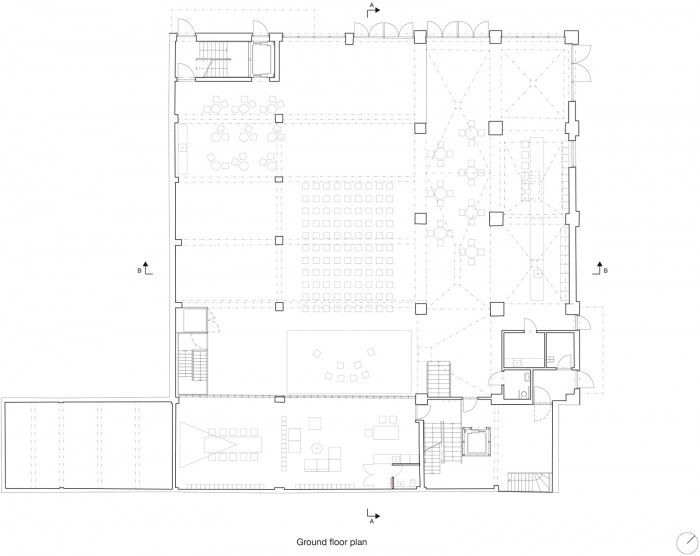
Objekt Mlynice je vertikálne funkčne rozčlenený na tri celky. Návrh jednotlivé časti nového programu - event, administratívne priestory a byty, necháva medzi sebou komunikovať cez ústredný halový priestor bývalej výroby.
Tvrdá konštrukcia nosného skeletu je doplnená transparentnými priečkami novej dispozície, mäkkými drevenými výplňovými panelmi, profilitovými stenami a voľne vedenými rozvodmi médií bez kapotáže. Z ústrednej haly sú sprístupnené pôvodné betónové násypníky, do ktorých sú vložené tri nové podlažia pre administratívu.
Kontrast starého a nového zdôrazňuje kvalitu pôvodného objektu, na ktorej sa rozhodol návrh stavať. K takémuto prístupu je nevyhnutné zbaviť sa nepotrebného nánosu, zvýrazniť statickú podstatu konštrukcií domu a vyťažiť z nej maximum pre nové využitie objektu. Z bývalej industriálnej budovy, čisto technicko-výrobného charakteru, sa po rekonštrukcii stane moderný objekt zmiešanej funkcie, určený pre kultúrne podujatia, firemnú prezentáciu, administratívu a v malom rozsahu aj pre bývanie vo voľných dispozíciách.
- Autoři: Jana Benková, Tomáš Vrtek
- Ateliér: gutgut
- Spolupráce: Roman Žitňanský, Patrícia Botková, Katarína Bergerová
- Země: Slovensko
- Generální dodavatel: ise s.r.o.
- Město: Bratislava
- Ulice, číslo: Turbínová, 13
- Datum projektu: 2015
- Realizace: 2017
- Užitná plocha: 3 695.00m2
- Zastavěná plocha: 857.00m2
- Plocha pozemku: 2 676.00m2
- Autorka grafickej identity a infosystému: Ľubica Segečová
Související projekty
Související architekti
Související ateliéry a firmy
Mohlo by vás zajímat



































