Hubinský, Kuklica, Smerek - Loft Mlynica

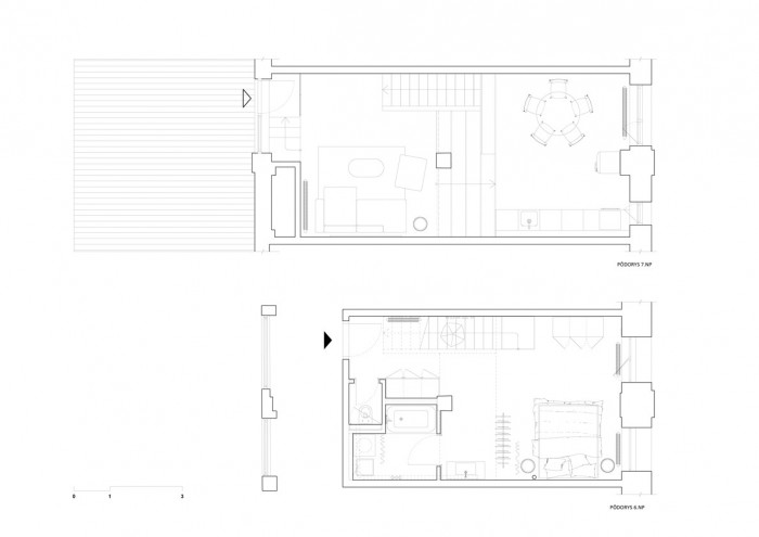
Trojpodlažný loft v industriálnom objekte Mlynica je neobvyklý priestor na bývanie a trávenie spoločenského života. Samotný objekt Mlynice, nachádzajúcej sa v odľahlejšom bratislavskom brownfielde, nedávno prešiel rozsiahlou konverziou a v súčasnosti poskytuje multifunkčné priestory s minoritnou obytnou náplňou. Dispozícia loftu je radená vertikálne.Vnútorná úžitková plocha loftu je 73m2.

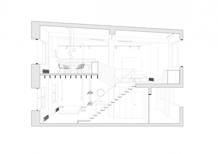
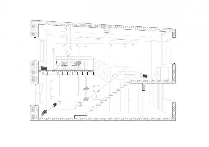
Vstupuje sa do spodnej úrovne loftu, kde sa nachádza šatník, kúpeľňa, WC a spálňa. Schodiskom je dostupná horná úroveň loftu s obývačkou prepojená pobytovými schodami s jedáľňou a kuchyňou. Z obývačky je tiež dostupná terasa s výhľadom na Karpaty.

Stavebné surové materiály použité v lofte kontrastujú s vloženými stolárskymi a zámočníckymi prvkami a priznanými rozvodmi na povrchu stien. Obálku loftu tak tvorí neomietnutý liaty betón, železobetónový strop a betónová podlaha s epoxidovým lakom.

Na spodnej úrovni loftu sa nachádza zabudovaný šatník, ktorý v sebe integruje aj dvere do hygienických buniek, ktoré sú spolu s dverami šatníka zjednotené do celistvej celozrkadlovej plochy, ktorá opticky zväčšuje priestor. Umývadlo na ocelových nožickách je umiestnené mimo zrkadlový box a od postele ho oddeľuje zo stropu podvesená čierna oceľová vešiaková tyč a tiež textilný záves na celú výšku miestnosti, ktorým je možné celkom oddeliť spálňu od zvyšku loftu.

Vložené čierne schodisko vedúce zo spodného podlažia od vstupu a spálňovej časti do obývacej miestnosti je vyzvárané z oceľových plechov a pôsobí spolu s tenkým zábradlím veľmi subtílne. Odľahčený výraz mu dodávajú aj vynechané podstupnice.

Výškovo zalomené horné podlažie je prepojené pobytovými schodami z bielenej brezovej preglejky a kontrastuje s tmavým kuchynským boxom z do čierna morenej preglejky, jedálenským stolom a stoličkami tiež v celočiernom prevedení.

Sofa v obývacej časti horného podlažia je solitérny celočalúnený kus v sivej poťahovej látke. Osvetlenie loftu tvoria výrazné zvesené lustre nad posteľou a jedálenským stolom v kombinácii s prisadeným technickým líniovým a reflektorovým osvetlením. Interiér loftu bol osviežujúcim solitérnym zadaním s dôrazom na surovú estetiku odrzkadlujúcu charakter industriálnej lokality, objektu a osobnosti klientky.

  • Autoři: Juraj Hubinský, Peter Kuklica, Martin Smerek
  • Země: Slovensko
  • Realizace: 2018
  • Město: Bratislava
  • Ulice, číslo: Turbínova, 13
  • PSČ: 83104
  • Suma: 50 000.00
  • Měna: EUR
  • Datum projektu: 2017
  • Realizace: 2018
  • Užitná plocha: 73.00m2
Generální partner
Hlavní partneři