KOGAA - Coffee hub GROUNDS
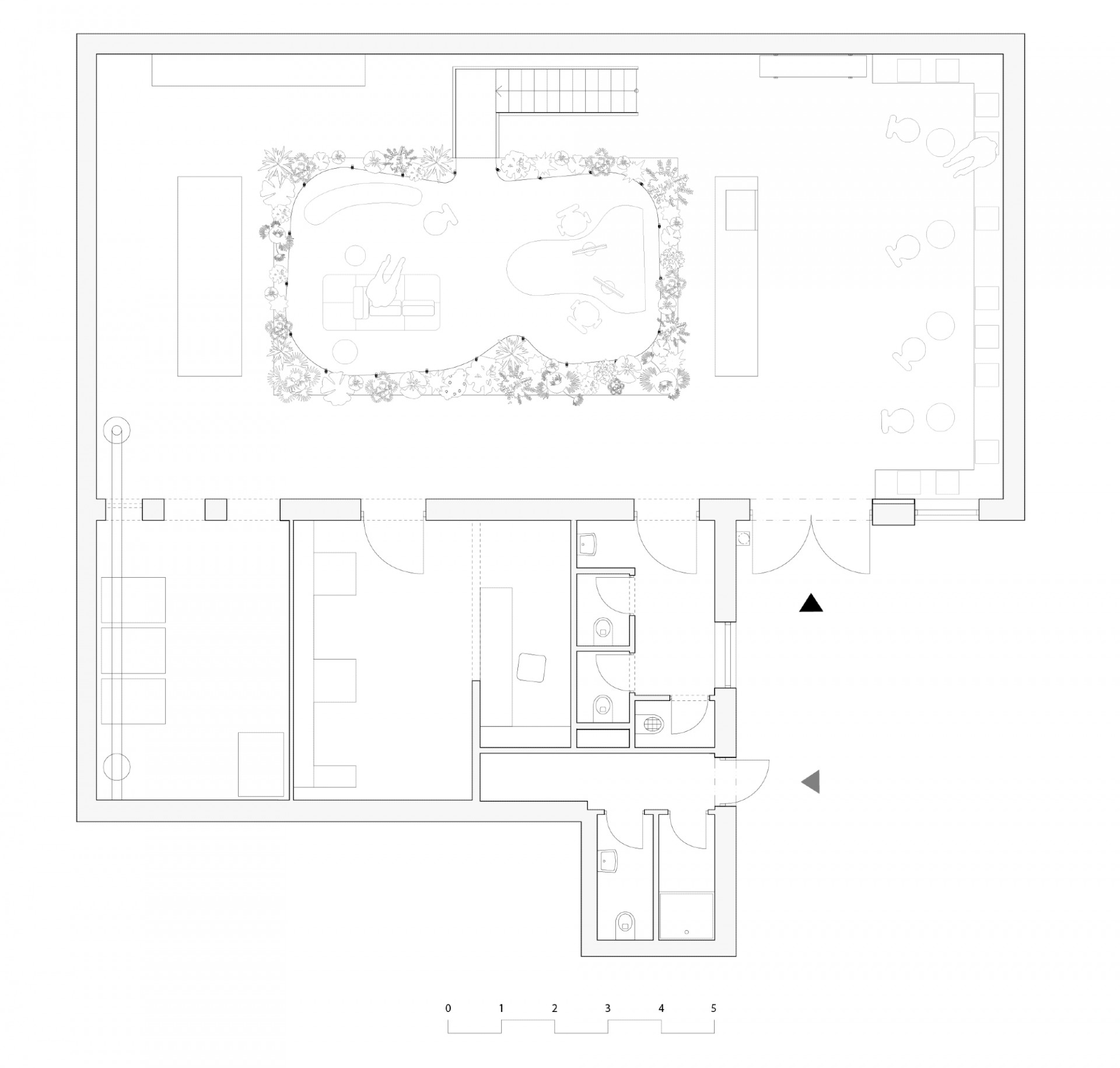
Přirozené světlo proniká do dvoupodlažního objektu shora a díky průsvitným stěnám se může šířit napříč jednotlivými částmi. Prostory umístěné dále od vchodu slouží vlastní výrobě kávy – od skladování syrových kávových zrn po procesy jejich čištění, pražení a balení. Oddělená místnost za barem je určena k testování kávy a funguje zároveň jako showroom pro profesionální baristické stroje a prostor pro pořádání workshopů a různých soutěží.
Přední část objektu při vstupu plní funkci kavárny a prodejny kávy koncovým zákazníkům. U boční stěny je zavěšeno kovové schodiště (realizováno ve spolupráci s Duro Design) v barvě mandarinky vedoucí do horního pracovního prostoru, který vymezuje organicky tvarová stěna z vlnitého polykarbonátu. Organický půdorys vytváří různá zákoutí plná květin, které zároveň slouží jako přírodní čističe a zvlhčovače vzduchu, což napomáhá k udržování optimální vlhkosti potřebné pro kávové procesy.
Interiér byl z 80 procent vytvořen ze stavebního odpadu předchozího demontovaného objektu, což naplňuje obecný cíl architektů redukovat množství stavebního odpadu. Závěsná světla jsou opravené a nově natřené industriální lampy z bývalé továrny na zbraně. Přímo na místě se pak vyráběly kavárenské stoly z betonu, dřevěná lavice podél stěny i vertikální regál s nabízeným zbožím. Bar je tvořen ze surových vlnitých plechů a jeho kovová pracovní deska byla na zakázku vyříznutá tak, aby pojmula veškeré příslušenství potřebné ke správnému servisu kávy.
Koncept byl nápadem Reneho Kraloviče z pražírny Rusty Nails coffee, který stojí za různými úspěšnými podniky v Česku. V tomto případě bylo hlavní ideou přiblížit pražení kávy veřejnosti a současně vytvořit platformu pro baristy a další experty na kávu, aby se mohli vzájemně vzdělávat.
- Autoři: Alexandra Georgescu, Tomáš Kozelský, Viktor Odstrčilík, Kateřina Baťková, Josef Řehák, Kateřina Čenovská
- Ateliér: KOGAA
- Země: Česká republika
- Město: Praha - Karlín
- Ulice, číslo: Šaldova 419/16
- PSČ: 18600
- Realizace: 2020
- Užitná plocha: 120.00m2
- Dodavatelé: DURO design, Vitra
Související projekty
Související architekti
Související ateliéry a firmy
Mohlo by vás zajímat