Komon Architekti - Byt s betonovou konstrukcí

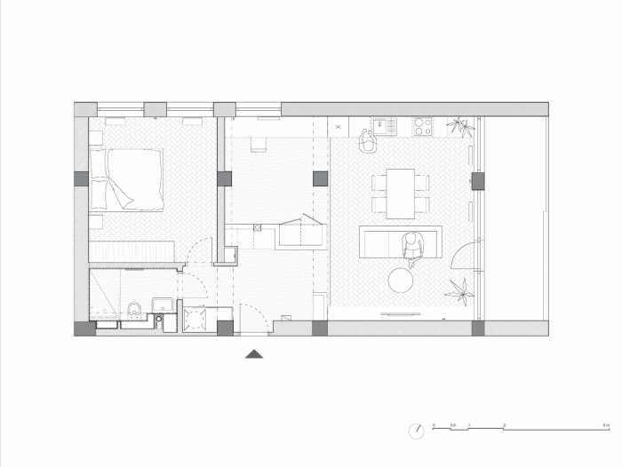
Mladý pár z Kladna nás oslovil s nízkorozpočtovou rekonstrukcí bytu z 50. let. Zaujalo nás, že byt má skeletovou konstrukci. Vybourali jsme nenosné příčky na nutné minimum a dispozici přizpůsobili dnešnímu standardu, kdy kuchyň s jídelnou a obývacím pokojem tvoří jeden prostor.
Skeletovou konstrukci bytu jsme odhalili na surový beton. Nové příčky, stejně jako vestavěný nábytek, jsou z březové překližky. Zachovali jsme původní parkety a vybourané podlahy doplnili cementovou stěrkou.
Na první pohled nepříliš zajímavé zadání se díky výborné spolupráci s investorem proměnilo v zajímavý projekt.
- Autoři: Martin Gaberle
- Spolupráce: Ema Traplová
- Země: Česká republika
- Město: Kladno
- Datum projektu: 2016
- Realizace: 2019
- Užitná plocha: 43.00m2
Související architekti
Mohlo by vás zajímat

1/11

Byt s betonovou konstrukcí, Komon Architekti / Martin Gaberle
Foto: David Gaberle
2/11

Byt s betonovou konstrukcí, Komon Architekti / Martin Gaberle
Foto: David Gaberle
3/11

Byt s betonovou konstrukcí, Komon Architekti / Martin Gaberle
Foto: David Gaberle
4/11

Byt s betonovou konstrukcí, Komon Architekti / Martin Gaberle
Foto: David Gaberle
5/11

Byt s betonovou konstrukcí, Komon Architekti / Martin Gaberle
Foto: David Gaberle
6/11

Byt s betonovou konstrukcí, Komon Architekti / Martin Gaberle
Foto: David Gaberle
7/11

Byt s betonovou konstrukcí, Komon Architekti / Martin Gaberle
Foto: David Gaberle
8/11

Byt s betonovou konstrukcí, Komon Architekti / Martin Gaberle
Foto: David Gaberle
9/11

Byt s betonovou konstrukcí, Komon Architekti / Martin Gaberle, axonometrie
10/11

Byt s betonovou konstrukcí, Komon Architekti / Martin Gaberle, půdorys
11/11